Tasveld 28-A 3911 TN Rhenen
- Nieuw
€ 595.000 k.k.
Omschrijving
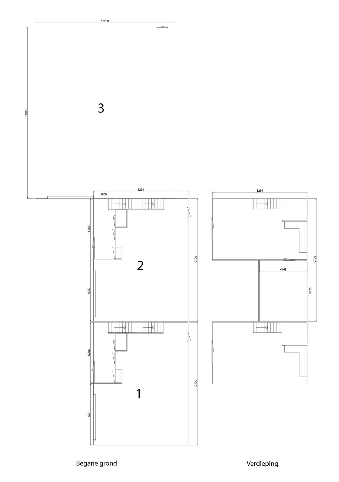
Op bedrijventerrein Remmerden bieden wij een beleggingsobject aan bestaande uit 3 bedrijfsunits totaal circa 484m² en een perceel grootte van circa 727m² aan het Tasveld 28A te Rhenen.
De units beschikken ieder over een zelfstandige indeling en zijn functioneel ingericht met bedrijfsruimte op de begane grond en kantoorruimte op de verdieping.
Indeling
Bedrijfsruimte 1 (totaal ca. 132m²)
• Entree;
• Meterkast;
• Toilet;
• Bedrijfsruimte ca. 40m², verhuurd;
• Bedrijfsruimte ingericht als kapsalon met pantry, toilet en airconditioning ca. 35m², verhuurd;
• Kantoorruimte op de verdieping met pantry, toilet en airconditioning ca. 40m²;
Bedrijfsruimte 2 (totaal ca. 154m²)
• Entree;
• Meterkast;
• Toilet;
• Bedrijfsruimte ca. 40m², verhuurd;
• Bedrijfsruimte ca. 35m², verhuurd;
• Kantoorruimte op de verdieping verdeeld over twee ruimtes met keuken, toilet en airconditioning ca. 60m²;
Bedrijfsruimte 3 (totaal circa 198m²)
• Open bedrijfsruimte ca. 183m² met gunstige vrije hoogte van ca. 6 meter;
• Meterkast;
• Toilet;
• Pantry;
• Kantoorruimte op de verdieping met airconditioning ca. 15m²;
Parkeren:
Parkeergelegenheid op eigen terrein.
Ligging:
De locatie heeft een gunstige ligging met goede bereikbaarheid vanaf verschillende snelwegen:
- A15: op 7,0 km (13 minuten reistijd)
- A12: op 7,8 km (17 minuten reistijd)
- A30: op 11,1 km (19 minuten reistijd)
Openbaar vervoer:
De bereikbaarheid met het openbaar vervoer is prima. Het NS-station Rhenen bevindt zich op 4,5 km afstand en de bushalte Rhenen, Tasveld ligt op 650m afstand.
Duurzaamheid:
Het bedrijfspand beschikt over energielabel A.
Bestemming:
Bedrijf tot en met milieucategorie 3a.
Vraagprijs:
€ 595.000,= kosten koper.
Aanvaarding:
In overleg.
Oplevering:
In verhuurde staat.
Voor informatie over de lopende huurcontracten kunt u ons mailen.
Zekerheidsstelling:
Bankgarantie of waarborgsom ter grootte van 10% van de koopsom, af te geven bij of te storten op de rekening van instrumenterend notaris.
Baten en lasten:
Alle baten, lasten en verschuldigde canons, waaronder begrepen heffingen die voortvloeien uit de akte van splitsing en/of reglement (indien van toepassing) komen voor rekening van de kopende partij vanaf de datum van notarieel transport. De lopende baten, lasten en dergelijke, met uitzondering van de onroerende zaakbelasting wegens feitelijk gebruik, zullen tussen partijen naar rato worden verrekend.
Plattegrondtekeningen en impressies:
De in deze projectinformatie opgenomen tekeningen en impressies zijn slechts van indicatieve aard. Hieraan kunnen geen rechten worden ontleend.
De vermelde informatie behelst geen aanbod doch globale informatie van algemene aard. De informatie is niet meer dan een uitnodiging om in onderhandeling te treden. Hutten Makelaardij & Bedrijfshuisvesting staat niet in voor de juistheid en volledigheid van de informatie. Aan de inhoud van deze informatie kunnen geen rechten worden ontleend.
De units beschikken ieder over een zelfstandige indeling en zijn functioneel ingericht met bedrijfsruimte op de begane grond en kantoorruimte op de verdieping.
Indeling
Bedrijfsruimte 1 (totaal ca. 132m²)
• Entree;
• Meterkast;
• Toilet;
• Bedrijfsruimte ca. 40m², verhuurd;
• Bedrijfsruimte ingericht als kapsalon met pantry, toilet en airconditioning ca. 35m², verhuurd;
• Kantoorruimte op de verdieping met pantry, toilet en airconditioning ca. 40m²;
Bedrijfsruimte 2 (totaal ca. 154m²)
• Entree;
• Meterkast;
• Toilet;
• Bedrijfsruimte ca. 40m², verhuurd;
• Bedrijfsruimte ca. 35m², verhuurd;
• Kantoorruimte op de verdieping verdeeld over twee ruimtes met keuken, toilet en airconditioning ca. 60m²;
Bedrijfsruimte 3 (totaal circa 198m²)
• Open bedrijfsruimte ca. 183m² met gunstige vrije hoogte van ca. 6 meter;
• Meterkast;
• Toilet;
• Pantry;
• Kantoorruimte op de verdieping met airconditioning ca. 15m²;
Parkeren:
Parkeergelegenheid op eigen terrein.
Ligging:
De locatie heeft een gunstige ligging met goede bereikbaarheid vanaf verschillende snelwegen:
- A15: op 7,0 km (13 minuten reistijd)
- A12: op 7,8 km (17 minuten reistijd)
- A30: op 11,1 km (19 minuten reistijd)
Openbaar vervoer:
De bereikbaarheid met het openbaar vervoer is prima. Het NS-station Rhenen bevindt zich op 4,5 km afstand en de bushalte Rhenen, Tasveld ligt op 650m afstand.
Duurzaamheid:
Het bedrijfspand beschikt over energielabel A.
Bestemming:
Bedrijf tot en met milieucategorie 3a.
Vraagprijs:
€ 595.000,= kosten koper.
Aanvaarding:
In overleg.
Oplevering:
In verhuurde staat.
Voor informatie over de lopende huurcontracten kunt u ons mailen.
Zekerheidsstelling:
Bankgarantie of waarborgsom ter grootte van 10% van de koopsom, af te geven bij of te storten op de rekening van instrumenterend notaris.
Baten en lasten:
Alle baten, lasten en verschuldigde canons, waaronder begrepen heffingen die voortvloeien uit de akte van splitsing en/of reglement (indien van toepassing) komen voor rekening van de kopende partij vanaf de datum van notarieel transport. De lopende baten, lasten en dergelijke, met uitzondering van de onroerende zaakbelasting wegens feitelijk gebruik, zullen tussen partijen naar rato worden verrekend.
Plattegrondtekeningen en impressies:
De in deze projectinformatie opgenomen tekeningen en impressies zijn slechts van indicatieve aard. Hieraan kunnen geen rechten worden ontleend.
De vermelde informatie behelst geen aanbod doch globale informatie van algemene aard. De informatie is niet meer dan een uitnodiging om in onderhandeling te treden. Hutten Makelaardij & Bedrijfshuisvesting staat niet in voor de juistheid en volledigheid van de informatie. Aan de inhoud van deze informatie kunnen geen rechten worden ontleend.
Kenmerken
Overdracht
- Vraagprijs
- € 595.000 kosten koper
- Aangeboden sinds
-
- Status
- Beschikbaar
- Aanvaarding
- In overleg
Bouw
- Hoofdfunctie
- Belegging
- Soort bouw
- Bestaande bouw
- Bouwjaar
- 2006
Oppervlakten
- Oppervlakte
- 484 m²
- Perceel
- 727 m²
Energie
- Energielabel
- A
Omgeving
- Ligging
- Bedrijventerrein
- Bereikbaarheid
- Bushalte op minder dan 500 m, busknooppunt op 5000 m of meer, metrohalte op 5000 m of meer, metroknooppunt op 5000 m of meer, NS Intercitystation op 4000 m tot 5000 m, snelwegafrit op 4000 m tot 5000 m, Tramhalte op 5000 m of meer en tramknooppunt op 5000 m of meer
- Lokale voorzieningen
- Bank op 3000 m tot 4000 m, ontspanning op 2000 m tot 3000 m, restaurant op 2000 m tot 3000 m en winkel op 2000 m tot 3000 m
Parkeergelegenheid
- Parkeerplaatsen
- 5 niet-overdekte parkeerplaatsen
Beleggingsobject
- Huurders
- 4 huurders
- Verhuurd
- 484 m²
Foto's