Klaasstraat 38 5911 JR Venlo
€ 1.470 /mnd
Omschrijving
Goed onderhouden winkelruimte. Gelegen in de sfeervolle straat beschik je op deze locatie over alle wensbare voorzieningen.
Met ruim 100.000 inwoners en de nabijheid van Noordrijn-Westfalen met 18 miljoen inwoners heeft Venlo een uniek verzorgingsgebied. De combinatie van dagelijkse bezoekers, regionale consumenten en Duitse dagtoeristen zorgt voor een unieke markt voor ondernemers. Venlo trekt meer dan 10 miljoen bezoekers per jaar.
Kenmerken
Algemeen
De Klaasstraat is van oudsher een karakteristieke winkelstraat met veel lokale ondernemers. De Klaasstraat, Gasthuisstraat en Jodenstraat zijn de straten met lokale boetiekjes en ambachtelijke winkels die zich samen presenteren onder de naam Festina Lente straatjes. Deze straten staan bekend om hun unieke karakter met boetieks, speciaalzaken en ambachtelijke ondernemers die zorgen voor een persoonlijke winkelervaring.
Bestemming
Hoofdbestemming: Winkelruimte
Oppervlakte
Commerciële ruimte met een vloeroppervlakte van ca. 98 m².
Ligging
De Klaasstraat is een verbindingspassage tussen de kernwinkelstraat (Vleesstraat) en de Parade.
Bereikbaarheid
De binnenstad van Venlo is uitstekend bereikbaar met auto, fiets en OV. Er zijn ruim voldoende
parkeervoorzieningen: 3.249 parkeerplaatsen in het centrum en 1.669 parkeerplekken rondom het centrum.
Huuruitgangspunten
Huurprijs
De huurprijs bedraagt € 1.470,00 per maand, excl. btw.
Huurtermijn
In overleg.
Beschikbaarheid
In overleg.
Opleveringsniveau
In overleg.
Met ruim 100.000 inwoners en de nabijheid van Noordrijn-Westfalen met 18 miljoen inwoners heeft Venlo een uniek verzorgingsgebied. De combinatie van dagelijkse bezoekers, regionale consumenten en Duitse dagtoeristen zorgt voor een unieke markt voor ondernemers. Venlo trekt meer dan 10 miljoen bezoekers per jaar.
Kenmerken
Algemeen
De Klaasstraat is van oudsher een karakteristieke winkelstraat met veel lokale ondernemers. De Klaasstraat, Gasthuisstraat en Jodenstraat zijn de straten met lokale boetiekjes en ambachtelijke winkels die zich samen presenteren onder de naam Festina Lente straatjes. Deze straten staan bekend om hun unieke karakter met boetieks, speciaalzaken en ambachtelijke ondernemers die zorgen voor een persoonlijke winkelervaring.
Bestemming
Hoofdbestemming: Winkelruimte
Oppervlakte
Commerciële ruimte met een vloeroppervlakte van ca. 98 m².
Ligging
De Klaasstraat is een verbindingspassage tussen de kernwinkelstraat (Vleesstraat) en de Parade.
Bereikbaarheid
De binnenstad van Venlo is uitstekend bereikbaar met auto, fiets en OV. Er zijn ruim voldoende
parkeervoorzieningen: 3.249 parkeerplaatsen in het centrum en 1.669 parkeerplekken rondom het centrum.
Huuruitgangspunten
Huurprijs
De huurprijs bedraagt € 1.470,00 per maand, excl. btw.
Huurtermijn
In overleg.
Beschikbaarheid
In overleg.
Opleveringsniveau
In overleg.
Kenmerken
Overdracht
- Huurprijs
- € 1.470 per maand
- Oorspronkelijke huurprijs
- € 1.635 per maand
- Aangeboden sinds
-
- Status
- Beschikbaar
- Aanvaarding
- In overleg
Bouw
- Hoofdfunctie
- Winkel
- Soort bouw
- Bestaande bouw
- Bouwjaar
- 1904
Oppervlakten
- Oppervlakte
- 98 m²
- Verkoopvloeroppervlakte
- 98 m²
- Breedte gevel
- 3,5 m
- Perceel
- 53 m²
Indeling
- Aantal bouwlagen
- 1 bouwlaag
Energie
- Energielabel
- Niet beschikbaar
Omgeving
- Ligging
- Stadscentrum/dorpskern
- Bijdrage winkeliersvereniging
- Nee
- Welstandsklasse
- B1
Foto's
Plattegrond
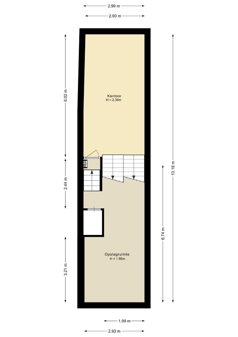
Kelder
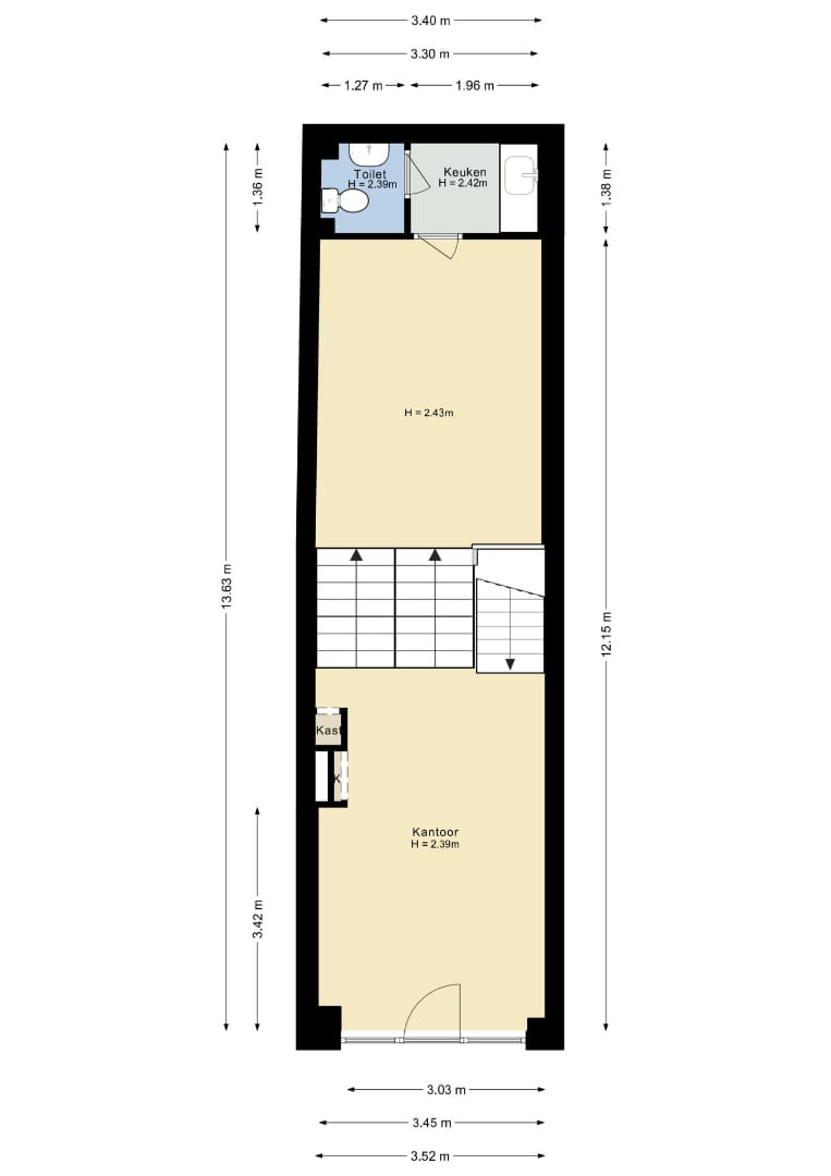
Begane grond