Neonweg 6 1362 AE Almere
€ 210.000 /jr
€ 2.550.000 k.k.
Omschrijving
ZEER HOOGWAARDIG HIGH-SECURITY BORG 4 BEDRIJFSPAND | KLUISRUIMTES | 178 ZONNEPANELEN
Op een toplocatie aan de Neonweg 6 te Almere wordt een uitzonderlijk hoogwaardig en volledig beveiligd bedrijfsobject aangeboden. Dit moderne en representatieve bedrijfsgebouw combineert een ruime bedrijfsruimte met een royale mezzanine en comfortabele kantoorruimte.
Wat dit object werkelijk onderscheidt, is het bijzonder hoge beveiligingsniveau (BORG 4 – de hoogste classificatie) in combinatie met een afwerkings- en installatieniveau waar aantoonbaar op geen enkel detail is bezuinigd. Het pand is ontwikkeld voor organisaties die maximale eisen stellen aan veiligheid, logistieke efficiëntie en betrouwbaarheid, zoals high-value opslag, e-commerce, technologie, distributie of andere hoogwaardige bedrijfsactiviteiten.
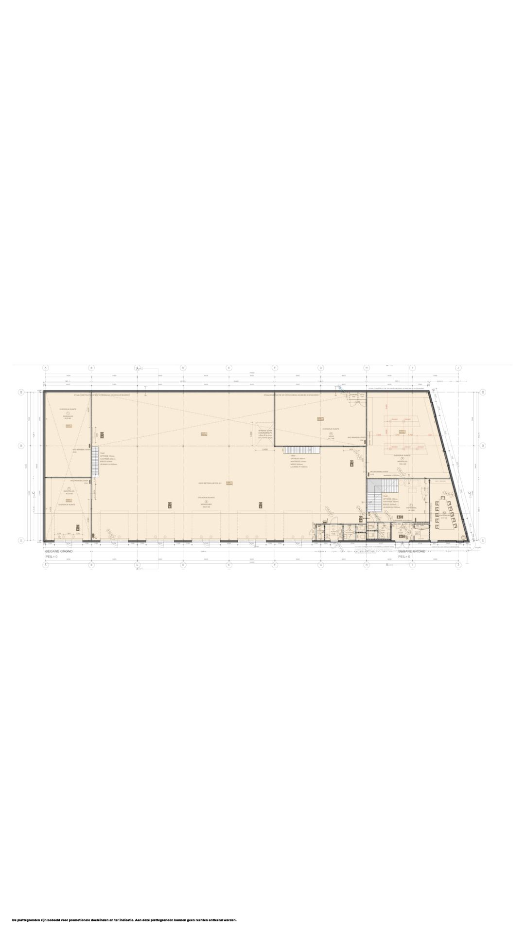
De bedrijfsruimte beschikt onder meer over vier afzonderlijke kluisruimtes, waarvan één nachtkluis met eigen overheaddeur, en een zeer uitgebreid beveiligingssysteem met onder andere sensoren, camerasystemen en terreinbeveiliging. Daarnaast zorgen solartubes voor natuurlijke daglichttoetreding in de hal, wat een prettige werkomgeving creëert en de productiviteit positief kan beïnvloeden.
Ook op het gebied van duurzaamheid en techniek is het pand zeer compleet uitgevoerd, met onder andere 178 zonnepanelen, glasvezelverbinding en moderne installaties. De combinatie van maximale beveiliging, hoogwaardige bouwkwaliteit en uitstekende logistieke functionaliteit maakt Neonweg 6 tot een uniek object binnen de Almeerse bedrijfsmarkt.
VLOEROPPERVLAKTE
Bedrijfsruimte: 920 m²
Mezanine: 707 m²
Kantoorruimte: 265 m²
OPLEVERNIVEAU
Het object wordt opgeleverd in hoogwaardige staat en beschikt onder andere over:
- Bedrijfsruimte met 6 elektrische overheaddeuren, voorzien van verzonken beveiligingspalen en stalen deuren
- Goederenlift (ca. 2,5 x 2 meter) ten behoeve van logistiek transport tussen de verdiepingen
- Mezzanine met palletopslagmogelijkheden
- Vier kluisruimtes in de bedrijfshal, waaronder een nachtkluis met eigen overheaddeur
- BORG 4 beveiligingssysteem (hoogste classificatie) met onder meer bewegingsmelders, temperatuur- en trilsensoren, camerabeveiliging, schrikverlichting en beveiliging achter de overheaddeuren
- Omheind terrein met hekwerk en infrarood lus op het buitenterrein
- Kogelwerend glas
- Solartubes in de bedrijfsruimte voor natuurlijke daglichttoetreding
- WTW-installatie in de hal
- LED-verlichting
- Krachtstroomvoorzieningen
- Brandmeldinstallatie
- Glasvezel en volledige databekabeling
- Representatieve kantoorruimte met zonwering (binnen en buiten)
- 178 zonnepanelen op het dak
- Mogelijkheid voor het plaatsen van accu-/batterijen in speciale ruimte voor energieopslag
- Toiletvoorziening in de hal
- Laadpunt bij de fietsenstalling
HUURPRIJS
€ 210.000,-- per jaar, exclusief BTW
SERVICEKOSTEN
Nader te bepalen
KOOPPRIJS
Eventueel ook te koop onder voorbehoud van gunning!
€ 2.550.000,-- kosten koper, exclusief BTW
BESTEMMING
Almere Poort Oost en Duin- Enkelbestemming Bedrijventerrein 1-.
- bedrijven en dienstverlening behorende tot en met maximaal categorie 3.2 van de Staat van Bedrijfsactiviteiten VNG 2009, inclusief ondergeschikte workshops;
- detailhandel als ondergeschikte bedrijfsactiviteit;
- ondergeschikte horeca behorende tot categorie 1 van de Staat van Horeca-activiteiten;
- horeca behorende tot categorie 3 van de Staat van Horeca-activiteiten met een bedrijfsvloeroppervlak van maximaal 150 m2 per vestiging en een totaal bedrijfsvloeroppervlak (bvo) van maximaal 300 m2;
Voor meer informatie kunt u kijken op omgevingswet.overheid.nl
ENERGIELABEL
A
PARKEREN
Op eigen terrein zijn ruime parkeermogelijkheden aanwezig.
BEREIKBAARHEID
Het bedrijventerrein Hogekant in Almere-Poort ligt op slechts een minuut per auto van de A-6 richting Amsterdam en Lelystad. De A-27 naar Utrecht ligt in de nabijheid. Tevens is de kavel prima per openbaar vervoer bereikbaar. Amsterdam is via de verbrede A1 binnen 15 minuten bereikbaar. Hogekant is dus voor alle vormen van vervoer prima bereikbaar. Het terrein is gelegen ten westen van de Hogering en eveneens aangesloten op de Elementendreef welke een snelle verbinding met de andere delen van Almere (Poort) en de regio heeft. Het is grotendeels gelegen binnen 2.000 meter van het NS-station, en heeft een bushalte (vrij liggende busbaan) centraal in het gebied. Twee fietsroutes, waaronder het Spoorbaan, ontsluiten het terrein met het omringende gebied. De ontsluitingsstructuur maakt, dat alle bedrijven zich met hun voorkant presenteren.
Meer informatie:
Siewe Bedrijfsmakelaars
036-3030994
Op een toplocatie aan de Neonweg 6 te Almere wordt een uitzonderlijk hoogwaardig en volledig beveiligd bedrijfsobject aangeboden. Dit moderne en representatieve bedrijfsgebouw combineert een ruime bedrijfsruimte met een royale mezzanine en comfortabele kantoorruimte.
Wat dit object werkelijk onderscheidt, is het bijzonder hoge beveiligingsniveau (BORG 4 – de hoogste classificatie) in combinatie met een afwerkings- en installatieniveau waar aantoonbaar op geen enkel detail is bezuinigd. Het pand is ontwikkeld voor organisaties die maximale eisen stellen aan veiligheid, logistieke efficiëntie en betrouwbaarheid, zoals high-value opslag, e-commerce, technologie, distributie of andere hoogwaardige bedrijfsactiviteiten.
De bedrijfsruimte beschikt onder meer over vier afzonderlijke kluisruimtes, waarvan één nachtkluis met eigen overheaddeur, en een zeer uitgebreid beveiligingssysteem met onder andere sensoren, camerasystemen en terreinbeveiliging. Daarnaast zorgen solartubes voor natuurlijke daglichttoetreding in de hal, wat een prettige werkomgeving creëert en de productiviteit positief kan beïnvloeden.
Ook op het gebied van duurzaamheid en techniek is het pand zeer compleet uitgevoerd, met onder andere 178 zonnepanelen, glasvezelverbinding en moderne installaties. De combinatie van maximale beveiliging, hoogwaardige bouwkwaliteit en uitstekende logistieke functionaliteit maakt Neonweg 6 tot een uniek object binnen de Almeerse bedrijfsmarkt.
VLOEROPPERVLAKTE
Bedrijfsruimte: 920 m²
Mezanine: 707 m²
Kantoorruimte: 265 m²
OPLEVERNIVEAU
Het object wordt opgeleverd in hoogwaardige staat en beschikt onder andere over:
- Bedrijfsruimte met 6 elektrische overheaddeuren, voorzien van verzonken beveiligingspalen en stalen deuren
- Goederenlift (ca. 2,5 x 2 meter) ten behoeve van logistiek transport tussen de verdiepingen
- Mezzanine met palletopslagmogelijkheden
- Vier kluisruimtes in de bedrijfshal, waaronder een nachtkluis met eigen overheaddeur
- BORG 4 beveiligingssysteem (hoogste classificatie) met onder meer bewegingsmelders, temperatuur- en trilsensoren, camerabeveiliging, schrikverlichting en beveiliging achter de overheaddeuren
- Omheind terrein met hekwerk en infrarood lus op het buitenterrein
- Kogelwerend glas
- Solartubes in de bedrijfsruimte voor natuurlijke daglichttoetreding
- WTW-installatie in de hal
- LED-verlichting
- Krachtstroomvoorzieningen
- Brandmeldinstallatie
- Glasvezel en volledige databekabeling
- Representatieve kantoorruimte met zonwering (binnen en buiten)
- 178 zonnepanelen op het dak
- Mogelijkheid voor het plaatsen van accu-/batterijen in speciale ruimte voor energieopslag
- Toiletvoorziening in de hal
- Laadpunt bij de fietsenstalling
HUURPRIJS
€ 210.000,-- per jaar, exclusief BTW
SERVICEKOSTEN
Nader te bepalen
KOOPPRIJS
Eventueel ook te koop onder voorbehoud van gunning!
€ 2.550.000,-- kosten koper, exclusief BTW
BESTEMMING
Almere Poort Oost en Duin- Enkelbestemming Bedrijventerrein 1-.
- bedrijven en dienstverlening behorende tot en met maximaal categorie 3.2 van de Staat van Bedrijfsactiviteiten VNG 2009, inclusief ondergeschikte workshops;
- detailhandel als ondergeschikte bedrijfsactiviteit;
- ondergeschikte horeca behorende tot categorie 1 van de Staat van Horeca-activiteiten;
- horeca behorende tot categorie 3 van de Staat van Horeca-activiteiten met een bedrijfsvloeroppervlak van maximaal 150 m2 per vestiging en een totaal bedrijfsvloeroppervlak (bvo) van maximaal 300 m2;
Voor meer informatie kunt u kijken op omgevingswet.overheid.nl
ENERGIELABEL
A
PARKEREN
Op eigen terrein zijn ruime parkeermogelijkheden aanwezig.
BEREIKBAARHEID
Het bedrijventerrein Hogekant in Almere-Poort ligt op slechts een minuut per auto van de A-6 richting Amsterdam en Lelystad. De A-27 naar Utrecht ligt in de nabijheid. Tevens is de kavel prima per openbaar vervoer bereikbaar. Amsterdam is via de verbrede A1 binnen 15 minuten bereikbaar. Hogekant is dus voor alle vormen van vervoer prima bereikbaar. Het terrein is gelegen ten westen van de Hogering en eveneens aangesloten op de Elementendreef welke een snelle verbinding met de andere delen van Almere (Poort) en de regio heeft. Het is grotendeels gelegen binnen 2.000 meter van het NS-station, en heeft een bushalte (vrij liggende busbaan) centraal in het gebied. Twee fietsroutes, waaronder het Spoorbaan, ontsluiten het terrein met het omringende gebied. De ontsluitingsstructuur maakt, dat alle bedrijven zich met hun voorkant presenteren.
Meer informatie:
Siewe Bedrijfsmakelaars
036-3030994
Kenmerken
Overdracht
- Vraagprijs
- € 2.550.000 kosten koper
- Huurprijs
- € 210.000 per jaar
- Aangeboden sinds
-
- Status
- Beschikbaar
- Aanvaarding
- In overleg
Bouw
- Hoofdfunctie
- Bedrijfshal
- Soort bouw
- Bestaande bouw
- Bouwjaar
- 2018
Oppervlakten
- Oppervlakte
- 1.892 m²
- Bedrijfshal oppervlak
- 1.627 m²
- Kantoor oppervlak
- 265 m²
- Perceel
- 2.410 m²
Indeling
- Aantal bouwlagen
- 2 bouwlagen
- Voorzieningen
- Mechanische ventilatie, overheaddeuren, krachtstroom, betonvloer, heater, toilet, inbouwarmaturen en te openen ramen
Energie
- Energielabel
- A
Omgeving
- Ligging
- Bedrijventerrein
- Bereikbaarheid
- Bushalte op 1000 m tot 1500 m, busknooppunt op 1500 m tot 2000 m, metrohalte op 5000 m of meer, metroknooppunt op 5000 m of meer, NS Intercitystation op 2000 m tot 3000 m, snelwegafrit op minder dan 500 m, Tramhalte op 5000 m of meer en tramknooppunt op 5000 m of meer
Foto's
Plattegrond
Begane grond
Begane grond (copy)