Kanaalstraat 30 2161 JL Lisse
€ 1.385 /mnd
Omschrijving
ALGEMEEN:
Deze multifunctionele ruimte van ca. 113 m² met 6 m² inpandige ruimte (aan de voorzijde) is gelegen in het levendige winkelcentrum van Lisse. De winkelruimte is flexibel indeelbaar en biedt verschillende mogelijkheden.
Door de ruime bestemmingsplanmogelijkheden kan deze mooie ruimte voor velerlei doeleinden gebruikt worden. Denk hierbij aan detailhandel, dienstverlening, maatschappelijke voorzieningen en lichte horecabedrijven uit ten hoogste categorie 1 (1a, 1b en 1c en uitsluitend inpandig). Waar wil jij de ruimte voor gebruiken?
In het winkelcentrum van Lisse dat een sterke regiofunctie heeft, zijn eveneens gevestigd C&A, Odido, Livera, Trekpleister, Rituals, Primera, Be One, Hema, Van Haren, Kruidvat etc., maar ook diverse restaurants, banken en lokale vers- en speciaalzaken zoals het Smaakhuis, Baaij Fresh, Bakker Van Maanen en Schulte Herenmode.
Er is in de directe omgeving voldoende gratis (2 uur) parkeergelegenheid aanwezig, onder meer op het parkeerterrein direct aan de achterzijde van het object, in de parkeergarage onder 'De Madelief' en/of aan de Haven/Grachtweg.
INDELING:
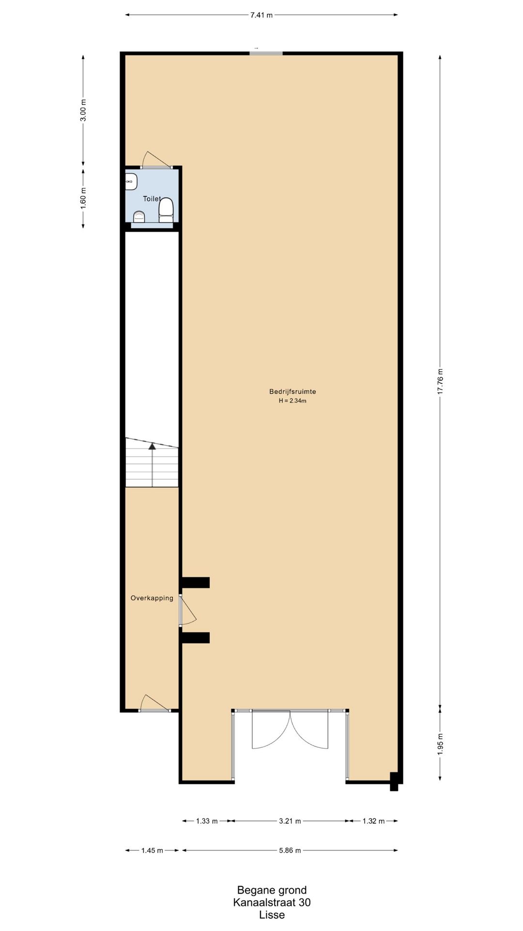
Middels inpandige glazen pui stap je de ruime, overzichtelijke en compleet afgewerkte multifunctionele ruimte van zo'n 113 m² VVO binnen. Het betreft een open ruimte met aan de achterzijde een toilet.
De ruime bestemmingsplanmogelijkheden zorgen ervoor dat de ruimte naast detailhandel eveneens geschikt is voor dienstverlening, maatschappelijke voorzieningen alsmede lichte horecabedrijven uit ten hoogste categorie 1 van de Staat van Horeca-activiteiten, uitsluitend inpandig.
OPPERVLAKTEN:
Winkelruimte: ca. 113 m² VVO;
Inpandige ruimte: ca 6 m²;
Totaal ca. 119 m².
VOORZIENINGEN / OPLEVERINGSNIVEAU WINKEL:
- Wanden gedeeltelijk glad, gedeeltelijk voorzien van wandpanelen met ophangbevestiging;;
- Front ca. 6 meter;
- Glazen pui voorzien overdekte buitenruimte en dubbele openslaande deuren;
- Vissengraat PVC vloer met warme houtstructuur;
- Grotendeels systeemplafonds, gedeeltelijk stuc plafond met inbouw verlichtingspots;
- Grotendeels glad afgewerkte wanden;
- Wasbak met close in boiler;
- Airconditioning;
- Modern afgewerkte toiletruimte met toilet, urinoir en fontein;
- Verkoopbalie;
- Voorpui voorzien van rolluik.
Alarminstallatie (ter overname).
BIJZONDERHEDEN:
De 360 graden foto's en video geven een beeld van de winkel met inrichting.
BESTEMMING:
Conform het vigerend bestemmingsplan "Lisse Centrum 2011" heeft het pand de bestemming 'Gemengd'. Deze gronden zijn onder meer bestemd voor detailhandel, dienstverlening, maatschappelijke voorzieningen alsmede lichte horecabedrijven uit ten hoogste categorie 1 van de Staat van Horeca-activiteiten, uitsluitend inpandig.
PARKEREN:
Ruime gratis parkeergelegenheid in de directe omgeving (parkeerschijf 2 uur).
HUURPRIJS WINKELRUIMTE:
€1.385,- per maand exclusief BTW.
OPLEVERING:
In overleg mogelijk.
HUURTERMIJN:
Uitgangspunt is een termijn van 5 jaar + 5 optie jaren. Een afwijkende termijn is bespreekbaar.
HUUROVEREENKOMST:
Standaard model winkelruimte in de zin van art. 7:290 BW, met bijbehorende algemene bepalingen, zoals door de Raad voor Onroerende Zaken (ROZ) op 5 maart 2025 is vastgesteld en op 6 maart 2025 gedeponeerd bij de griffie van de rechtbank te ’s-Gravenhage en aldaar ingeschreven onder nummer 2025/0603.
HUURPRIJSAANPASSING:
Jaarlijks per huuringangsdatum, voor het eerst 12 maanden na huuringangsdatum op basis van de wijziging van het maandprijs-indexcijfer volgens de consumentenprijsindex (CPI) reeks alle huishoudens (2015=100), zoals gepubliceerd door het Centraal Bureau voor de Statistiek (CBS).
ZEKERHEIDSTELLING:
Bankgarantie ter grootte van drie maanden huurverplichting en de over het totaal verschuldigde BTW.
COURTAGE:
Mocht door bemiddeling van BM Bedrijfsmakelaars voor dit object een transactie tot stand worden gebracht, dan zult u ons hiervoor geen kosten of courtage verschuldigd zijn.
Deze aanbieding is vrijblijvend, er kunnen derhalve geen rechten aan deze brochure, tekst en tekeningen worden ontleend.
Deze multifunctionele ruimte van ca. 113 m² met 6 m² inpandige ruimte (aan de voorzijde) is gelegen in het levendige winkelcentrum van Lisse. De winkelruimte is flexibel indeelbaar en biedt verschillende mogelijkheden.
Door de ruime bestemmingsplanmogelijkheden kan deze mooie ruimte voor velerlei doeleinden gebruikt worden. Denk hierbij aan detailhandel, dienstverlening, maatschappelijke voorzieningen en lichte horecabedrijven uit ten hoogste categorie 1 (1a, 1b en 1c en uitsluitend inpandig). Waar wil jij de ruimte voor gebruiken?
In het winkelcentrum van Lisse dat een sterke regiofunctie heeft, zijn eveneens gevestigd C&A, Odido, Livera, Trekpleister, Rituals, Primera, Be One, Hema, Van Haren, Kruidvat etc., maar ook diverse restaurants, banken en lokale vers- en speciaalzaken zoals het Smaakhuis, Baaij Fresh, Bakker Van Maanen en Schulte Herenmode.
Er is in de directe omgeving voldoende gratis (2 uur) parkeergelegenheid aanwezig, onder meer op het parkeerterrein direct aan de achterzijde van het object, in de parkeergarage onder 'De Madelief' en/of aan de Haven/Grachtweg.
INDELING:
Middels inpandige glazen pui stap je de ruime, overzichtelijke en compleet afgewerkte multifunctionele ruimte van zo'n 113 m² VVO binnen. Het betreft een open ruimte met aan de achterzijde een toilet.
De ruime bestemmingsplanmogelijkheden zorgen ervoor dat de ruimte naast detailhandel eveneens geschikt is voor dienstverlening, maatschappelijke voorzieningen alsmede lichte horecabedrijven uit ten hoogste categorie 1 van de Staat van Horeca-activiteiten, uitsluitend inpandig.
OPPERVLAKTEN:
Winkelruimte: ca. 113 m² VVO;
Inpandige ruimte: ca 6 m²;
Totaal ca. 119 m².
VOORZIENINGEN / OPLEVERINGSNIVEAU WINKEL:
- Wanden gedeeltelijk glad, gedeeltelijk voorzien van wandpanelen met ophangbevestiging;;
- Front ca. 6 meter;
- Glazen pui voorzien overdekte buitenruimte en dubbele openslaande deuren;
- Vissengraat PVC vloer met warme houtstructuur;
- Grotendeels systeemplafonds, gedeeltelijk stuc plafond met inbouw verlichtingspots;
- Grotendeels glad afgewerkte wanden;
- Wasbak met close in boiler;
- Airconditioning;
- Modern afgewerkte toiletruimte met toilet, urinoir en fontein;
- Verkoopbalie;
- Voorpui voorzien van rolluik.
Alarminstallatie (ter overname).
BIJZONDERHEDEN:
De 360 graden foto's en video geven een beeld van de winkel met inrichting.
BESTEMMING:
Conform het vigerend bestemmingsplan "Lisse Centrum 2011" heeft het pand de bestemming 'Gemengd'. Deze gronden zijn onder meer bestemd voor detailhandel, dienstverlening, maatschappelijke voorzieningen alsmede lichte horecabedrijven uit ten hoogste categorie 1 van de Staat van Horeca-activiteiten, uitsluitend inpandig.
PARKEREN:
Ruime gratis parkeergelegenheid in de directe omgeving (parkeerschijf 2 uur).
HUURPRIJS WINKELRUIMTE:
€1.385,- per maand exclusief BTW.
OPLEVERING:
In overleg mogelijk.
HUURTERMIJN:
Uitgangspunt is een termijn van 5 jaar + 5 optie jaren. Een afwijkende termijn is bespreekbaar.
HUUROVEREENKOMST:
Standaard model winkelruimte in de zin van art. 7:290 BW, met bijbehorende algemene bepalingen, zoals door de Raad voor Onroerende Zaken (ROZ) op 5 maart 2025 is vastgesteld en op 6 maart 2025 gedeponeerd bij de griffie van de rechtbank te ’s-Gravenhage en aldaar ingeschreven onder nummer 2025/0603.
HUURPRIJSAANPASSING:
Jaarlijks per huuringangsdatum, voor het eerst 12 maanden na huuringangsdatum op basis van de wijziging van het maandprijs-indexcijfer volgens de consumentenprijsindex (CPI) reeks alle huishoudens (2015=100), zoals gepubliceerd door het Centraal Bureau voor de Statistiek (CBS).
ZEKERHEIDSTELLING:
Bankgarantie ter grootte van drie maanden huurverplichting en de over het totaal verschuldigde BTW.
COURTAGE:
Mocht door bemiddeling van BM Bedrijfsmakelaars voor dit object een transactie tot stand worden gebracht, dan zult u ons hiervoor geen kosten of courtage verschuldigd zijn.
Deze aanbieding is vrijblijvend, er kunnen derhalve geen rechten aan deze brochure, tekst en tekeningen worden ontleend.
Kenmerken
Overdracht
- Huurprijs
- € 1.385 per maand
- Oorspronkelijke huurprijs
- € 1.695 per maand
- Aangeboden sinds
-
- Status
- Beschikbaar
- Aanvaarding
- In overleg
Bouw
- Hoofdfunctie
- Winkel
- Soort bouw
- Bestaande bouw
- Bouwjaar
- 1910
Oppervlakten
- Oppervlakte
- 119 m²
- Verkoopvloeroppervlakte
- 119 m²
- Breedte gevel
- 5,9 m
Indeling
- Aantal bouwlagen
- 1 bouwlaag
Energie
- Energielabel
- E
Omgeving
- Ligging
- Stadscentrum/dorpskern
- Bereikbaarheid
- Bushalte op minder dan 500 m, metrohalte op 5000 m of meer, NS Intercitystation op 4000 m tot 5000 m, snelwegafrit op 3000 m tot 4000 m en Tramhalte op 5000 m of meer
- Bijdrage winkeliersvereniging
- Nee
- Welstandsklasse
- B1
Foto's
Plattegrond
Begane grond