Theresiastraat 130-132 2593 AS Den Haag
€ 70.000 /jr
Omschrijving
Theresiastraat 130 - 132 te 's-Gravenhage
OBJECTOMSCHRIJVING
Het betreft een representatieve en goed onderhouden winkelruimte met een breed front en uitstekende zichtbaarheid vanaf de Theresiastraat. Dankzij de ruime gevel en grote raampartijen profiteert het object van een sterke presentatie richting het passerende winkelend publiek.
De winkelruimte is gesitueerd op de begane grond en heeft een efficiënte en overzichtelijke indeling, geschikt voor uiteenlopende retail- en dienstverleningsconcepten. De ruimte wordt in huidige staat opgeleverd en is onder andere voorzien van een net systeemplafond met inbouwspots, een luchtgordijn bij de entree en airconditioning, wat bijdraagt aan een comfortabel binnenklimaat.
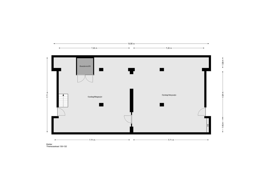
Aan de achterzijde van de winkel bevinden zich een pantry en een toiletvoorziening, op praktische wijze gescheiden van het winkelgedeelte. De bijbehorende kelderruimte is uitsluitend bestemd voor opslag. De kelder is bereikbaar via een vaste trap.
OMGEVINGSFACTOREN
De winkelruimte is gelegen aan de Theresiastraat, één van de meest geliefde en drukbezochte winkelstraten van Den Haag, in de wijk Bezuidenhout. De straat kenmerkt zich door een sterke mix van landelijke winkelketens (Etos, Albert Heijn, Hema, Wakuli), speciaalzaken en dienstverleners. De Theresiastraat staat bekend om haar levendige karakter en sterke lokale binding, wat deze locatie zeer geschikt maakt voor een breed scala aan formules.
De ruimte is direct aan de openbare weg gelegen en door het brede front uitstekend zichtbaar voor voorbijrijdend verkeer en voorbij wandelend publiek.
METRAGE
De totale oppervlakte bedraagt circa 319 m² v.v.o., als volgt verdeeld:
- Kelder: circa 111 m² v.v.o.;
- Begane grond: circa 208 m² v.v.o..
OPLEVERINGSNIVEAU
Het object wordt leeg en bezemschoon opgeleverd met onder andere de volgende voorzieningen:
- Breed front;
- Representatieve entree;
- Pantry;
- Sanitaire voorzieningen;
- Rolluiken;
- Schuifdeuren;
Doch het object wordt uitsluitend casco verhuurd.
BESTEMMINGSPLAN
Bezuidenhout – Noord, vastgesteld d.d. 09-07-2009
Bestemming: Gemengd
Toegestane functies:
Bedrijf, Detailhandel, Dienstverlening, Kantoor, Maatschappelijke voorzieningen
*Horeca is niet toegestaan.
Voor het volledige bestemmingsplan kunt u terecht op: omgevingswet.overheid.nl
ENERGIELABEL
Het object beschikt over energielabel A.
Het energielabel is geldig tot 24-10-2027.
BEREIKBAARHEID
De bereikbaarheid is uitstekend. De Theresiastraat is centraal gelegen ten opzichte van de Haagse binnenstad en goed bereikbaar per auto via de nabijgelegen uitvalswegen A12, A4 en A44.
Ook met het openbaar vervoer is de locatie goed ontsloten. Diverse tram- en busverbindingen bevinden zich op korte loopafstand en Station Den Haag Centraal ligt op enkele minuten fietsen.
PARKEREN
Het pand beschikt niet over eigen parkeermogelijkheden. In de directe omgeving is betaald parkeren aan de openbare weg mogelijk. Tevens is het mogelijk om een bedrijfsparkeervergunning aan te vragen.
HUURPRIJS
€ 70.000,- per jaar te vermeerderen met BTW.
SERVICEKOSTEN
Huurder dient zelf zorg te dragen voor aansluiting en betaling van alle nutsvoorzieningen.
HUURTERMIJN
5 (vijf) jaren + 5 (vijf) optiejaren.
OPZEGTERMIJN
12 (twaalf) maanden.
AANVAARDING
In overleg.
HUURBETALING
Per maand vooruit.
HUURPRIJSAANPASSING
Jaarlijks, voor het eerst 1 jaar na huuringangsdatum, op basis van de wijziging van het prijsindexcijfer volgens de Consumentenprijsindex (CPI), Alle Huishoudens (2025=100), gepubliceerd door het Centraal Bureau voor de Statistiek (CBS).
BTW
Verhuurder wenst te opteren voor BTW belaste verhuur. Indien huurder niet voldoet aan de criteria, zal er een nader overeen te komen percentage ter compensatie van de gederfde BTW worden vastgesteld.
ZEKERHEIDSSTELLING
Bankgarantie/waarborgsom ter grootte van een bruto betalingsverplichting van minimaal 3 (drie) maanden (huur, servicekosten en BTW), afhankelijk van de financiële gegoedheid van de huurder.
HUUROVEREENKOMST
De huurovereenkomst zal worden opgesteld conform de door de Raad voor Onroerende Zaken (ROZ) in 2025 vastgestelde ROZ model Huurovereenkomst Winkelruimte met aanvullende bepalingen van verhuurder met aanvullende bepalingen verhuurder.
+++
Bovenstaande objectinformatie is met zorg samengesteld. Voor de juistheid ervan kan door ons geen aansprakelijkheid worden aanvaard, noch aan de vermelde gegevens enig recht worden ontleend. Vermelding van vloer- en overige oppervlakten zijn slechts indicatief en kunnen in werkelijkheid afwijken. Nadrukkelijk is vermeld dat deze informatieverstrekking niet als aanbieding of offerte mag worden beschouwd.
OBJECTOMSCHRIJVING
Het betreft een representatieve en goed onderhouden winkelruimte met een breed front en uitstekende zichtbaarheid vanaf de Theresiastraat. Dankzij de ruime gevel en grote raampartijen profiteert het object van een sterke presentatie richting het passerende winkelend publiek.
De winkelruimte is gesitueerd op de begane grond en heeft een efficiënte en overzichtelijke indeling, geschikt voor uiteenlopende retail- en dienstverleningsconcepten. De ruimte wordt in huidige staat opgeleverd en is onder andere voorzien van een net systeemplafond met inbouwspots, een luchtgordijn bij de entree en airconditioning, wat bijdraagt aan een comfortabel binnenklimaat.
Aan de achterzijde van de winkel bevinden zich een pantry en een toiletvoorziening, op praktische wijze gescheiden van het winkelgedeelte. De bijbehorende kelderruimte is uitsluitend bestemd voor opslag. De kelder is bereikbaar via een vaste trap.
OMGEVINGSFACTOREN
De winkelruimte is gelegen aan de Theresiastraat, één van de meest geliefde en drukbezochte winkelstraten van Den Haag, in de wijk Bezuidenhout. De straat kenmerkt zich door een sterke mix van landelijke winkelketens (Etos, Albert Heijn, Hema, Wakuli), speciaalzaken en dienstverleners. De Theresiastraat staat bekend om haar levendige karakter en sterke lokale binding, wat deze locatie zeer geschikt maakt voor een breed scala aan formules.
De ruimte is direct aan de openbare weg gelegen en door het brede front uitstekend zichtbaar voor voorbijrijdend verkeer en voorbij wandelend publiek.
METRAGE
De totale oppervlakte bedraagt circa 319 m² v.v.o., als volgt verdeeld:
- Kelder: circa 111 m² v.v.o.;
- Begane grond: circa 208 m² v.v.o..
OPLEVERINGSNIVEAU
Het object wordt leeg en bezemschoon opgeleverd met onder andere de volgende voorzieningen:
- Breed front;
- Representatieve entree;
- Pantry;
- Sanitaire voorzieningen;
- Rolluiken;
- Schuifdeuren;
Doch het object wordt uitsluitend casco verhuurd.
BESTEMMINGSPLAN
Bezuidenhout – Noord, vastgesteld d.d. 09-07-2009
Bestemming: Gemengd
Toegestane functies:
Bedrijf, Detailhandel, Dienstverlening, Kantoor, Maatschappelijke voorzieningen
*Horeca is niet toegestaan.
Voor het volledige bestemmingsplan kunt u terecht op: omgevingswet.overheid.nl
ENERGIELABEL
Het object beschikt over energielabel A.
Het energielabel is geldig tot 24-10-2027.
BEREIKBAARHEID
De bereikbaarheid is uitstekend. De Theresiastraat is centraal gelegen ten opzichte van de Haagse binnenstad en goed bereikbaar per auto via de nabijgelegen uitvalswegen A12, A4 en A44.
Ook met het openbaar vervoer is de locatie goed ontsloten. Diverse tram- en busverbindingen bevinden zich op korte loopafstand en Station Den Haag Centraal ligt op enkele minuten fietsen.
PARKEREN
Het pand beschikt niet over eigen parkeermogelijkheden. In de directe omgeving is betaald parkeren aan de openbare weg mogelijk. Tevens is het mogelijk om een bedrijfsparkeervergunning aan te vragen.
HUURPRIJS
€ 70.000,- per jaar te vermeerderen met BTW.
SERVICEKOSTEN
Huurder dient zelf zorg te dragen voor aansluiting en betaling van alle nutsvoorzieningen.
HUURTERMIJN
5 (vijf) jaren + 5 (vijf) optiejaren.
OPZEGTERMIJN
12 (twaalf) maanden.
AANVAARDING
In overleg.
HUURBETALING
Per maand vooruit.
HUURPRIJSAANPASSING
Jaarlijks, voor het eerst 1 jaar na huuringangsdatum, op basis van de wijziging van het prijsindexcijfer volgens de Consumentenprijsindex (CPI), Alle Huishoudens (2025=100), gepubliceerd door het Centraal Bureau voor de Statistiek (CBS).
BTW
Verhuurder wenst te opteren voor BTW belaste verhuur. Indien huurder niet voldoet aan de criteria, zal er een nader overeen te komen percentage ter compensatie van de gederfde BTW worden vastgesteld.
ZEKERHEIDSSTELLING
Bankgarantie/waarborgsom ter grootte van een bruto betalingsverplichting van minimaal 3 (drie) maanden (huur, servicekosten en BTW), afhankelijk van de financiële gegoedheid van de huurder.
HUUROVEREENKOMST
De huurovereenkomst zal worden opgesteld conform de door de Raad voor Onroerende Zaken (ROZ) in 2025 vastgestelde ROZ model Huurovereenkomst Winkelruimte met aanvullende bepalingen van verhuurder met aanvullende bepalingen verhuurder.
+++
Bovenstaande objectinformatie is met zorg samengesteld. Voor de juistheid ervan kan door ons geen aansprakelijkheid worden aanvaard, noch aan de vermelde gegevens enig recht worden ontleend. Vermelding van vloer- en overige oppervlakten zijn slechts indicatief en kunnen in werkelijkheid afwijken. Nadrukkelijk is vermeld dat deze informatieverstrekking niet als aanbieding of offerte mag worden beschouwd.
Kenmerken
Overdracht
- Huurprijs
- € 70.000 per jaar
- Aangeboden sinds
-
- Status
- Beschikbaar
- Aanvaarding
- In overleg
Bouw
- Hoofdfunctie
- Winkel met showroom
- Soort bouw
- Bestaande bouw
- Bouwjaar
- 1957
Oppervlakten
- Oppervlakte
- 319 m²
- Verkoopvloeroppervlakte
- 208 m²
- Breedte gevel
- 15,7 m
Indeling
- Aantal bouwlagen
- 1 bouwlaag
Energie
- Energielabel
- A
Omgeving
- Ligging
- Winkelcentrum
- Bereikbaarheid
- Bushalte op minder dan 500 m, NS Intercitystation op 1500 m tot 2000 m, snelwegafrit op 1500 m tot 2000 m en Tramhalte op minder dan 500 m
- Bijdrage winkeliersvereniging
- Nee
- Welstandsklasse
- B1
NVM makelaar
Foto's
Plattegrond
Kelder
Begane Grond