Nevadadreef 24 3565 CB Utrecht
€ 595 /mnd
Omschrijving
ALGEMEEN
Het kantoorgebouw aan de Nevadadreef 24 te Utrecht is gelegen op het bedrijventerrein Overvecht waar diverse gerenommeerde ondernemingen zijn gevestigd, waaronder Gamma, Bouwmaat, Leen Bakker, Verkerk Volvo Utrecht en Jumbo. Het bedrijventerrein is via de Zuilense Ring en de Franciscusdreef uitstekend bereikbaar. Via de Zuilense Ring zijn de Rijkswegen A2 en A27 zeer goed bereikbaar, wat het bedrijventerrein ten goede komt.
De begane grond is in zijn geheel verhuurd en in gebruik door Teleson B.V. Op de eerste verdieping is een business center gerealiseerd waar verschillende business units beschikbaar zijn voor de verhuur.
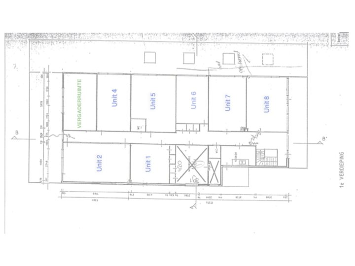
Via een separate entree en de houten trap betreedt u het business center bestaande uit zeven kantoorruimtes, een gemeenschappelijke pantry/keuken, een vergaderruimte en gescheiden toiletten.
De kantoorruimten worden turnkey opgeleverd, het is de ideale oplossing voor organisaties die op korte termijn op zoek zijn naar een leuke, goed bereikbare en instapklare werkplek.
BEREIKBAARHEID
Eigen vervoer:
Vanaf de Zuilense Ring (N230) is het kantoorgebouw binnen circa 3 minuten te bereiken. Vanaf deze rondweg is er een directe verbinding met de A27 (Almere-Breda) en de A28 (Utrecht-Groningen). Via de A2 is de A12 richting Arnhem-Den Haag eveneens goed bereikbaar. De reistijd per auto tot het centrum van Utrecht bedraagt circa 15 minuten. Amsterdam is via de rijksweg A2 in circa 20 minuten bereikbaar.
Openbaar vervoer:
De bushalte is gelegen op circa 5 minuten loopafstand. Vanaf deze halte is met buslijn 3 NS-station Utrecht Zuilen te bereiken in circa 8 minuten en het Centraal Station Utrecht in circa 19 minuten.
VLOEROPPERVLAK
Op de 1e verdieping is voor de verhuur beschikbaar totaal circa 31,4 m² v.v.o. verdeeld als volgt:
Unit | Metrage | Huurprijs | Beschikbaarheid
Unit 7 | circa 31,4 m2 v.v.o. | € 595,00 | per direct
Huurprijs per maand is inclusief de vaste servicekosten, te vermeerderen met omzetbelasting.
Genoemde metrages zijn inclusief de toedeling van de algemene en gemeenschappelijke ruimten.
PARKEERGELEGENHEID
Voldoende vrije parkeergelegenheid langs de openbare weg.
OPLEVERINGSNIVEAU
De kantoorruimte wordt opgeleverd in de huidige nette staat met de volgende voorzieningen:
• vloerbedekking in de kantoor- en gemeenschappelijke ruimtes;
• huidige systeemplafonds voorzien van verlichtingsarmaturen;
• gemeenschappelijke vergaderruimte voorzien van vergadertafel met stoelen;
• gemeenschappelijke pantry/keuken voorzien van boven-, onderkastjes en vaatwasmachine;
• gescheiden toiletten;
• deels te openen ramen;
• intercominstallatie per kantoorunit;
• huidige kabelgoten voorzien van databekabeling;
• brandslanghaspels.
AANVAARDING
In overleg.
VOORWAARDEN EN CONDITIES
BTW-HEFFING
Uitgangspunt is BTW-belaste verhuur. Derhalve dient bovengenoemd bedrag te worden vermeerderd met het van toepassing zijnde BTW-percentage. Indien huurder niet aan het 90% criterium voldoet, is er van rechtswege sprake van omzetbelasting vrijgestelde verhuur. Alsdan wordt de overeengekomen kale huurprijs, exclusief omzetbelasting, zodanig verhoogd dat het voor verhuurder ontstane nadeel wordt gecompenseerd.
HUURTERMIJN
Flexibele huurtermijnen vanaf 1 (één) jaar zijn bespreekbaar.
HUURBETALING
De huur inclusief de vaste servicekosten, te vermeerderen met omzetbelasting, per kwartaal/maand vooruit.
HUURPRIJSHERZIENING
Jaarlijks, voor het eerst 1 (één) jaar na huuringangsdatum, op basis van de wijziging van het maandprijsindexcijfer volgens het consumenten-prijsindexcijfer (CPI), reeks voor alle huishoudens (2015 = 100), gepubliceerd door het Centraal Bureau voor de Statistiek (CBS).
SERVICEKOSTEN
De huurprijzen zoals vermeld zijn inclusief de vaste servicekosten, voor de kosten van de navolgende leveringen en diensten:
• warmte-, elektriciteits- en waterverbruik inclusief vastrecht van de algemene alsmede eigen ruimte;
• onderhoud en periodieke controle CV-installatie;
• onderhoud en periodieke controle verlichting in gemeenschappelijke ruimten en noodverlichting;
• onderhoud en periodieke controle brandmeldapparatuur en haspels;
• glasbewassing gemeenschappelijke ruimten;
• periodiek schoonhouden en ontstoppen goten en hemelwaterafvoeren;
• schoonmaak van de toiletgroepen;
• schoonmaak van de algemene ruimtes;
• administratiekosten ad. 5% over de hierboven vermelde leveringen en diensten.
Bovenstaande lijst is niet limitatief. Verhuurder behoudt zich het recht voor genoemde leveringen en diensten en speciale voorzieningen uit te breiden of in te krimpen en het door huurder te betalen aandeel in de kosten dienovereenkomstig te wijzigen.
ZEKERHEIDSSTELLING
Een bankgarantie, model ROZ, of waarborgsom ter grootte van drie maanden huurpenningen en servicekosten, te vermeerderen met omzetbelasting.
HUUROVEREENKOMST
De op te stellen huurovereenkomst is conform de overeenkomst die door de Raad voor Onroerende Zaken in februari 2015 is vastgesteld en zoals gehanteerd wordt door de Nederlandse Vereniging van Makelaars NVM met de bijbehorende Algemene Bepalingen.
Het kantoorgebouw aan de Nevadadreef 24 te Utrecht is gelegen op het bedrijventerrein Overvecht waar diverse gerenommeerde ondernemingen zijn gevestigd, waaronder Gamma, Bouwmaat, Leen Bakker, Verkerk Volvo Utrecht en Jumbo. Het bedrijventerrein is via de Zuilense Ring en de Franciscusdreef uitstekend bereikbaar. Via de Zuilense Ring zijn de Rijkswegen A2 en A27 zeer goed bereikbaar, wat het bedrijventerrein ten goede komt.
De begane grond is in zijn geheel verhuurd en in gebruik door Teleson B.V. Op de eerste verdieping is een business center gerealiseerd waar verschillende business units beschikbaar zijn voor de verhuur.
Via een separate entree en de houten trap betreedt u het business center bestaande uit zeven kantoorruimtes, een gemeenschappelijke pantry/keuken, een vergaderruimte en gescheiden toiletten.
De kantoorruimten worden turnkey opgeleverd, het is de ideale oplossing voor organisaties die op korte termijn op zoek zijn naar een leuke, goed bereikbare en instapklare werkplek.
BEREIKBAARHEID
Eigen vervoer:
Vanaf de Zuilense Ring (N230) is het kantoorgebouw binnen circa 3 minuten te bereiken. Vanaf deze rondweg is er een directe verbinding met de A27 (Almere-Breda) en de A28 (Utrecht-Groningen). Via de A2 is de A12 richting Arnhem-Den Haag eveneens goed bereikbaar. De reistijd per auto tot het centrum van Utrecht bedraagt circa 15 minuten. Amsterdam is via de rijksweg A2 in circa 20 minuten bereikbaar.
Openbaar vervoer:
De bushalte is gelegen op circa 5 minuten loopafstand. Vanaf deze halte is met buslijn 3 NS-station Utrecht Zuilen te bereiken in circa 8 minuten en het Centraal Station Utrecht in circa 19 minuten.
VLOEROPPERVLAK
Op de 1e verdieping is voor de verhuur beschikbaar totaal circa 31,4 m² v.v.o. verdeeld als volgt:
Unit | Metrage | Huurprijs | Beschikbaarheid
Unit 7 | circa 31,4 m2 v.v.o. | € 595,00 | per direct
Huurprijs per maand is inclusief de vaste servicekosten, te vermeerderen met omzetbelasting.
Genoemde metrages zijn inclusief de toedeling van de algemene en gemeenschappelijke ruimten.
PARKEERGELEGENHEID
Voldoende vrije parkeergelegenheid langs de openbare weg.
OPLEVERINGSNIVEAU
De kantoorruimte wordt opgeleverd in de huidige nette staat met de volgende voorzieningen:
• vloerbedekking in de kantoor- en gemeenschappelijke ruimtes;
• huidige systeemplafonds voorzien van verlichtingsarmaturen;
• gemeenschappelijke vergaderruimte voorzien van vergadertafel met stoelen;
• gemeenschappelijke pantry/keuken voorzien van boven-, onderkastjes en vaatwasmachine;
• gescheiden toiletten;
• deels te openen ramen;
• intercominstallatie per kantoorunit;
• huidige kabelgoten voorzien van databekabeling;
• brandslanghaspels.
AANVAARDING
In overleg.
VOORWAARDEN EN CONDITIES
BTW-HEFFING
Uitgangspunt is BTW-belaste verhuur. Derhalve dient bovengenoemd bedrag te worden vermeerderd met het van toepassing zijnde BTW-percentage. Indien huurder niet aan het 90% criterium voldoet, is er van rechtswege sprake van omzetbelasting vrijgestelde verhuur. Alsdan wordt de overeengekomen kale huurprijs, exclusief omzetbelasting, zodanig verhoogd dat het voor verhuurder ontstane nadeel wordt gecompenseerd.
HUURTERMIJN
Flexibele huurtermijnen vanaf 1 (één) jaar zijn bespreekbaar.
HUURBETALING
De huur inclusief de vaste servicekosten, te vermeerderen met omzetbelasting, per kwartaal/maand vooruit.
HUURPRIJSHERZIENING
Jaarlijks, voor het eerst 1 (één) jaar na huuringangsdatum, op basis van de wijziging van het maandprijsindexcijfer volgens het consumenten-prijsindexcijfer (CPI), reeks voor alle huishoudens (2015 = 100), gepubliceerd door het Centraal Bureau voor de Statistiek (CBS).
SERVICEKOSTEN
De huurprijzen zoals vermeld zijn inclusief de vaste servicekosten, voor de kosten van de navolgende leveringen en diensten:
• warmte-, elektriciteits- en waterverbruik inclusief vastrecht van de algemene alsmede eigen ruimte;
• onderhoud en periodieke controle CV-installatie;
• onderhoud en periodieke controle verlichting in gemeenschappelijke ruimten en noodverlichting;
• onderhoud en periodieke controle brandmeldapparatuur en haspels;
• glasbewassing gemeenschappelijke ruimten;
• periodiek schoonhouden en ontstoppen goten en hemelwaterafvoeren;
• schoonmaak van de toiletgroepen;
• schoonmaak van de algemene ruimtes;
• administratiekosten ad. 5% over de hierboven vermelde leveringen en diensten.
Bovenstaande lijst is niet limitatief. Verhuurder behoudt zich het recht voor genoemde leveringen en diensten en speciale voorzieningen uit te breiden of in te krimpen en het door huurder te betalen aandeel in de kosten dienovereenkomstig te wijzigen.
ZEKERHEIDSSTELLING
Een bankgarantie, model ROZ, of waarborgsom ter grootte van drie maanden huurpenningen en servicekosten, te vermeerderen met omzetbelasting.
HUUROVEREENKOMST
De op te stellen huurovereenkomst is conform de overeenkomst die door de Raad voor Onroerende Zaken in februari 2015 is vastgesteld en zoals gehanteerd wordt door de Nederlandse Vereniging van Makelaars NVM met de bijbehorende Algemene Bepalingen.
Kenmerken
Overdracht
- Huurprijs
- € 595 per maand
- Servicekosten
- Geen servicekosten bekend
- Aangeboden sinds
-
- Status
- Beschikbaar
- Aanvaarding
- In overleg
Bouw
- Hoofdfunctie
- Kantoor
- Soort bouw
- Bestaande bouw
- Bouwjaar
- 1972
Oppervlakten
- Oppervlakte
- 31 m²
Indeling
- Aantal bouwlagen
- 1 bouwlaag
- Voorzieningen
- Mechanische ventilatie, inbouwarmaturen, te openen ramen, kabelgoten, systeemplafond, toilet, pantry, verwarming en kamerindeling
Energie
- Energielabel
- Niet verplicht
Omgeving
- Ligging
- Bedrijventerrein, perifere detailhandelsvestigingen en grootschalige detailhandelsvestigingen
- Bereikbaarheid
- Bushalte op minder dan 500 m, busknooppunt op 2000 m tot 3000 m, NS Intercitystation op 2000 m tot 3000 m en snelwegafrit op 500 m tot 1000 m
Foto's
Plattegrond
1e verdieping