Voltastraat 31 1446 VA Purmerend
€ 120 /m²/jaar
Omschrijving
PRACHTIGE NIEUW GERENOVEERDE KANTOORRUIMTES BESCHIKBAAR
Bent u op zoek naar representatieve en gloednieuwe kantoorruimtes te huur in Purmerend? Aan de Voltastraat 31-33 in Purmerend bieden wij dit prachtige gerenoveerde bedrijfsverzamelcomplex aan. Het complex biedt zowel kantoorruimtes als bedrijfsruimtes in verschillende formaten te huur aan. De kantoorruimtes beginnen al vanaf ca. 26 m² tot aan ca. 550 m². De bedrijfsruimtes hebben een oppervlakte vanaf ca. 60 m² tot ca. 570 m². De ruimtes kunnen uitstekend met elkaar gecombineerd worden om tot de door u gewenste oppervlaktes te komen.
De huurprijzen zijn afhankelijk van het type unit en de oppervlakte. Onderstaand bij "Beschikbaarheid te huren ruimtes" vindt u de prijzen per unit.
Heeft u vragen en/of wensen, laat het ons weten zodat wij met u mee kunnen denken!
KENMERKEN VAN DE KANTOORUNITS
De te huren kantoorruimtes in Purmerend zijn gelegen op de eerste en tweede verdieping van het gebouw en te bereiken via de gemeenschappelijk entree inclusief trappenhuis. De ruimtes zijn tot in de puntjes afgewerkt en zijn per direct klaar voor uw intrek. Ondanks de verschillende afmetingen van de units, heeft iedere unit in ieder geval de volgende kenmerken:
- Airco unit voor verwarmen en koelen.
- Veel daglichttoetreding.
- Stopcontacten in de wandgoot.
- Led verlichting met sensoren.
- Te openen ramen.
- (Gemeenschappelijke) toiletten en een pantry.
- Vloerafwerking: huurder dient zelf een vloerafwerking naar smaak in de ruimte aan te brengen.
LIGGING VAN DE LOCATIE
De kantoorruimtes en bedrijfsruimtes zijn gelegen op bedrijventerrein Baanstee-West te Purmerend, welke uitstekend bereikbaar is via de N244 die aansluiting heeft met de snelweg A7 (Hoorn – Amsterdam).
De bereikbaarheid van het bedrijfsverzamelcomplex met eigen vervoer is uitstekend te noemen. Het gebouw ligt op ongeveer 2 minuten loopafstand van het openbaar vervoer en beschikt over voldoende parkeergelegenheid.
BESCHIKBAARHEID TE HUREN KANTOORRUIMTES
- De oppervlaktes van onderstaande kantoorruimtes zijn inclusief algemene ruimte (gangen, toiletten, pantry e.d.).
- De huurprijzen zijn exclusief btw en exclusief voorschot servicekosten.
- Het voorschot servicekosten bedraagt € 40,- per m² per jaar, excl. btw. De maandelijkse betaling kunt u bereken door de oppervlakte van de unit * € 40,- / 12 te doen.
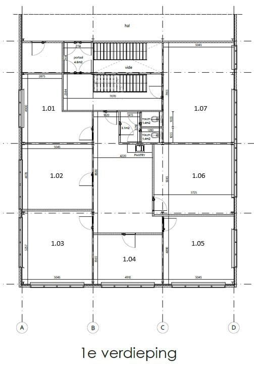
Voltastraat 31 - 1e verdieping:
UNIT 1.1 - ca. 33 m² = € ,- excl. -- VERHUURD
UNIT 1.2 - ca. 40 m² = € 400,- excl.
UNIT 1.3 - ca. 47 m² = € 470,- excl.
UNIT 1.4 - ca. 31 m² = € ,- excl. -- VERHUURD
UNIT 1.5 - ca. 44 m² = € 440,- excl.
UNIT 1.6 - ca. 49 m² = € 490,- excl.
UNIT 1.7 - ca. 61 m² = € ,- excl. -- VERHUURD
Gehele 1e verdieping: ca. 307 m² - € 2.815,- excl. btw
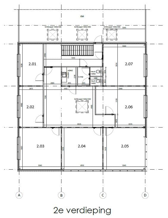
Voltastraat 33 - 2e verdieping:
UNIT 2.1 - ca. 24 m² = € ,- excl. -- VERHUURD
UNIT 2.2 - ca. 23 m² = € ,- excl. -- VERHUURD
UNIT 2.3 - ca. 40 m² = € 400,- excl.
UNIT 2.4 - ca. 38 m² = € 380,- excl.
UNIT 2.5 - ca. 40 m² = € 400,- excl.
UNIT 2.6 - ca. 39 m² = € 390,- excl.
UNIT 2.7 - ca. 40 m² = € ,- excl. -- VERHUURD
Gehele 2e verdieping: ca. 244 m² - € 2.240,- excl. btw
**Bedrijfsruimtes**
Er zijn bedrijfsruimtes vanaf ca. 60 m² tot aan ca. 570 m². Voor de beschikbaarheid en prijzen van de bedrijfsruimtes kunt u direct contact met ons opnemen, of kijken bij onze andere advertentie:
Voltastraat 23, Purmerend
Bovenstaande units kunnen aan elkaar geschakeld worden om tot de gewenste oppervlakte te komen. Zit de oppervlakte waar u naar op zoek bent er niet tussen of voldoet de ruimte niet geheel aan uw wensen, laat het ons weten. Wij denken graag met u mee!
AANVULLENDE INFORMATIE
- Parkeerplaatsen: er is voldoende parkeergelegenheid op eigen terrein aanwezig. Heeft u hier specifieke wensen voor? Dan vernemen wij het graag.
HUURVOORWAARDEN
U dient met de volgende voorwaarden rekening te houden bij het huren van een bedrijfsruimte:
- Bovengenoemde huurprijzen zijn voor de bestaande situatie. Indien u aanvullende wensen of eisen heeft, kan dit invloed hebben op huurprijs.
- Servicekosten: dit betreft een voorschot en woorden jaarlijks verrekend naar daadwerkelijk gebruik. De servicekosten hebben betrekking op onderhoud van de bij het pand behorende installaties zoals de overheaddeuren, brandblusmiddelen, airco installaties, elektrakeuring en daarnaast op groen-, terrein- en dakonderhoud.
- Huurtermijn: 3 (drie) of 5 (vijf) jaar met een automatische verlenging van telkens 3 (drie) of 5 (vijf) jaar. Afwijkende termijnen zijn in overleg bespreekbaar.
- Waarborgsom: 3 (drie) bruto maandverplichtingen, te weten een bedrag ter grootte van 3 (drie) maanden huur plus servicekosten en de daarover belastte btw.
- Opzegtermijn: dit bedraagt temminste 6 (zes) of 12 (twaalf) maanden voor het einde van uw huurtermijn. De opzegtermijn is afhankelijk van de lengte van de huurtermijn.
- Huurprijsaanpassing: Jaarlijkse verhoging, voor het eerst een jaar na ingangsdatum van het huurcontract. Dit op basis van de wijziging van het maandprijsindexcijfer volgens de consumentenprijsindex (CPI) “alle huishoudens” (2015 = 100), gepubliceerd door het Centraal Bureau voor de statistiek (CBS).
Disclaimer
Het gestelde in deze objectinformatie behelst vrijblijvende en globale informatie met betrekking tot het daarbij genoemde onroerend goed. De beschikbaarheid is indicatief en onder uitdrukkelijk voorbehoud goedkeuring en overleg opdrachtgever. Aan de inhoud van deze informatie kunnen geen rechten worden ontleend. Door aanvaarding van de vermelde condities respectievelijk door het doen van een tegenvoorstel, worden onze opdrachtgevers dan wel ons kantoor niet gebonden.
Bent u op zoek naar representatieve en gloednieuwe kantoorruimtes te huur in Purmerend? Aan de Voltastraat 31-33 in Purmerend bieden wij dit prachtige gerenoveerde bedrijfsverzamelcomplex aan. Het complex biedt zowel kantoorruimtes als bedrijfsruimtes in verschillende formaten te huur aan. De kantoorruimtes beginnen al vanaf ca. 26 m² tot aan ca. 550 m². De bedrijfsruimtes hebben een oppervlakte vanaf ca. 60 m² tot ca. 570 m². De ruimtes kunnen uitstekend met elkaar gecombineerd worden om tot de door u gewenste oppervlaktes te komen.
De huurprijzen zijn afhankelijk van het type unit en de oppervlakte. Onderstaand bij "Beschikbaarheid te huren ruimtes" vindt u de prijzen per unit.
Heeft u vragen en/of wensen, laat het ons weten zodat wij met u mee kunnen denken!
KENMERKEN VAN DE KANTOORUNITS
De te huren kantoorruimtes in Purmerend zijn gelegen op de eerste en tweede verdieping van het gebouw en te bereiken via de gemeenschappelijk entree inclusief trappenhuis. De ruimtes zijn tot in de puntjes afgewerkt en zijn per direct klaar voor uw intrek. Ondanks de verschillende afmetingen van de units, heeft iedere unit in ieder geval de volgende kenmerken:
- Airco unit voor verwarmen en koelen.
- Veel daglichttoetreding.
- Stopcontacten in de wandgoot.
- Led verlichting met sensoren.
- Te openen ramen.
- (Gemeenschappelijke) toiletten en een pantry.
- Vloerafwerking: huurder dient zelf een vloerafwerking naar smaak in de ruimte aan te brengen.
LIGGING VAN DE LOCATIE
De kantoorruimtes en bedrijfsruimtes zijn gelegen op bedrijventerrein Baanstee-West te Purmerend, welke uitstekend bereikbaar is via de N244 die aansluiting heeft met de snelweg A7 (Hoorn – Amsterdam).
De bereikbaarheid van het bedrijfsverzamelcomplex met eigen vervoer is uitstekend te noemen. Het gebouw ligt op ongeveer 2 minuten loopafstand van het openbaar vervoer en beschikt over voldoende parkeergelegenheid.
BESCHIKBAARHEID TE HUREN KANTOORRUIMTES
- De oppervlaktes van onderstaande kantoorruimtes zijn inclusief algemene ruimte (gangen, toiletten, pantry e.d.).
- De huurprijzen zijn exclusief btw en exclusief voorschot servicekosten.
- Het voorschot servicekosten bedraagt € 40,- per m² per jaar, excl. btw. De maandelijkse betaling kunt u bereken door de oppervlakte van de unit * € 40,- / 12 te doen.
Voltastraat 31 - 1e verdieping:
UNIT 1.1 - ca. 33 m² = € ,- excl. -- VERHUURD
UNIT 1.2 - ca. 40 m² = € 400,- excl.
UNIT 1.3 - ca. 47 m² = € 470,- excl.
UNIT 1.4 - ca. 31 m² = € ,- excl. -- VERHUURD
UNIT 1.5 - ca. 44 m² = € 440,- excl.
UNIT 1.6 - ca. 49 m² = € 490,- excl.
UNIT 1.7 - ca. 61 m² = € ,- excl. -- VERHUURD
Gehele 1e verdieping: ca. 307 m² - € 2.815,- excl. btw
Voltastraat 33 - 2e verdieping:
UNIT 2.1 - ca. 24 m² = € ,- excl. -- VERHUURD
UNIT 2.2 - ca. 23 m² = € ,- excl. -- VERHUURD
UNIT 2.3 - ca. 40 m² = € 400,- excl.
UNIT 2.4 - ca. 38 m² = € 380,- excl.
UNIT 2.5 - ca. 40 m² = € 400,- excl.
UNIT 2.6 - ca. 39 m² = € 390,- excl.
UNIT 2.7 - ca. 40 m² = € ,- excl. -- VERHUURD
Gehele 2e verdieping: ca. 244 m² - € 2.240,- excl. btw
**Bedrijfsruimtes**
Er zijn bedrijfsruimtes vanaf ca. 60 m² tot aan ca. 570 m². Voor de beschikbaarheid en prijzen van de bedrijfsruimtes kunt u direct contact met ons opnemen, of kijken bij onze andere advertentie:
Voltastraat 23, Purmerend
Bovenstaande units kunnen aan elkaar geschakeld worden om tot de gewenste oppervlakte te komen. Zit de oppervlakte waar u naar op zoek bent er niet tussen of voldoet de ruimte niet geheel aan uw wensen, laat het ons weten. Wij denken graag met u mee!
AANVULLENDE INFORMATIE
- Parkeerplaatsen: er is voldoende parkeergelegenheid op eigen terrein aanwezig. Heeft u hier specifieke wensen voor? Dan vernemen wij het graag.
HUURVOORWAARDEN
U dient met de volgende voorwaarden rekening te houden bij het huren van een bedrijfsruimte:
- Bovengenoemde huurprijzen zijn voor de bestaande situatie. Indien u aanvullende wensen of eisen heeft, kan dit invloed hebben op huurprijs.
- Servicekosten: dit betreft een voorschot en woorden jaarlijks verrekend naar daadwerkelijk gebruik. De servicekosten hebben betrekking op onderhoud van de bij het pand behorende installaties zoals de overheaddeuren, brandblusmiddelen, airco installaties, elektrakeuring en daarnaast op groen-, terrein- en dakonderhoud.
- Huurtermijn: 3 (drie) of 5 (vijf) jaar met een automatische verlenging van telkens 3 (drie) of 5 (vijf) jaar. Afwijkende termijnen zijn in overleg bespreekbaar.
- Waarborgsom: 3 (drie) bruto maandverplichtingen, te weten een bedrag ter grootte van 3 (drie) maanden huur plus servicekosten en de daarover belastte btw.
- Opzegtermijn: dit bedraagt temminste 6 (zes) of 12 (twaalf) maanden voor het einde van uw huurtermijn. De opzegtermijn is afhankelijk van de lengte van de huurtermijn.
- Huurprijsaanpassing: Jaarlijkse verhoging, voor het eerst een jaar na ingangsdatum van het huurcontract. Dit op basis van de wijziging van het maandprijsindexcijfer volgens de consumentenprijsindex (CPI) “alle huishoudens” (2015 = 100), gepubliceerd door het Centraal Bureau voor de statistiek (CBS).
Disclaimer
Het gestelde in deze objectinformatie behelst vrijblijvende en globale informatie met betrekking tot het daarbij genoemde onroerend goed. De beschikbaarheid is indicatief en onder uitdrukkelijk voorbehoud goedkeuring en overleg opdrachtgever. Aan de inhoud van deze informatie kunnen geen rechten worden ontleend. Door aanvaarding van de vermelde condities respectievelijk door het doen van een tegenvoorstel, worden onze opdrachtgevers dan wel ons kantoor niet gebonden.
Kenmerken
Overdracht
- Huurprijs
- € 120 per vierkante meter per jaar
- Servicekosten
- Geen servicekosten bekend
- Aangeboden sinds
-
- Status
- Beschikbaar
- Aanvaarding
- Per direct beschikbaar
Bouw
- Hoofdfunctie
- Kantoor
- Soort bouw
- Bestaande bouw
- Bouwjaar
- 2025
Oppervlakten
- Oppervlakte
- 550 m² (in units vanaf 24 m²)
Indeling
- Aantal bouwlagen
- 2 bouwlagen
- Voorzieningen
- Airconditioning, mechanische ventilatie, inbouwarmaturen, te openen ramen, kabelgoten, systeemplafond, toilet, pantry, verwarming en kamerindeling
Energie
- Energielabel
- A++
Omgeving
- Ligging
- Bedrijventerrein
Foto's
Plattegrond
1e verdieping
2e verdieping