Aquamarijnstraat 24 7554 NS Hengelo (OV)
€ 35.500 /jr
Omschrijving
TE HUUR - REPRESENTATIEVE KANTOORRUIMTE
Te huur zeer representatieve kantoorruimte van totaal circa 280 m², aan de Aquamarijnstraat 24 te Hengelo. De kantoorruimte is gesitueerd op de eerste etage en heeft een zelfstandige entree op de begane grond. De onderhavige kantoorruimte maakt onderdeel uit van een bedrijfscomplex welke thans verder volledig in gebruik is bij TBH Plastics.
Op het terrein zijn voldoende parkeerplaatsen aanwezig.
De kantoorruimte is in 2023 volledig gemoderniseerd. Zo heeft de eigenaar nieuwe airconditioning aangebracht, glazenscheidingswanden geplaatst en grotendeels een gietvloer laten leggen. Tijdens de verbouwing is ervoor gekozen een open karakter van de kantoren, maar is er rekening gehouden met de mogelijkheid de kantoorruimte te splitsen en eenvoudig naar wens in te delen.
BESTEMMINGSPLAN
“Bedrijventerrein Twentekanaal”
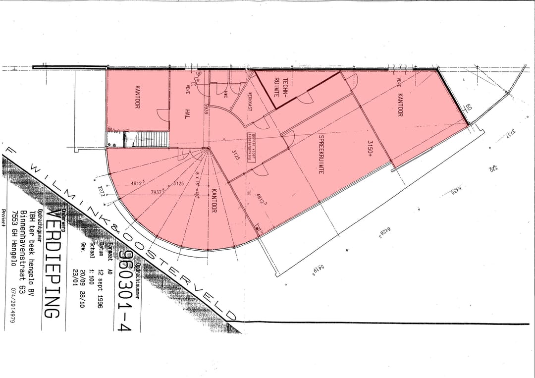
INDELING EN OPPERVLAKTE
De totale verhuurbare oppervlakte van het onderhavige object bedraagt circa 280 m².
De oppervlakten zijn gemeten door verhurend makelaar uit een kopie bouwtekening. Het opgegeven metrage is derhalve indicatief; er kunnen geen rechten aan worden ontleend noch kan er sprake zijn van enige verrekening achteraf.
Het object wordt opgeleverd met o.a. de volgende voorzieningen:
- Airconditioning, per ruimte regelbaar
- Verwarming middels radiatoren, maar ook middels airconditioning
- Gietvloer in de kantoorruimte
- Algemene ruimte voorzien van marmeren tegelvoer
- Gescheiden sanitair
- Pantry
- Systeemplafond (verdekt uitgevoerd)
- Ledverlichting
- Alarmsysteem
HUURPRIJS
€ 35.500,-- per jaar, te vermeerderen met btw.
HUURTERMIJN
5 jaar
VERLENGINGSTERMIJN
Met aansluitende periode van telkens 5 jaar.
OPZEGTERMIJN
12 maanden voorafgaande aan de expiratiedatum.
BTW
Er is sprake van een verhuur met btw. Indien huurder niet voldoet aan de fiscale 90% btw-norm zal er een btw-vervangende opslag worden berekend.
ZEKERHEIDSSTELLING
Doorlopende bankgarantie of waarborgsom ter grootte van 3 maanden huur inclusief eventuele servicekosten en inclusief btw.
INDEXERING
Jaarlijks, voor het eerst één jaar na huuringangsdatum, op basis van de wijziging van het maandprijsindexcijfer volgens de consumentenprijsindex (CPI), reeks CPI - Alle huishoudens (2015=100), gepubliceerd door het Centraal Bureau voor de Statistiek (CBS). De huurprijs zal nimmer minder bedragen dan de huurprijs van het voorafgaande jaar.
BEREIKBAARHEID
De kantoorruimte is zeer goed bereikbaar middels de Diamantstraat. Op slechts 2 rijminuten is de snelweg (A35) te bereiken. De mogelijkheid bestaat om in overleg met de eigenaar signing aan te brengen, welke goed zichtbaar zal zijn vanuit de drukke Haakbergerstraat.
OMGEVINGSFACTOREN
Het object is gelegen op bedrijventerrein Twentekanaal Zuid, waar verschillende bedrijven zijn gevestigd, zoals Makro, Prescan, Powerspex, Ultrasun International en Ten Brinke.
AANVAARDING
Aanvaarding in overleg.
VOORBEHOUD
Definitieve goedkeuring opdrachtgever en/of verhuurder.
Te huur zeer representatieve kantoorruimte van totaal circa 280 m², aan de Aquamarijnstraat 24 te Hengelo. De kantoorruimte is gesitueerd op de eerste etage en heeft een zelfstandige entree op de begane grond. De onderhavige kantoorruimte maakt onderdeel uit van een bedrijfscomplex welke thans verder volledig in gebruik is bij TBH Plastics.
Op het terrein zijn voldoende parkeerplaatsen aanwezig.
De kantoorruimte is in 2023 volledig gemoderniseerd. Zo heeft de eigenaar nieuwe airconditioning aangebracht, glazenscheidingswanden geplaatst en grotendeels een gietvloer laten leggen. Tijdens de verbouwing is ervoor gekozen een open karakter van de kantoren, maar is er rekening gehouden met de mogelijkheid de kantoorruimte te splitsen en eenvoudig naar wens in te delen.
BESTEMMINGSPLAN
“Bedrijventerrein Twentekanaal”
INDELING EN OPPERVLAKTE
De totale verhuurbare oppervlakte van het onderhavige object bedraagt circa 280 m².
De oppervlakten zijn gemeten door verhurend makelaar uit een kopie bouwtekening. Het opgegeven metrage is derhalve indicatief; er kunnen geen rechten aan worden ontleend noch kan er sprake zijn van enige verrekening achteraf.
Het object wordt opgeleverd met o.a. de volgende voorzieningen:
- Airconditioning, per ruimte regelbaar
- Verwarming middels radiatoren, maar ook middels airconditioning
- Gietvloer in de kantoorruimte
- Algemene ruimte voorzien van marmeren tegelvoer
- Gescheiden sanitair
- Pantry
- Systeemplafond (verdekt uitgevoerd)
- Ledverlichting
- Alarmsysteem
HUURPRIJS
€ 35.500,-- per jaar, te vermeerderen met btw.
HUURTERMIJN
5 jaar
VERLENGINGSTERMIJN
Met aansluitende periode van telkens 5 jaar.
OPZEGTERMIJN
12 maanden voorafgaande aan de expiratiedatum.
BTW
Er is sprake van een verhuur met btw. Indien huurder niet voldoet aan de fiscale 90% btw-norm zal er een btw-vervangende opslag worden berekend.
ZEKERHEIDSSTELLING
Doorlopende bankgarantie of waarborgsom ter grootte van 3 maanden huur inclusief eventuele servicekosten en inclusief btw.
INDEXERING
Jaarlijks, voor het eerst één jaar na huuringangsdatum, op basis van de wijziging van het maandprijsindexcijfer volgens de consumentenprijsindex (CPI), reeks CPI - Alle huishoudens (2015=100), gepubliceerd door het Centraal Bureau voor de Statistiek (CBS). De huurprijs zal nimmer minder bedragen dan de huurprijs van het voorafgaande jaar.
BEREIKBAARHEID
De kantoorruimte is zeer goed bereikbaar middels de Diamantstraat. Op slechts 2 rijminuten is de snelweg (A35) te bereiken. De mogelijkheid bestaat om in overleg met de eigenaar signing aan te brengen, welke goed zichtbaar zal zijn vanuit de drukke Haakbergerstraat.
OMGEVINGSFACTOREN
Het object is gelegen op bedrijventerrein Twentekanaal Zuid, waar verschillende bedrijven zijn gevestigd, zoals Makro, Prescan, Powerspex, Ultrasun International en Ten Brinke.
AANVAARDING
Aanvaarding in overleg.
VOORBEHOUD
Definitieve goedkeuring opdrachtgever en/of verhuurder.
Kenmerken
Overdracht
- Huurprijs
- € 35.500 per jaar
- Servicekosten
- Geen servicekosten bekend
- Aangeboden sinds
-
- Status
- Beschikbaar
- Aanvaarding
- In overleg
Bouw
- Hoofdfunctie
- Kantoor
- Soort bouw
- Bestaande bouw
- Bouwjaar
- 1995
Oppervlakten
- Oppervlakte
- 280 m²
Indeling
- Aantal bouwlagen
- 1 bouwlaag
- Voorzieningen
- Airconditioning, systeemplafond, toilet, pantry en verwarming
Energie
- Energielabel
- Niet beschikbaar
Foto's