De Nieuwe Vaart 32 1401 GR Bussum
- Nieuw
€ 98 /m²/jaar
Omschrijving
Op bedrijventerrein De Nieuwe Vaart zijn variabele kantoorruimtes vanaf 16 m² te huur op de 1ste verdieping van het kantoorgebouw BLUE CORNER.
Het pand is goed bereikbaar vanaf de snelweg A1 en is gelegen op loopafstand van het NS-station Naarden-Bussum, in de nabijheid van diverse restaurants, winkels etc.
Opleveringsniveau:
De kantoorkamers zijn afsluitbaar en worden opgeleverd in goede staat, inclusief o.a. cv, airconditioning, te openen ramen, systeemplafond met verlichting, kabelgoten en vloerbedekking. De mogelijkheid bestaat om het aanwezige meubilair om niet te gebruiken, geheel onverplicht.
Naast gebruik van de eigen kantoorruimte wordt een aandeel in het totaal verhuurbaar vloeroppervlak gehuurd. Hierdoor kan gezamenlijk gebruik worden gemaakt van twee grote vergaderzalen inclusief aanwezige projectieschermen en whiteboards. Er is een grote ontvangstruimte op de begane grond en tevens is daar een keuken/kantine. Op de verdieping is ook nog een pantry en een ruimte waar je kan zitten voor een kopje koffie, een broodje of gewoon even tussendoor.
Indeling:
De volgende zonnige kantoorkamers zijn beschikbaar op de 1ste verdieping:
kamer K2 voor 4-5 werkplekken circa 34 m²,
kamer K4 voor 1-2 werkplekken circa 16 m²,
kamer K8 voor 6-7 werkplekken circa 48 m² en
kamer K9 voor 6-7 werkplekken circa 48 m².
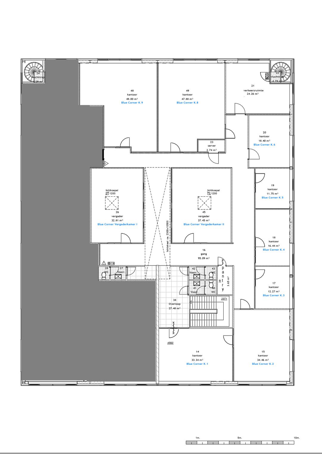
Voor de ligging van de desbetreffende kamers, verwijzen wij u naar de plattegrond.
Rondom het pand is voldoende gratis parkeergelegenheid. Zowel op eigen terrein als op het bedrijventerrein.
Huurprijs en servicekosten:
In tegenstelling tot een voorschotbedrag, betreft het hier een vaste all-in huurprijs, zodat u altijd weet waar u aan toe bent. In deze kosten is het gebruik van WIFI inbegrepen, alsmede de verbruikskosten van energie en het gebruik van voornoemde ruimten.
De totale all-in huurprijs excl. BTW bedraagt per ruimte:
kantoor K2 totaal circa 84 m² € 861,00 per maand,
kantoor K4 totaal circa 40 m² € 410,00 per maand,
kantoor K8 totaal circa 117 m² € 1.199,25 per maand en
kantoor K9 totaal circa 117 m² € 1.199,25 per maand.
Aanvaarding:
In overleg. Per direct is mogelijk.?
Het pand is goed bereikbaar vanaf de snelweg A1 en is gelegen op loopafstand van het NS-station Naarden-Bussum, in de nabijheid van diverse restaurants, winkels etc.
Opleveringsniveau:
De kantoorkamers zijn afsluitbaar en worden opgeleverd in goede staat, inclusief o.a. cv, airconditioning, te openen ramen, systeemplafond met verlichting, kabelgoten en vloerbedekking. De mogelijkheid bestaat om het aanwezige meubilair om niet te gebruiken, geheel onverplicht.
Naast gebruik van de eigen kantoorruimte wordt een aandeel in het totaal verhuurbaar vloeroppervlak gehuurd. Hierdoor kan gezamenlijk gebruik worden gemaakt van twee grote vergaderzalen inclusief aanwezige projectieschermen en whiteboards. Er is een grote ontvangstruimte op de begane grond en tevens is daar een keuken/kantine. Op de verdieping is ook nog een pantry en een ruimte waar je kan zitten voor een kopje koffie, een broodje of gewoon even tussendoor.
Indeling:
De volgende zonnige kantoorkamers zijn beschikbaar op de 1ste verdieping:
kamer K2 voor 4-5 werkplekken circa 34 m²,
kamer K4 voor 1-2 werkplekken circa 16 m²,
kamer K8 voor 6-7 werkplekken circa 48 m² en
kamer K9 voor 6-7 werkplekken circa 48 m².
Voor de ligging van de desbetreffende kamers, verwijzen wij u naar de plattegrond.
Rondom het pand is voldoende gratis parkeergelegenheid. Zowel op eigen terrein als op het bedrijventerrein.
Huurprijs en servicekosten:
In tegenstelling tot een voorschotbedrag, betreft het hier een vaste all-in huurprijs, zodat u altijd weet waar u aan toe bent. In deze kosten is het gebruik van WIFI inbegrepen, alsmede de verbruikskosten van energie en het gebruik van voornoemde ruimten.
De totale all-in huurprijs excl. BTW bedraagt per ruimte:
kantoor K2 totaal circa 84 m² € 861,00 per maand,
kantoor K4 totaal circa 40 m² € 410,00 per maand,
kantoor K8 totaal circa 117 m² € 1.199,25 per maand en
kantoor K9 totaal circa 117 m² € 1.199,25 per maand.
Aanvaarding:
In overleg. Per direct is mogelijk.?
Kenmerken
Overdracht
- Huurprijs
- € 98 per vierkante meter per jaar
- Servicekosten
- € 25 per vierkante meter per jaar (21% BTW van toepassing)
- Aangeboden sinds
-
- Status
- Beschikbaar
- Aanvaarding
- In overleg
Bouw
- Hoofdfunctie
- Kantoor
- Soort bouw
- Bestaande bouw
- Bouwjaar
- 1991
Oppervlakten
- Oppervlakte
- 358 m² (in units vanaf 16 m²)
- Perceel
- 1.414 m²
Indeling
- Aantal bouwlagen
- 1 bouwlaag
- Voorzieningen
- Airconditioning, inbouwarmaturen, te openen ramen, kabelgoten, systeemplafond, toilet, pantry, verwarming en kamerindeling
Energie
- Energielabel
- A
Omgeving
- Ligging
- Bedrijventerrein
- Bereikbaarheid
- Bushalte op 500 m tot 1000 m, busknooppunt op 1000 m tot 1500 m, NS Intercitystation op 1000 m tot 1500 m en snelwegafrit op 1500 m tot 2000 m
Parkeergelegenheid
- Parkeerplaatsen
- 4 niet-overdekte parkeerplaatsen
Makelaar
Foto's