Hoogte Kadijk 143-145 1018 BH Amsterdam
€ 5.950.000 k.k.
Omschrijving
Scheepsbouw vindt al sinds de 16e eeuw plaats in de Oostelijke Havens van Amsterdam, en het gevoel van maritieme belofte leeft er nog steeds voort. Hoogte Kadijk 143-145 is namelijk gevestigd aan een van de twee hoofdstraten die de Kadijken zijn naam geven: een prestigieus adres vanwaar talloze houten en ijzeren schepen de wereld in zijn gevaren. Het straatgedeelte van Hoogte Kadijk 143-145, opgetrokken uit oranje baksteen en voorzien van veel ramen, werd aan het einde van de 20e eeuw gebouwd op grond die deels afkomstig was van de aangrenzende Koning Willem-scheepswerf, die tot eind 2017 nog in bedrijf was. Hoogte Kadijk 143-145 biedt meer dan 1.350 m² moderne, lichte werkruimte verdeeld over vier verdiepingen, verbonden door een trap en een lift. Dankzij de nabijheid van zowel het Centraal Station als de Piet Heintunnel heeft het gebouw uitstekende vervoersverbindingen en beschikt over zes eigen parkeerplaatsen. De Pelikaanbrug over De Nieuwevaart biedt voetgangers en fietsers een snelle verbinding tussen Hoogte Kadijk en de rest van de Oostelijke Haven. De bredere maritieme wijk telt tal van gerenommeerde restaurants en cafés.
METRAGE
Voor de verhuur komt ca. 1.363 m² v.v.o. beschikbaar, als volgt verdeeld:
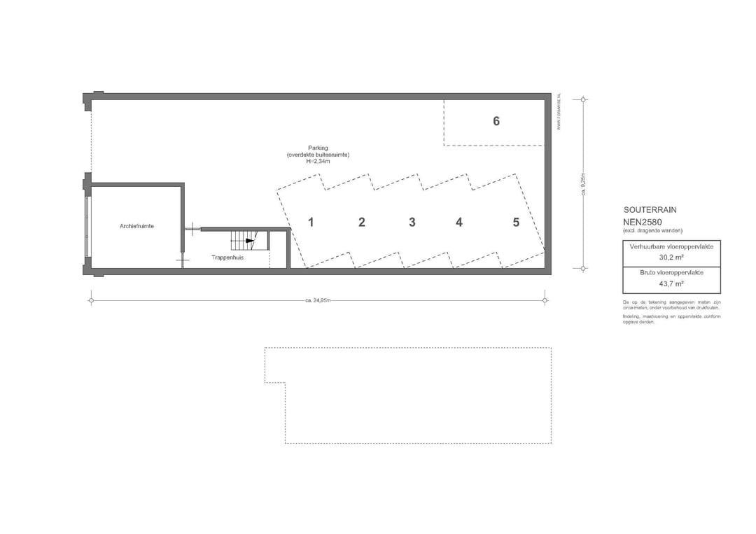
Souterrain ca. 30,2 m² v.v.o.
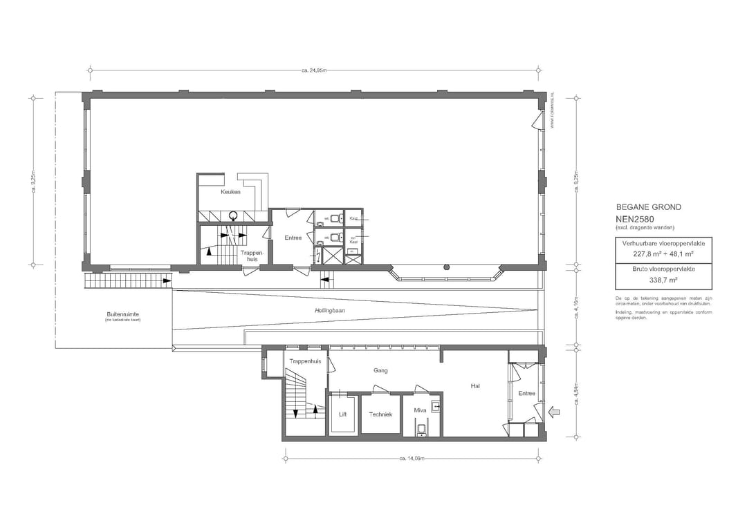
Begane grond ca. 275,9 m² v.v.o.
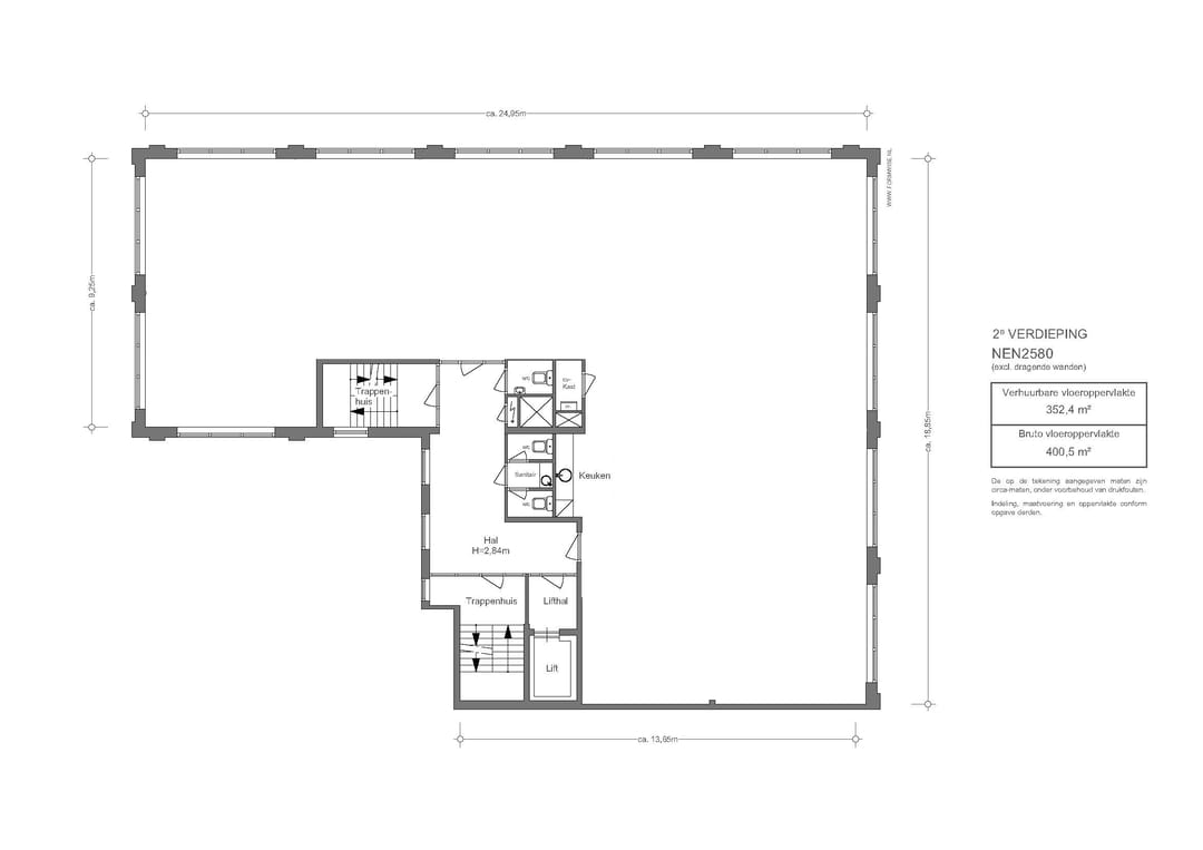
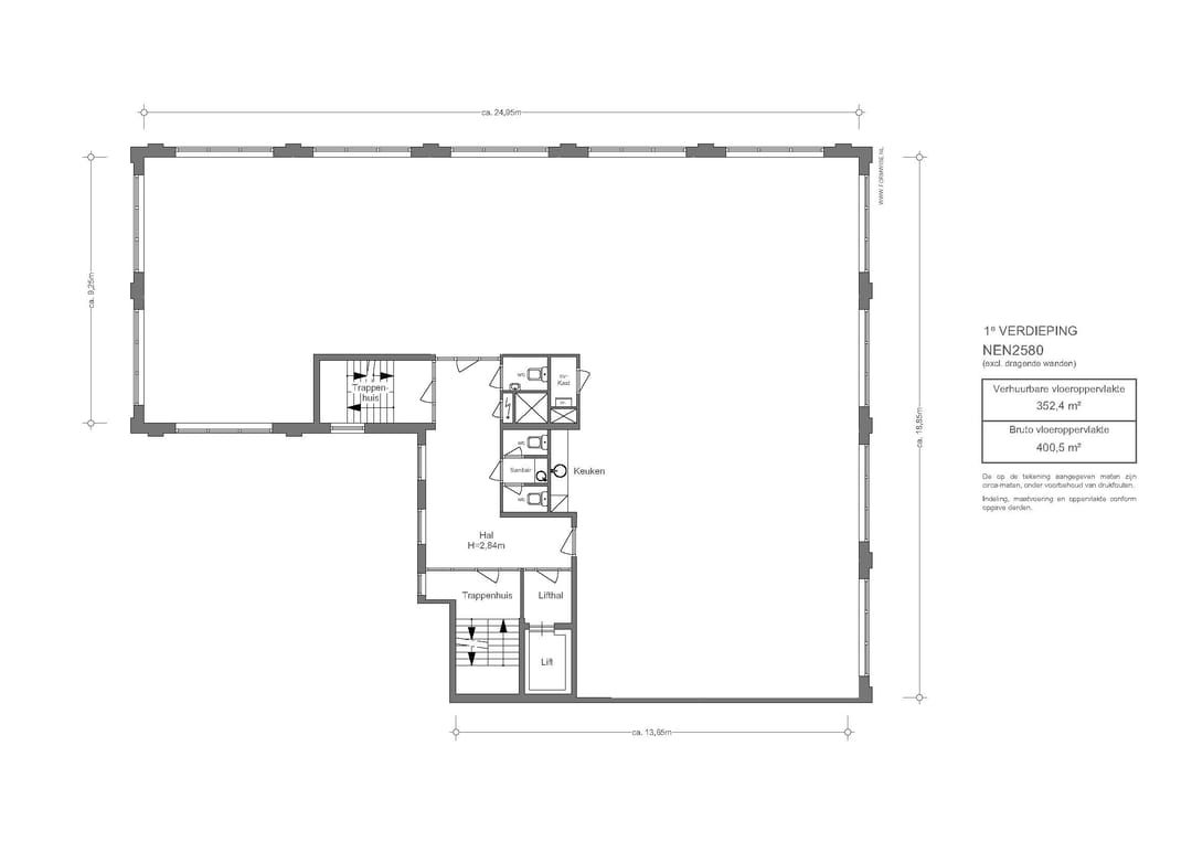
1e verdieping ca. 352,4 m² v.v.o.
2e verdieping ca. 352,4 m² v.v.o.
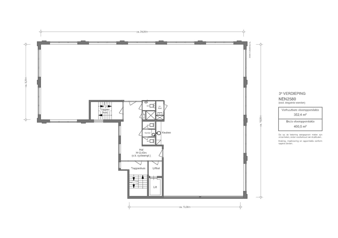
3e verdieping ca. 352,4 m² v.v.o.
*deelverhuur is mogelijk vanaf 2 verdiepingen
PARKEERPLAATSEN
6 parkeerplekken beschikbaar.
HUURTERMIJN
5 jaar.
AANVAARDING
Per direct.
BESTEMMINGSPLAN
Kantoor / Gemengd-2.
EIGENDOMSINFORMATIE
Eigen grond.
DUURZAAMHEID
Label A.
GEBOUW OPPERVLAKTE
1.363 m² v.v.o.
BOUWJAAR
1921.
VRAAGPRIJS
€ 5.950.000 k.k.
ADRES
Hoogte Kadijk 143-145
OPLEVERINGSNIVEAU
Turn-key in huidige staat.
PARKEREN
In parkeergarage: 6 plekken.
KADASTRALE INFORMATIE
Gemeente: Amsterdam
Sectie: O
Nummer: 3682 en 4643
Kadastrale grootte: 440 m² en 50 m²
BEREIKBAARHEID
Hoogte Kadijk 143-145 is gelegen in de karakteristieke Kadijkenbuurt in Amsterdam-Oost en is uitstekend bereikbaar. De locatie profiteert van de nabijheid van Amsterdam Centraal Station en de Piet Heintunnel, waardoor zowel het stadscentrum als de ring A10 snel te bereiken zijn. Openbaar vervoer is ruimschoots aanwezig: tramhalte “Hoogte Kadijk” met tramlijn 7 ligt op korte loopafstand en biedt een directe verbinding met verschillende delen van de stad. Daarnaast zijn er in de directe omgeving meerdere mogelijkheden voor openbaar parkeren, wat de bereikbaarheid per auto vergemakkelijkt. De centrale ligging, gecombineerd met goede OV-verbindingen en uitvalswegen, maakt Hoogte Kadijk 143-145 een zeer toegankelijke locatie.
METRAGE
Voor de verhuur komt ca. 1.363 m² v.v.o. beschikbaar, als volgt verdeeld:
Souterrain ca. 30,2 m² v.v.o.
Begane grond ca. 275,9 m² v.v.o.
1e verdieping ca. 352,4 m² v.v.o.
2e verdieping ca. 352,4 m² v.v.o.
3e verdieping ca. 352,4 m² v.v.o.
*deelverhuur is mogelijk vanaf 2 verdiepingen
PARKEERPLAATSEN
6 parkeerplekken beschikbaar.
HUURTERMIJN
5 jaar.
AANVAARDING
Per direct.
BESTEMMINGSPLAN
Kantoor / Gemengd-2.
EIGENDOMSINFORMATIE
Eigen grond.
DUURZAAMHEID
Label A.
GEBOUW OPPERVLAKTE
1.363 m² v.v.o.
BOUWJAAR
1921.
VRAAGPRIJS
€ 5.950.000 k.k.
ADRES
Hoogte Kadijk 143-145
OPLEVERINGSNIVEAU
Turn-key in huidige staat.
PARKEREN
In parkeergarage: 6 plekken.
KADASTRALE INFORMATIE
Gemeente: Amsterdam
Sectie: O
Nummer: 3682 en 4643
Kadastrale grootte: 440 m² en 50 m²
BEREIKBAARHEID
Hoogte Kadijk 143-145 is gelegen in de karakteristieke Kadijkenbuurt in Amsterdam-Oost en is uitstekend bereikbaar. De locatie profiteert van de nabijheid van Amsterdam Centraal Station en de Piet Heintunnel, waardoor zowel het stadscentrum als de ring A10 snel te bereiken zijn. Openbaar vervoer is ruimschoots aanwezig: tramhalte “Hoogte Kadijk” met tramlijn 7 ligt op korte loopafstand en biedt een directe verbinding met verschillende delen van de stad. Daarnaast zijn er in de directe omgeving meerdere mogelijkheden voor openbaar parkeren, wat de bereikbaarheid per auto vergemakkelijkt. De centrale ligging, gecombineerd met goede OV-verbindingen en uitvalswegen, maakt Hoogte Kadijk 143-145 een zeer toegankelijke locatie.
Kenmerken
Overdracht
- Vraagprijs
- € 5.950.000 kosten koper
- Servicekosten
- Geen servicekosten bekend
- Aangeboden sinds
-
- Status
- Beschikbaar
- Aanvaarding
- In overleg
Bouw
- Hoofdfunctie
- Kantoor
- Soort bouw
- Bestaande bouw
- Bouwjaar
- 1921
Oppervlakten
- Oppervlakte
- 1.363 m² (in units vanaf 275 m²)
- Perceel
- 1.363 m²
Indeling
- Aantal bouwlagen
- 4 bouwlagen
Energie
- Energielabel
- Niet beschikbaar
Makelaar
Foto's