Keizersgracht 522-H 1017 EK Amsterdam
- Nieuw
€ 55.000 /jr
Omschrijving
Aan een van de meest prestigieuze grachten van Amsterdam bevindt zich dit representatieve kantoorpand aan Keizersgracht 522.
Het pand combineert de allure van een klassiek Amsterdams grachtenpand met het comfort en de functionaliteit die passen bij hedendaags werken.
INDELING
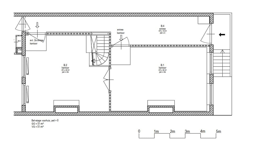
De beletage is te bereiken via de algemene hal. Bij binnenkomst zijn er twee (afsluitbare ruimtes) van de voor naar achterzijde.
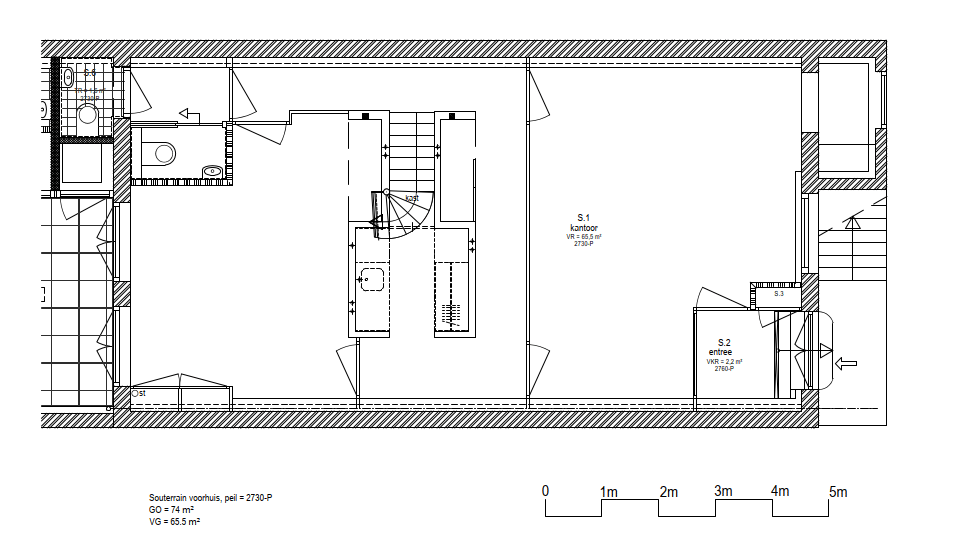
Door middel van een interne trap is het souterrain bereikbaar waar zich de pantry en toiletten bevinden. Het souterrain heeft ook zijn eigen voordeur.
De kantoorruimte is licht en efficiënt ingedeeld, met hoge plafonds, grote raampartijen en karakteristieke details die zorgen voor een professionele en inspirerende werkomgeving.
Dankzij de flexibele indelingsmogelijkheden is het pand geschikt voor uiteenlopende gebruikers, van creatieve bureaus tot zakelijke dienstverleners.
LIGGING
De ligging is uitstekend: midden in het centrum, met een breed aanbod aan horeca, winkels en culturele voorzieningen op loopafstand. Bovendien is de bereikbaarheid optimaal, zowel met het openbaar vervoer als per fiets of auto.
Kenmerken:
- Representatief kantoorpand op toplocatie
- Karakteristieke uitstraling met moderne faciliteiten
- Veel daglicht en flexibele indeling
- Centrale ligging aan de gracht, nabij alle voorzieningen
OPPERVLAKTE
Bel-etage: 51 m²
Souterrain: 74 m²
Totaal: 125 m²
Niet conform NEN 2580
BESTEMMING
Volgens het vigerende bestemmingsplan Oud West 2018. De ruimte is daarmee onder meer geschikt om te worden gebruikt ten behoeve van:
- Kantoor;
- Kantoren met baliefunctie;
- Galeries
- Voorzieningen ten behoeve van consumentverzorgende dienstverlening
OPLEVERING
Per 1 februari 2026
OPLEVERINGNIVEAU
Het object wordt casco opgeleverd.
HUURBETALING
Per maand vooruit.
HUURCONDITIES
Huurprijzen zijn exclusief servicekosten en te vermeerderen met BTW. De huurprijs zal jaarlijks worden geïndexeerd op basis van het CBS consumenten prijsindex (CPI) Alle Huishoudens (2015 = 100).
OPZEGTERMIJN
Opzegtermijn van één jaar.
HUUROVEREENKOMST
Huurovereenkomst op basis van het standaardmodel van de Raad voor Onroerende Zaken (ROZ), zoals gehanteerd door de NVM in onroerend goed, aangevuld met specifieke verhuurvoorwaarden.
OMZETBELASTING
De huur wordt verhoogd met omzetbelasting naar het geldend tarief. Voor huurders die deze omzetbelasting niet kunnen verrekenen kan de omzetbelasting achterwege blijven. In dat geval wordt een opslag op de huurprijs berekend.
GARANTSTELLING
Een minimale bankgarantie/waarborgsom met een grootte van een drietal maandverplichtingen, inclusief btw en servicekosten. De daadwerkelijke omvang is o.a. afhankelijk van de uitkomst van een kredietwaardigheid onderzoek.
HUURPRIJSINDEXERING
Jaarlijks wordt de laatst geldende huurprijs verhoogd op basis van het maandprijsindexcijfer volgens de consumentenprijsindex (CPI) reeks alle huishoudens (2015=100), gepubliceerd door het Centraal Bureau voor de Statistiek (CBS).
UITDRUKKELIJKE VOORBEHOUDEN TOTSTANDKOMING OVEREENKOMST
Alle mondelinge en schriftelijke correspondentie is geheel vrijblijvend. Een overeenkomst inzake het aangeboden object komt pas tot stand nadat een daartoe strekkende overeenkomst door beide partijen is geparafeerd en ondertekend. Voorafgaand hieraan is nimmer sprake van enige overeenstemming waaraan rechten en/of plichten zouden kunnen worden ontleend. Daarnaast geldt te allen tijde het voorbehoud van instemming van de eigena(a)r(en) van het object voor de totstandkoming van een overeenkomst.
Het pand combineert de allure van een klassiek Amsterdams grachtenpand met het comfort en de functionaliteit die passen bij hedendaags werken.
INDELING
De beletage is te bereiken via de algemene hal. Bij binnenkomst zijn er twee (afsluitbare ruimtes) van de voor naar achterzijde.
Door middel van een interne trap is het souterrain bereikbaar waar zich de pantry en toiletten bevinden. Het souterrain heeft ook zijn eigen voordeur.
De kantoorruimte is licht en efficiënt ingedeeld, met hoge plafonds, grote raampartijen en karakteristieke details die zorgen voor een professionele en inspirerende werkomgeving.
Dankzij de flexibele indelingsmogelijkheden is het pand geschikt voor uiteenlopende gebruikers, van creatieve bureaus tot zakelijke dienstverleners.
LIGGING
De ligging is uitstekend: midden in het centrum, met een breed aanbod aan horeca, winkels en culturele voorzieningen op loopafstand. Bovendien is de bereikbaarheid optimaal, zowel met het openbaar vervoer als per fiets of auto.
Kenmerken:
- Representatief kantoorpand op toplocatie
- Karakteristieke uitstraling met moderne faciliteiten
- Veel daglicht en flexibele indeling
- Centrale ligging aan de gracht, nabij alle voorzieningen
OPPERVLAKTE
Bel-etage: 51 m²
Souterrain: 74 m²
Totaal: 125 m²
Niet conform NEN 2580
BESTEMMING
Volgens het vigerende bestemmingsplan Oud West 2018. De ruimte is daarmee onder meer geschikt om te worden gebruikt ten behoeve van:
- Kantoor;
- Kantoren met baliefunctie;
- Galeries
- Voorzieningen ten behoeve van consumentverzorgende dienstverlening
OPLEVERING
Per 1 februari 2026
OPLEVERINGNIVEAU
Het object wordt casco opgeleverd.
HUURBETALING
Per maand vooruit.
HUURCONDITIES
Huurprijzen zijn exclusief servicekosten en te vermeerderen met BTW. De huurprijs zal jaarlijks worden geïndexeerd op basis van het CBS consumenten prijsindex (CPI) Alle Huishoudens (2015 = 100).
OPZEGTERMIJN
Opzegtermijn van één jaar.
HUUROVEREENKOMST
Huurovereenkomst op basis van het standaardmodel van de Raad voor Onroerende Zaken (ROZ), zoals gehanteerd door de NVM in onroerend goed, aangevuld met specifieke verhuurvoorwaarden.
OMZETBELASTING
De huur wordt verhoogd met omzetbelasting naar het geldend tarief. Voor huurders die deze omzetbelasting niet kunnen verrekenen kan de omzetbelasting achterwege blijven. In dat geval wordt een opslag op de huurprijs berekend.
GARANTSTELLING
Een minimale bankgarantie/waarborgsom met een grootte van een drietal maandverplichtingen, inclusief btw en servicekosten. De daadwerkelijke omvang is o.a. afhankelijk van de uitkomst van een kredietwaardigheid onderzoek.
HUURPRIJSINDEXERING
Jaarlijks wordt de laatst geldende huurprijs verhoogd op basis van het maandprijsindexcijfer volgens de consumentenprijsindex (CPI) reeks alle huishoudens (2015=100), gepubliceerd door het Centraal Bureau voor de Statistiek (CBS).
UITDRUKKELIJKE VOORBEHOUDEN TOTSTANDKOMING OVEREENKOMST
Alle mondelinge en schriftelijke correspondentie is geheel vrijblijvend. Een overeenkomst inzake het aangeboden object komt pas tot stand nadat een daartoe strekkende overeenkomst door beide partijen is geparafeerd en ondertekend. Voorafgaand hieraan is nimmer sprake van enige overeenstemming waaraan rechten en/of plichten zouden kunnen worden ontleend. Daarnaast geldt te allen tijde het voorbehoud van instemming van de eigena(a)r(en) van het object voor de totstandkoming van een overeenkomst.
Kenmerken
Overdracht
- Huurprijs
- € 55.000 per jaar
- Servicekosten
- Geen servicekosten bekend
- Aangeboden sinds
-
- Status
- Beschikbaar
- Aanvaarding
- Per direct beschikbaar
Bouw
- Hoofdfunctie
- Kantoor
- Soort bouw
- Bestaande bouw
- Bouwjaar
- 1790
Oppervlakten
- Oppervlakte
- 125 m²
Indeling
- Aantal bouwlagen
- 2 bouwlagen
- Voorzieningen
- Te openen ramen, kabelgoten, toilet, pantry, verwarming en kamerindeling
Energie
- Energielabel
- Niet beschikbaar
Omgeving
- Ligging
- Stadscentrum/dorpskern
NVM makelaar
Foto's