1.16 Hertenweide 3812 PX Amersfoort
Huurprijs op aanvraag
Onderdeel van
ABOG Business Centre, Amersfoort
- Iedere donderdag van 16:00 tot 17:00
Omschrijving
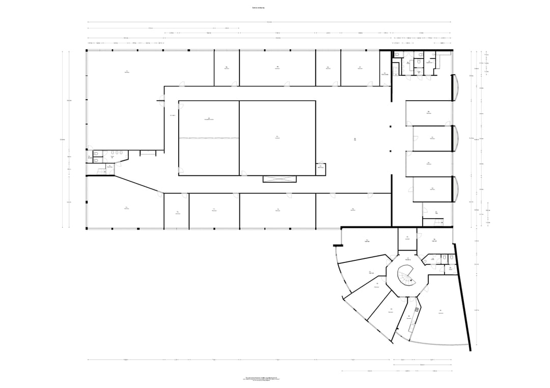
V 1.16 – Hertenweide | 100–232 m² kantoorruimte op de eerste verdieping
Ruimte V 1.16 – Hertenweide is een royale kantoorruimte van 100 tot 232 m², gelegen op de eerste verdieping van het ABOG Business Centre in Amersfoort. Deze verdieping kan in zijn geheel worden gehuurd of worden opgedeeld in meerdere units. De ruimte biedt veel lichtinval, een prettige indeling en volop mogelijkheden voor maatwerk.
Of het nu gaat om een open kantoorvloer, een combinatie van werk- en vergaderruimtes of een creatieve indeling met loungegedeelte – de Hertenweide biedt de vrijheid om het kantoor volledig af te stemmen op de identiteit van jouw organisatie.
Dankzij de ligging aan de voorzijde van het gebouw, dicht bij pantry en vergaderruimtes, is het een praktische en representatieve plek voor ambitieuze bedrijven die willen groeien.
Leuk om te weten
Binnen kijk je niet direct op echt groen, maar door de fraaie wandbekleding met natuurfoto’s wordt het buitengevoel tot in de werkomgeving doorgetrokken.
Duurzaamheid zit bij ons in de basis: zonnepanelen, laadpalen en een gasloze verwarming dragen allemaal bij aan een moderne, groene werkplek. Hier vind je de ideale balans tussen inspiratie, professionaliteit én community.
Langs onze paden liggen diverse lunchplekken en gezellige koffie-adressen, perfect voor een informele meeting of een ontspannen lunchpauze. Zo combineer je zakelijkheid met een stuk levendigheid buiten de deur.
BESCHIKBAARHEID
Kantoorruimte van 100–232 m², gelegen op de eerste verdieping. Kan in overleg worden opgedeeld of volledig als verdieping worden gehuurd.
HUURPRIJS
€ €1180 - €2995 per maand te vermeerderen met BTW
HUURPRIJSAANPASSING
Jaarlijks op basis van de Consumentenprijsindex, reeks CPI Alle Huishoudens (2015 =100) zoals gepubliceerd door het CBS.
HUURPERIODE & EXTRA KOSTEN
Huren is mogelijk vanaf 1 maand, de huurperiode wordt in overleg vastgesteld met voorkeur voor langdurige verhuur. Bij kortere (flexibele) huur geldt een hogere huurprijs.
Extra kosten
• Servicekosten: € 3,28 per m² per maand
• Nutsvoorzieningen (gas, water, elektra): € 3,13 per m² per maand
AANVAARDING
Per direct
METRAGE
De genoemde metrages zijn met zorg berekend. Het verschil tussen de opgegeven en de werkelijke grootte verleent aan geen der partijen enig recht.
HUURTERMIJNEN
Huren kan al vanaf 1 maand.
KORTING
Hoe langer de huurperiode, hoe voordeliger de huurprijs.
PARKEREN
Het object heeft circa 80 parkeerplaatsen op eigen terrein. Er zijn laadpalen aanwezig, waar tegen voordelig tarief kan worden geladen.
WAARBORGSOM
Ter meerdere zekerheid van de nakoming van de verplichtingen uit de huurovereenkomst dient een bankgarantie te worden verstrekt gelijk aan 2 (twee) maanden huurprijs.
LOCATIE
Bedrijventerrein Isselt ligt in het westen van Amersfoort en is strategisch gelegen tussen de A1, A28 en de binnenstad. Het gebied heeft een dynamische mix van moderne bedrijven, creatieve ondernemers en kleinschalige productie. De nabijheid van het Eemplein en de rivier de Eem maakt deze locatie aantrekkelijk voor uiteenlopende organisaties.
BEREIKBAARHEID
De locatie is uitstekend bereikbaar via de snelwegen A1 en A28. Ook met het openbaar vervoer is het pand goed bereikbaar: buslijn 1 richting Soesterkwartier stopt bij halte Argonweg, op loopafstand van het gebouw.
OPLEVERINGSNIVEAU EN FACILITEITEN
De kantoorruimte is recent geheel geschilderd en voorzien van nieuwe vloerbedekking. U kunt kiezen tussen een kant-en-klare kantoorruimte of een kantoor zonder meubilair. Daarnaast kunnen wij in overleg het gehuurde aanpassen naar uw eigen wensen.
Faciliteiten
• Koffievoorziening voor dagelijks gebruik
• Toiletgroepen op elke verdieping
• Kantine/keuken met pantryvoorzieningen per verdieping
• Spreek- en vergaderruimtes op reservering beschikbaar
• Schoonmaak van kantoorruimte en algemene ruimten
• Systeemplafonds met geïntegreerde verlichting
• Nette wandafwerking en frisse uitstraling
• Bestaande vloerafwerking in moderne stijl
• Wifi en bekabeld internet, met optie voor een afgeschermde netwerkverbinding
• Individueel regelbare airco-units voor optimaal comfort
• Ruime parkeergelegenheid op eigen, bewaakt terrein met 16 laadpalen
• 24/7 toegankelijke entree met beveiliging
• Intercomsysteem met deurbel bij de hoofdentree
Verhuurder:
ABOG Business Centre
Sven Bosman
085 – 007 37 00
of
Makelaardij:
Majoor Makelaars Soest
Edwin Majoor
035 – 603 62 82 | 06 – 1187 0865
Ruimte V 1.16 – Hertenweide is een royale kantoorruimte van 100 tot 232 m², gelegen op de eerste verdieping van het ABOG Business Centre in Amersfoort. Deze verdieping kan in zijn geheel worden gehuurd of worden opgedeeld in meerdere units. De ruimte biedt veel lichtinval, een prettige indeling en volop mogelijkheden voor maatwerk.
Of het nu gaat om een open kantoorvloer, een combinatie van werk- en vergaderruimtes of een creatieve indeling met loungegedeelte – de Hertenweide biedt de vrijheid om het kantoor volledig af te stemmen op de identiteit van jouw organisatie.
Dankzij de ligging aan de voorzijde van het gebouw, dicht bij pantry en vergaderruimtes, is het een praktische en representatieve plek voor ambitieuze bedrijven die willen groeien.
Leuk om te weten
Binnen kijk je niet direct op echt groen, maar door de fraaie wandbekleding met natuurfoto’s wordt het buitengevoel tot in de werkomgeving doorgetrokken.
Duurzaamheid zit bij ons in de basis: zonnepanelen, laadpalen en een gasloze verwarming dragen allemaal bij aan een moderne, groene werkplek. Hier vind je de ideale balans tussen inspiratie, professionaliteit én community.
Langs onze paden liggen diverse lunchplekken en gezellige koffie-adressen, perfect voor een informele meeting of een ontspannen lunchpauze. Zo combineer je zakelijkheid met een stuk levendigheid buiten de deur.
BESCHIKBAARHEID
Kantoorruimte van 100–232 m², gelegen op de eerste verdieping. Kan in overleg worden opgedeeld of volledig als verdieping worden gehuurd.
HUURPRIJS
€ €1180 - €2995 per maand te vermeerderen met BTW
HUURPRIJSAANPASSING
Jaarlijks op basis van de Consumentenprijsindex, reeks CPI Alle Huishoudens (2015 =100) zoals gepubliceerd door het CBS.
HUURPERIODE & EXTRA KOSTEN
Huren is mogelijk vanaf 1 maand, de huurperiode wordt in overleg vastgesteld met voorkeur voor langdurige verhuur. Bij kortere (flexibele) huur geldt een hogere huurprijs.
Extra kosten
• Servicekosten: € 3,28 per m² per maand
• Nutsvoorzieningen (gas, water, elektra): € 3,13 per m² per maand
AANVAARDING
Per direct
METRAGE
De genoemde metrages zijn met zorg berekend. Het verschil tussen de opgegeven en de werkelijke grootte verleent aan geen der partijen enig recht.
HUURTERMIJNEN
Huren kan al vanaf 1 maand.
KORTING
Hoe langer de huurperiode, hoe voordeliger de huurprijs.
PARKEREN
Het object heeft circa 80 parkeerplaatsen op eigen terrein. Er zijn laadpalen aanwezig, waar tegen voordelig tarief kan worden geladen.
WAARBORGSOM
Ter meerdere zekerheid van de nakoming van de verplichtingen uit de huurovereenkomst dient een bankgarantie te worden verstrekt gelijk aan 2 (twee) maanden huurprijs.
LOCATIE
Bedrijventerrein Isselt ligt in het westen van Amersfoort en is strategisch gelegen tussen de A1, A28 en de binnenstad. Het gebied heeft een dynamische mix van moderne bedrijven, creatieve ondernemers en kleinschalige productie. De nabijheid van het Eemplein en de rivier de Eem maakt deze locatie aantrekkelijk voor uiteenlopende organisaties.
BEREIKBAARHEID
De locatie is uitstekend bereikbaar via de snelwegen A1 en A28. Ook met het openbaar vervoer is het pand goed bereikbaar: buslijn 1 richting Soesterkwartier stopt bij halte Argonweg, op loopafstand van het gebouw.
OPLEVERINGSNIVEAU EN FACILITEITEN
De kantoorruimte is recent geheel geschilderd en voorzien van nieuwe vloerbedekking. U kunt kiezen tussen een kant-en-klare kantoorruimte of een kantoor zonder meubilair. Daarnaast kunnen wij in overleg het gehuurde aanpassen naar uw eigen wensen.
Faciliteiten
• Koffievoorziening voor dagelijks gebruik
• Toiletgroepen op elke verdieping
• Kantine/keuken met pantryvoorzieningen per verdieping
• Spreek- en vergaderruimtes op reservering beschikbaar
• Schoonmaak van kantoorruimte en algemene ruimten
• Systeemplafonds met geïntegreerde verlichting
• Nette wandafwerking en frisse uitstraling
• Bestaande vloerafwerking in moderne stijl
• Wifi en bekabeld internet, met optie voor een afgeschermde netwerkverbinding
• Individueel regelbare airco-units voor optimaal comfort
• Ruime parkeergelegenheid op eigen, bewaakt terrein met 16 laadpalen
• 24/7 toegankelijke entree met beveiliging
• Intercomsysteem met deurbel bij de hoofdentree
Verhuurder:
ABOG Business Centre
Sven Bosman
085 – 007 37 00
of
Makelaardij:
Majoor Makelaars Soest
Edwin Majoor
035 – 603 62 82 | 06 – 1187 0865
Kenmerken
Overdracht
- Huurprijs
- Huurprijs op aanvraag
- Servicekosten
- € 3 per vierkante meter per jaar
- Aangeboden sinds
-
- Status
- Beschikbaar
- Aanvaarding
- Per direct beschikbaar
Bouw
- Hoofdfunctie
- Kantoorruimte
- Soort bouw
- Bestaande bouw
- Bouwjaar
- 1969
Oppervlakten
- Oppervlakte
- 232 m² (in units vanaf 100 m²)
Indeling
- Aantal bouwlagen
- 1 bouwlaag
- Voorzieningen
- Topkoeling, systeemplafond, toilet en verwarming
Energie
- Energielabel
- A+++
Omgeving
- Ligging
- Bedrijventerrein
- Bereikbaarheid
- Bushalte op minder dan 500 m, NS Intercitystation op 2000 m tot 3000 m en snelwegafrit op 1500 m tot 2000 m
Foto's
Plattegrond
Begane grond
Eerste verdieping