Loodstraat 14 2718 RW Zoetermeer
€ 45.000 /jr
Omschrijving
Algemeen: De gerenoveerde bedrijfspanden zijn gelegen op het bedrijvenpark "De Lansing" aan de Loodstraat en maken onderdeel uit van het bedrijventerrein 'Lansinghage' te Zoetermeer. Het bedrijventerrein kenmerkt zich door de diversiteit van de aanwezige bedrijven en zijn goede bereikbaarheid.
Bereikbaarheid: Het complex is vanaf de snelweg A-12 (Den Haag - Utrecht v.v.) eenvoudig bereikbaar. Ook met het openbaar vervoer is het terrein goed bereikbaar, diverse bussen stoppen op loopafstand met aansluiting op het NS Station Zoetermeer. Door de realisering van het Station Lansingerland is de bereikbaarheid van de locatie sterk verbeterd. Station Lansingerland is een treinstation op de kruising van de verlengde Oosterheemlijn van RandstadRail en de spoorlijn Gouda - Den Haag op de grens van Bleiswijk en Zoetermeer.
Adres: Loodstraat 14, 2718 RW Zoetermeer.
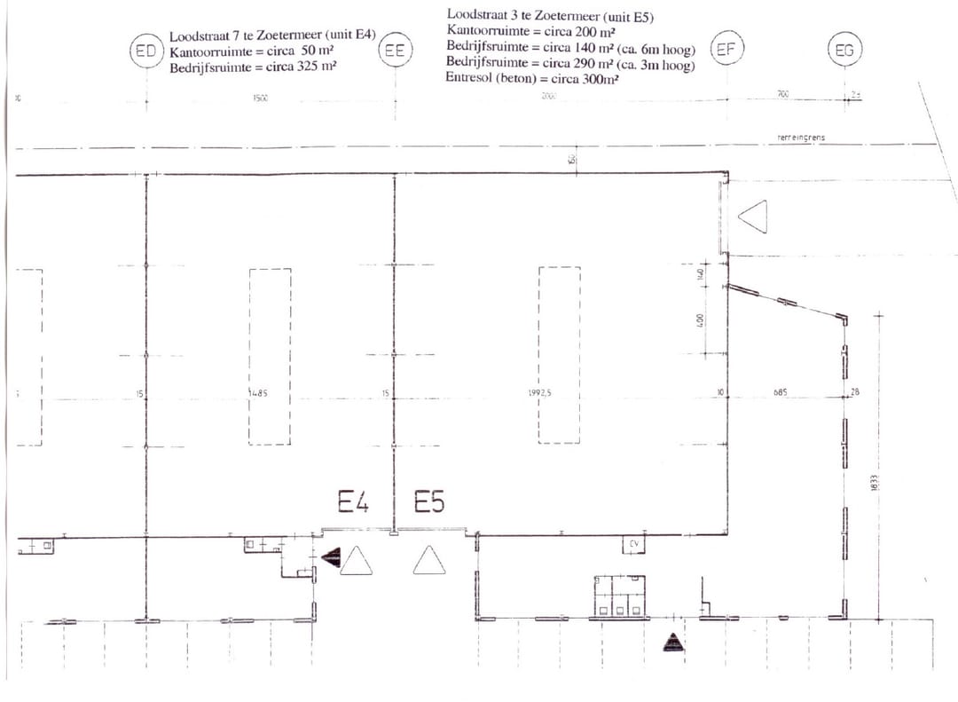
Metrage:
Loodstraat 14 (unit D7)
Circa 325 m² bedrijfsruimte
Circa 200 m² (demontabele) entresol
Circa 100 m² kantoorruimte
4 parkeerplaatsen gelegen op eigen terrein
Bestemming: De voor Bedrijventerrein aangewezen gronden zijn bestemd voor onder andere:
- ter plaatse van de aanduiding 'bedrijf tot en met categorie 4,2', bedrijven tot en met milieucategorie 4,2 van de in de bijlagen bij deze regels opgenomen Lijst van bedrijfsactiviteiten.
Opleveringsniveau:
De bedrijfsruimte wordt opgeleverd in huidige staat dat wil zeggen voorzien van onder andere:
* betonvloer (vloerbelasting ca. 2.000 kg/ m²);
* overheaddeur;
* industriële verlichting;
* lichtkoepels;
* heater;
* vrije hoogte van ca. 6 meter.
De kantoorruimte wordt opgeleverd in huidige staat dat wil zeggen voorzien van onder andere:
* systeemplafonds v.v. verlichtingsarmaturen;
* te openen ramen;
* centrale verwarming middels radiatoren;
* toiletgroep(en).
HUURVOORWAARDEN
Huurprijs: € 45.000,-- per jaar te vermeerderen met de wettelijk verschuldigde omzetbelasting.
Huurtermijn: 5 jaar met de mogelijkheid de huurovereenkomst telkens met 5 jaar te verlengen.
Opzegtermijn: 12 maanden voor expiratie huurovereenkomst per aangetekend schrijven of bij deurwaardersexploot.
Oplevering: In overleg, op korte termijn mogelijk.
Huurprijsaanpassing: Per maand vooruit.
Service- en energiekosten: Jaarlijks, zal per huuringangsdatum, voor het eerst 12 maanden na huuringangsdatum, de huurprijs worden aangepast op basis van de wijziging van het maandprijsindexcijfer volgens de consumentenprijsindex (CPI) reeks alle huishoudens (2015 = 100), gepubliceerd door het Centraal Bureau voor de Statistiek (CBS).
Service- en energiekosten: € 2,50 per m² per jaar als voorschot te voldoen met naverrekening voor de kosten van onder andere:
* Jaarlijkse inspectie en onderhoud verwarmingsinstallatie;
* Jaarlijkse inspectie en onderhoud brandslanghaspel(s);
* Jaarlijkse inspectie en onderhoud overheaddeur;
* Inspectie en controle dakbedekking;
* Periodiek terrein en groenonderhoud;
* Gevelreiniging (driejaarlijks);
* Onderhoud en schoonspuiten straatkolken en riolering;
* Eventueel overige kosten benodigd voor het uitvoeren van het beheer;
* Administratiekosten ad 5% over de hierboven genoemde leveringen en diensten.
Verhuurder zal de te maken kosten doorbelasten aan de diverse huurder(s).
Huurovereenkomst: Standaard huurovereenkomst kantoorruimte en andere bedrijfsruimte in de zin van artikel 7:230a BW, vastgesteld door de Raad van Onroerende Zaken (ROZ) in januari 2015. Van deze huurovereenkomst maken deel uit de algemene bepalingen kantoorruimte en andere bedrijfsruimte in de zin van artikel 7:230a BW, welke op 17 februari 2015 gedeponeerd zijn bij de griffie van de rechtbank Den Haag en aldaar zijn ingeschreven onder nummer 15/21.
Zekerheidsstelling: Bij ondertekening van de huurovereenkomst, zal huurder een bankgarantie stellen ter grootte van drie maanden huurverplichting te vermeerderen met (eventuele) servicekosten en de wettelijk verschuldigde omzetbelasting.
Voorbehoud:
- positief kredietinformatierapport ter beoordeling van verhuurder;
- goedkeuring directie verhuurder.
Bereikbaarheid: Het complex is vanaf de snelweg A-12 (Den Haag - Utrecht v.v.) eenvoudig bereikbaar. Ook met het openbaar vervoer is het terrein goed bereikbaar, diverse bussen stoppen op loopafstand met aansluiting op het NS Station Zoetermeer. Door de realisering van het Station Lansingerland is de bereikbaarheid van de locatie sterk verbeterd. Station Lansingerland is een treinstation op de kruising van de verlengde Oosterheemlijn van RandstadRail en de spoorlijn Gouda - Den Haag op de grens van Bleiswijk en Zoetermeer.
Adres: Loodstraat 14, 2718 RW Zoetermeer.
Metrage:
Loodstraat 14 (unit D7)
Circa 325 m² bedrijfsruimte
Circa 200 m² (demontabele) entresol
Circa 100 m² kantoorruimte
4 parkeerplaatsen gelegen op eigen terrein
Bestemming: De voor Bedrijventerrein aangewezen gronden zijn bestemd voor onder andere:
- ter plaatse van de aanduiding 'bedrijf tot en met categorie 4,2', bedrijven tot en met milieucategorie 4,2 van de in de bijlagen bij deze regels opgenomen Lijst van bedrijfsactiviteiten.
Opleveringsniveau:
De bedrijfsruimte wordt opgeleverd in huidige staat dat wil zeggen voorzien van onder andere:
* betonvloer (vloerbelasting ca. 2.000 kg/ m²);
* overheaddeur;
* industriële verlichting;
* lichtkoepels;
* heater;
* vrije hoogte van ca. 6 meter.
De kantoorruimte wordt opgeleverd in huidige staat dat wil zeggen voorzien van onder andere:
* systeemplafonds v.v. verlichtingsarmaturen;
* te openen ramen;
* centrale verwarming middels radiatoren;
* toiletgroep(en).
HUURVOORWAARDEN
Huurprijs: € 45.000,-- per jaar te vermeerderen met de wettelijk verschuldigde omzetbelasting.
Huurtermijn: 5 jaar met de mogelijkheid de huurovereenkomst telkens met 5 jaar te verlengen.
Opzegtermijn: 12 maanden voor expiratie huurovereenkomst per aangetekend schrijven of bij deurwaardersexploot.
Oplevering: In overleg, op korte termijn mogelijk.
Huurprijsaanpassing: Per maand vooruit.
Service- en energiekosten: Jaarlijks, zal per huuringangsdatum, voor het eerst 12 maanden na huuringangsdatum, de huurprijs worden aangepast op basis van de wijziging van het maandprijsindexcijfer volgens de consumentenprijsindex (CPI) reeks alle huishoudens (2015 = 100), gepubliceerd door het Centraal Bureau voor de Statistiek (CBS).
Service- en energiekosten: € 2,50 per m² per jaar als voorschot te voldoen met naverrekening voor de kosten van onder andere:
* Jaarlijkse inspectie en onderhoud verwarmingsinstallatie;
* Jaarlijkse inspectie en onderhoud brandslanghaspel(s);
* Jaarlijkse inspectie en onderhoud overheaddeur;
* Inspectie en controle dakbedekking;
* Periodiek terrein en groenonderhoud;
* Gevelreiniging (driejaarlijks);
* Onderhoud en schoonspuiten straatkolken en riolering;
* Eventueel overige kosten benodigd voor het uitvoeren van het beheer;
* Administratiekosten ad 5% over de hierboven genoemde leveringen en diensten.
Verhuurder zal de te maken kosten doorbelasten aan de diverse huurder(s).
Huurovereenkomst: Standaard huurovereenkomst kantoorruimte en andere bedrijfsruimte in de zin van artikel 7:230a BW, vastgesteld door de Raad van Onroerende Zaken (ROZ) in januari 2015. Van deze huurovereenkomst maken deel uit de algemene bepalingen kantoorruimte en andere bedrijfsruimte in de zin van artikel 7:230a BW, welke op 17 februari 2015 gedeponeerd zijn bij de griffie van de rechtbank Den Haag en aldaar zijn ingeschreven onder nummer 15/21.
Zekerheidsstelling: Bij ondertekening van de huurovereenkomst, zal huurder een bankgarantie stellen ter grootte van drie maanden huurverplichting te vermeerderen met (eventuele) servicekosten en de wettelijk verschuldigde omzetbelasting.
Voorbehoud:
- positief kredietinformatierapport ter beoordeling van verhuurder;
- goedkeuring directie verhuurder.
Kenmerken
Overdracht
- Huurprijs
- € 45.000 per jaar
- Servicekosten
- € 3 per vierkante meter per jaar (21% BTW van toepassing)
- Aangeboden sinds
-
- Status
- Beschikbaar
- Aanvaarding
- In overleg
Bouw
- Hoofdfunctie
- Bedrijfshal
- Soort bouw
- Bestaande bouw
- Bouwperiode
- 1981-1990
Oppervlakten
- Oppervlakte
- 625 m²
- Bedrijfshal oppervlak
- 525 m²
- Kantoor oppervlak
- 100 m²
- Vrije hoogte
- 6 m
- Draagvermogen
- 2.000 kg/m²
Indeling
- Aantal bouwlagen
- 1 bouwlaag
- Voorzieningen
- Overheaddeuren, betonvloer, heater, toilet, pantry, inbouwarmaturen en te openen ramen
Energie
- Energielabel
- Niet beschikbaar
Omgeving
- Ligging
- Bedrijventerrein
- Bereikbaarheid
- Bushalte op minder dan 500 m, NS Intercitystation op 500 m tot 1000 m en snelwegafrit op 500 m tot 1000 m
Parkeergelegenheid
- Parkeerplaatsen
- 4 niet-overdekte parkeerplaatsen
Foto's