's-Gravendijckseweg 51 2201 CZ Noordwijk (ZH)
€ 165.000 /jr
€ 2.295.000 k.k.
Omschrijving
TE KOOP / TE HUUR
’s-Gravendijckseweg 51 te Noordwijk (2201 CZ)
ALGEMEEN
Aan de ’s Gravendijckseweg 51 te Noordwijk is deze moderne en duurzame bedrijfsruimte gelegen op het actieve en goed bereikbare bedrijventerrein ’s Gravendijck. Het object beschikt op de begane grond over een representatieve entree met showroomruimte, terwijl op de eerste en tweede verdieping net afgewerkte, turn key kantoorruimte is gerealiseerd. Deze indeling zorgt voor een professionele en representatieve uitstraling richting klanten en relaties. Het object heeft een totale vloeroppervlakte van circa 1.355 m² en is omstreeks 2016 gebouwd, waarbij kwaliteit, functionaliteit en duurzaamheid centraal hebben gestaan. Het gebouw beschikt over een energielabel A+ (geldig tot en met 26-11-2035), wat zorgt voor lagere energielasten en een toekomstbestendig karakter.
De bedrijfsruimte is vrij overspannen en onderscheidt zich daarnaast door een indrukwekkende vrije hoogte van maar liefst 12 meter. Hierdoor biedt het object maximale flexibiliteit in gebruik en inrichting en is het uitermate geschikt voor logistieke doeleinden, opslag, productie of andere bedrijfsactiviteiten waarbij veel volume en een onbelemmerde vloeroppervlakte gewenst zijn. Tevens is het object voorzien van een krachtige elektrische aansluiting van 3 x 80 ampère, waardoor het pand ook zeer geschikt is voor energie intensieve bedrijfsprocessen. Daarnaast beschikt het object over voldoende parkeerplaatsen, wat het gebruiksgemak voor medewerkers en bezoekers aanzienlijk vergroot.
Aan de rechterzijde van het complex bevindt zich aanvullend een kleinschalige bedrijfsruimte met een oppervlakte van circa 70 m² (inclusief entresol). Deze ruimte is separaat toegankelijk en leent zich uitstekend voor kleinschalige opslag, werkplaatsgebruik of ondersteunende bedrijfsactiviteiten. Door de zelfstandige ontsluiting vormt deze unit een functionele en waardevolle aanvulling op het geheel.
Het object is gelegen op bedrijventerrein ’s Gravendijck, een goed bereikbaar en levendig bedrijventerrein met een gevarieerde mix van ondernemingen. In de directe omgeving zijn onder andere Praxis, Van der Wiel Bouw, Music All in, Taxi Brouwer en Noort Interieur gevestigd, evenals gerenommeerde autobedrijven zoals Van Poelgeest, Zeeuw & Zeeuw, Abswoude Autopromenade en Hedin Automotive. Deze combinatie zorgt voor een dynamische, professionele en commercieel sterke bedrijfsomgeving.
De ligging biedt goede verbindingen richting uitvalswegen en omliggende gemeenten, wat resulteert in een uitstekende bereikbaarheid voor medewerkers, klanten en leveranciers.
Kortom, een hoogwaardig, representatief en energiezuinig bedrijfspand op een strategische locatie, waar ruimte, vrije overspanning, vermogen, bereikbaarheid en uitstraling optimaal samenkomen.
BEREIKBAARHEID
Het geheel is per eigen vervoer goed bereikbaar via de Rijksweg A44, alsmede via de Provinciale weg N206
Bereikbaarheid per openbaar vervoer is als goed te kenmerken. Enkele bushalten bevinden zich in de directe omgeving.
LOCATIE / VOORZIENINGEN
Winkel voorziening
Op minder dan 500 m
Snelwegafrit
Op 5000 m of meer
Bushalte
Vrijwel direct voor de deur.
LOCATIE / LIGGING
Bedrijventerrein
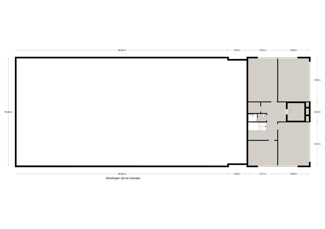
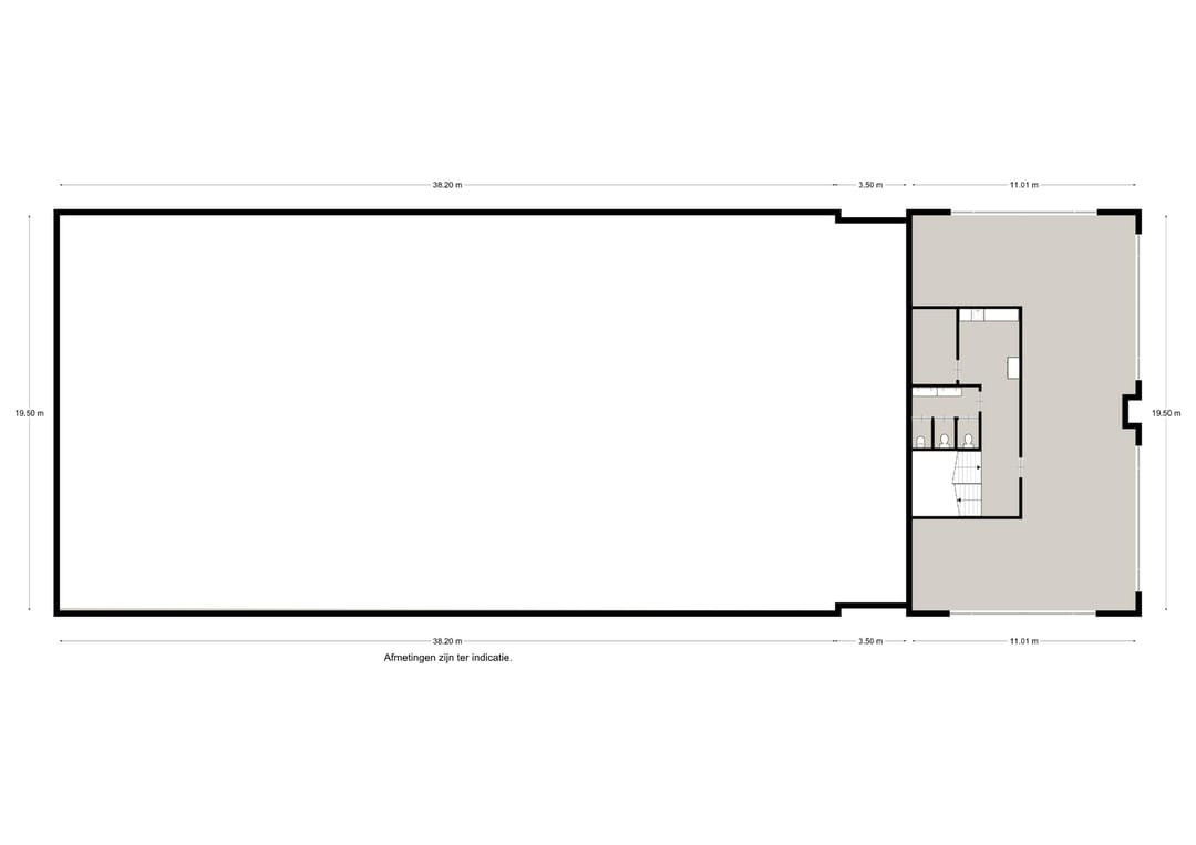
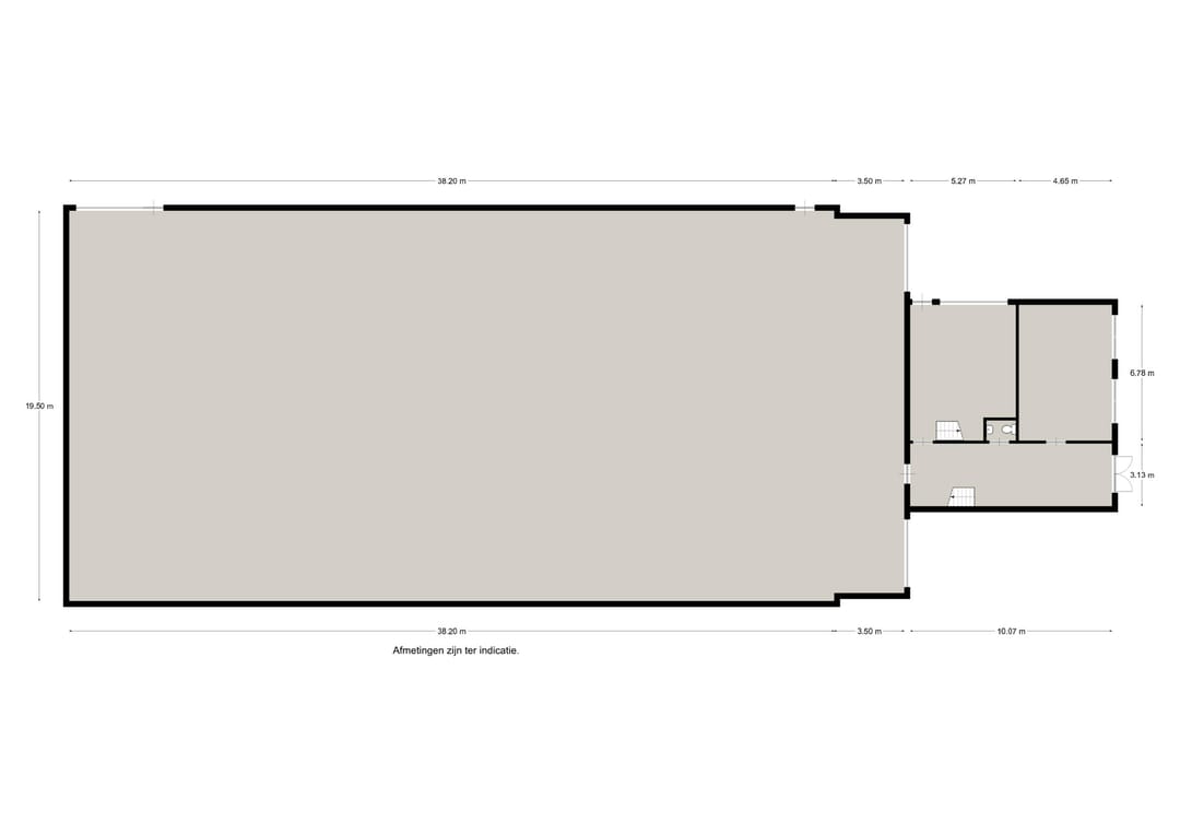
OPPERVLAKTE / INDELING
De bedrijfsruimte heeft in totaal een oppervlakte van ca. 1.355 m² en is als volgt ingedeeld:
Begane grond:
Bedrijfsruimte: 810 m²
Bedrijfs-/opslagruimte met entresol (laag): 70 m²
Showroom met ruime entree: 65 m²
Eerste verdieping: ca. 210 m² kantoorruimte.
Tweede verdieping: ca. 200 m² kantoorruimte.
PARKEERMOGELIJKHEDEN
Op eigen terrein bevinden zich voldoende parkeerplaatsen.
ENERGIELABEL
Energielabel A+ (geldig tot en met 25-11-2035).
OPLEVERINGSNIVEAU
Het onroerend goed beschikt onder andere over:
Bedrijfsruimte
- LED verliching
- elektrisch bedienbare overheaddeuren
- krachtstroom
- betonvloer
- vrije hoogte ca. 12 meter:
- vrije overspanning
- lichtkoepels
- eigen meters
Kantoorruimte
- alarminstallatie
- camerabewaking
- te openen ramen
- airco
- mechanische ventilatie
- dubbele beglazing
- vloerbedekking
- systeemplafond met LED verlichting
- luxe pantry (eerste verdieping)
- toiletgroep (eerste verdieping)
- badkamer met douche en toilet (tweede verdieping)
- klein dakterras (tweede verdieping)
- cv-installatie met radiatoren
KOOPSOM
€ 2.295.000,-- k.k.
HUURPRIJS
€ 165.000,-- per jaar.
OMZETBELASTING
Verhuurder wenst te opteren voor een met BTW belaste verhuur.
HUURTERMIJN
5 jaar + telkens 5 optiejaren.
HUURPRIJSBETALING
De betaling van de huur, eventuele servicekosten en de eventueel verschuldigde omzetbelasting vindt elke maand bij vooruitbetaling plaats.
ZEKERHEIDSTELLING
Bij ondertekening van de huurovereenkomst zal huurder een bankgarantie stellen of een waarborgsom storten ter grootte van (minimaal) 3 maanden huur en eventuele servicekosten, alsmede de hierover verschuldigde omzetbelasting.
HUURPRIJSAANPASSING
Jaarlijks, voor het eerst één jaar na ingangsdatum van de huurovereenkomst, op basis van de wijziging van het maandindexcijfer volgens de consumentenprijsindex (CPI) reeks CPI-alle huishoudens (2015=100), gepubliceerd door het Centraal Bureau voor de Statistiek (CBS).
HUUROVEREENKOMST
Huurovereenkomst conform het standaardmodel van de Raad voor Onroerende Zaken (ROZ), zoals gehanteerd door de Nederlandse Vereniging voor Makelaars (NVM).
AANVAARDING
In overleg met verhuurder.
COURTAGE
Mocht door bemiddeling van Basis Bedrijfshuisvesting B.V. een transactie tot stand komen, zult u hiervoor geen kosten of courtage verschuldigd zijn.
KADASTRALE GEGEVENS
Gemeente: Noordwijk
Sectie: H
Nummer: 1164
Groot: 2.020 m²
BIJZONDERHEDEN
Elke transactie behoeft de nadrukkelijke goedkeuring van eigenaar.
OVERIG
Bezichtigingen uitsluitend op een daartoe afgesproken tijdstip met Basis Bedrijfshuisvesting B.V.
’s-Gravendijckseweg 51 te Noordwijk (2201 CZ)
ALGEMEEN
Aan de ’s Gravendijckseweg 51 te Noordwijk is deze moderne en duurzame bedrijfsruimte gelegen op het actieve en goed bereikbare bedrijventerrein ’s Gravendijck. Het object beschikt op de begane grond over een representatieve entree met showroomruimte, terwijl op de eerste en tweede verdieping net afgewerkte, turn key kantoorruimte is gerealiseerd. Deze indeling zorgt voor een professionele en representatieve uitstraling richting klanten en relaties. Het object heeft een totale vloeroppervlakte van circa 1.355 m² en is omstreeks 2016 gebouwd, waarbij kwaliteit, functionaliteit en duurzaamheid centraal hebben gestaan. Het gebouw beschikt over een energielabel A+ (geldig tot en met 26-11-2035), wat zorgt voor lagere energielasten en een toekomstbestendig karakter.
De bedrijfsruimte is vrij overspannen en onderscheidt zich daarnaast door een indrukwekkende vrije hoogte van maar liefst 12 meter. Hierdoor biedt het object maximale flexibiliteit in gebruik en inrichting en is het uitermate geschikt voor logistieke doeleinden, opslag, productie of andere bedrijfsactiviteiten waarbij veel volume en een onbelemmerde vloeroppervlakte gewenst zijn. Tevens is het object voorzien van een krachtige elektrische aansluiting van 3 x 80 ampère, waardoor het pand ook zeer geschikt is voor energie intensieve bedrijfsprocessen. Daarnaast beschikt het object over voldoende parkeerplaatsen, wat het gebruiksgemak voor medewerkers en bezoekers aanzienlijk vergroot.
Aan de rechterzijde van het complex bevindt zich aanvullend een kleinschalige bedrijfsruimte met een oppervlakte van circa 70 m² (inclusief entresol). Deze ruimte is separaat toegankelijk en leent zich uitstekend voor kleinschalige opslag, werkplaatsgebruik of ondersteunende bedrijfsactiviteiten. Door de zelfstandige ontsluiting vormt deze unit een functionele en waardevolle aanvulling op het geheel.
Het object is gelegen op bedrijventerrein ’s Gravendijck, een goed bereikbaar en levendig bedrijventerrein met een gevarieerde mix van ondernemingen. In de directe omgeving zijn onder andere Praxis, Van der Wiel Bouw, Music All in, Taxi Brouwer en Noort Interieur gevestigd, evenals gerenommeerde autobedrijven zoals Van Poelgeest, Zeeuw & Zeeuw, Abswoude Autopromenade en Hedin Automotive. Deze combinatie zorgt voor een dynamische, professionele en commercieel sterke bedrijfsomgeving.
De ligging biedt goede verbindingen richting uitvalswegen en omliggende gemeenten, wat resulteert in een uitstekende bereikbaarheid voor medewerkers, klanten en leveranciers.
Kortom, een hoogwaardig, representatief en energiezuinig bedrijfspand op een strategische locatie, waar ruimte, vrije overspanning, vermogen, bereikbaarheid en uitstraling optimaal samenkomen.
BEREIKBAARHEID
Het geheel is per eigen vervoer goed bereikbaar via de Rijksweg A44, alsmede via de Provinciale weg N206
Bereikbaarheid per openbaar vervoer is als goed te kenmerken. Enkele bushalten bevinden zich in de directe omgeving.
LOCATIE / VOORZIENINGEN
Winkel voorziening
Op minder dan 500 m
Snelwegafrit
Op 5000 m of meer
Bushalte
Vrijwel direct voor de deur.
LOCATIE / LIGGING
Bedrijventerrein
OPPERVLAKTE / INDELING
De bedrijfsruimte heeft in totaal een oppervlakte van ca. 1.355 m² en is als volgt ingedeeld:
Begane grond:
Bedrijfsruimte: 810 m²
Bedrijfs-/opslagruimte met entresol (laag): 70 m²
Showroom met ruime entree: 65 m²
Eerste verdieping: ca. 210 m² kantoorruimte.
Tweede verdieping: ca. 200 m² kantoorruimte.
PARKEERMOGELIJKHEDEN
Op eigen terrein bevinden zich voldoende parkeerplaatsen.
ENERGIELABEL
Energielabel A+ (geldig tot en met 25-11-2035).
OPLEVERINGSNIVEAU
Het onroerend goed beschikt onder andere over:
Bedrijfsruimte
- LED verliching
- elektrisch bedienbare overheaddeuren
- krachtstroom
- betonvloer
- vrije hoogte ca. 12 meter:
- vrije overspanning
- lichtkoepels
- eigen meters
Kantoorruimte
- alarminstallatie
- camerabewaking
- te openen ramen
- airco
- mechanische ventilatie
- dubbele beglazing
- vloerbedekking
- systeemplafond met LED verlichting
- luxe pantry (eerste verdieping)
- toiletgroep (eerste verdieping)
- badkamer met douche en toilet (tweede verdieping)
- klein dakterras (tweede verdieping)
- cv-installatie met radiatoren
KOOPSOM
€ 2.295.000,-- k.k.
HUURPRIJS
€ 165.000,-- per jaar.
OMZETBELASTING
Verhuurder wenst te opteren voor een met BTW belaste verhuur.
HUURTERMIJN
5 jaar + telkens 5 optiejaren.
HUURPRIJSBETALING
De betaling van de huur, eventuele servicekosten en de eventueel verschuldigde omzetbelasting vindt elke maand bij vooruitbetaling plaats.
ZEKERHEIDSTELLING
Bij ondertekening van de huurovereenkomst zal huurder een bankgarantie stellen of een waarborgsom storten ter grootte van (minimaal) 3 maanden huur en eventuele servicekosten, alsmede de hierover verschuldigde omzetbelasting.
HUURPRIJSAANPASSING
Jaarlijks, voor het eerst één jaar na ingangsdatum van de huurovereenkomst, op basis van de wijziging van het maandindexcijfer volgens de consumentenprijsindex (CPI) reeks CPI-alle huishoudens (2015=100), gepubliceerd door het Centraal Bureau voor de Statistiek (CBS).
HUUROVEREENKOMST
Huurovereenkomst conform het standaardmodel van de Raad voor Onroerende Zaken (ROZ), zoals gehanteerd door de Nederlandse Vereniging voor Makelaars (NVM).
AANVAARDING
In overleg met verhuurder.
COURTAGE
Mocht door bemiddeling van Basis Bedrijfshuisvesting B.V. een transactie tot stand komen, zult u hiervoor geen kosten of courtage verschuldigd zijn.
KADASTRALE GEGEVENS
Gemeente: Noordwijk
Sectie: H
Nummer: 1164
Groot: 2.020 m²
BIJZONDERHEDEN
Elke transactie behoeft de nadrukkelijke goedkeuring van eigenaar.
OVERIG
Bezichtigingen uitsluitend op een daartoe afgesproken tijdstip met Basis Bedrijfshuisvesting B.V.
Kenmerken
Overdracht
- Vraagprijs
- € 2.295.000 kosten koper
- Huurprijs
- € 165.000 per jaar
- Aangeboden sinds
-
- Status
- Beschikbaar
- Aanvaarding
- In overleg
Bouw
- Hoofdfunctie
- Bedrijfshal
- Soort bouw
- Bestaande bouw
- Bouwjaar
- 2016
Oppervlakten
- Oppervlakte
- 1.355 m²
- Bedrijfshal oppervlak
- 1.355 m²
- Vrije hoogte
- 12 m
- Perceel
- 2.020 m²
Indeling
- Voorzieningen
- Airconditioning, mechanische ventilatie, overheaddeuren, krachtstroom, betonvloer, toilet en pantry
Energie
- Energielabel
- A+
Omgeving
- Ligging
- Bedrijventerrein
- Bereikbaarheid
- Bushalte op minder dan 500 m en snelwegafrit op 5000 m of meer
NVM makelaar
Foto's
Plattegrond
Begane grond
Verdieping 1
Verdieping 2