Katoenstraat 7-1 8281 JZ Genemuiden
€ 57.500 /jr
Omschrijving
Aan de Katoenstraat op het bedrijventerrein in Genemuiden wordt een representatieve bedrijfs-/kantoorruimte aan de voorzijde van een modern verzamelgebouw te huur aangeboden.
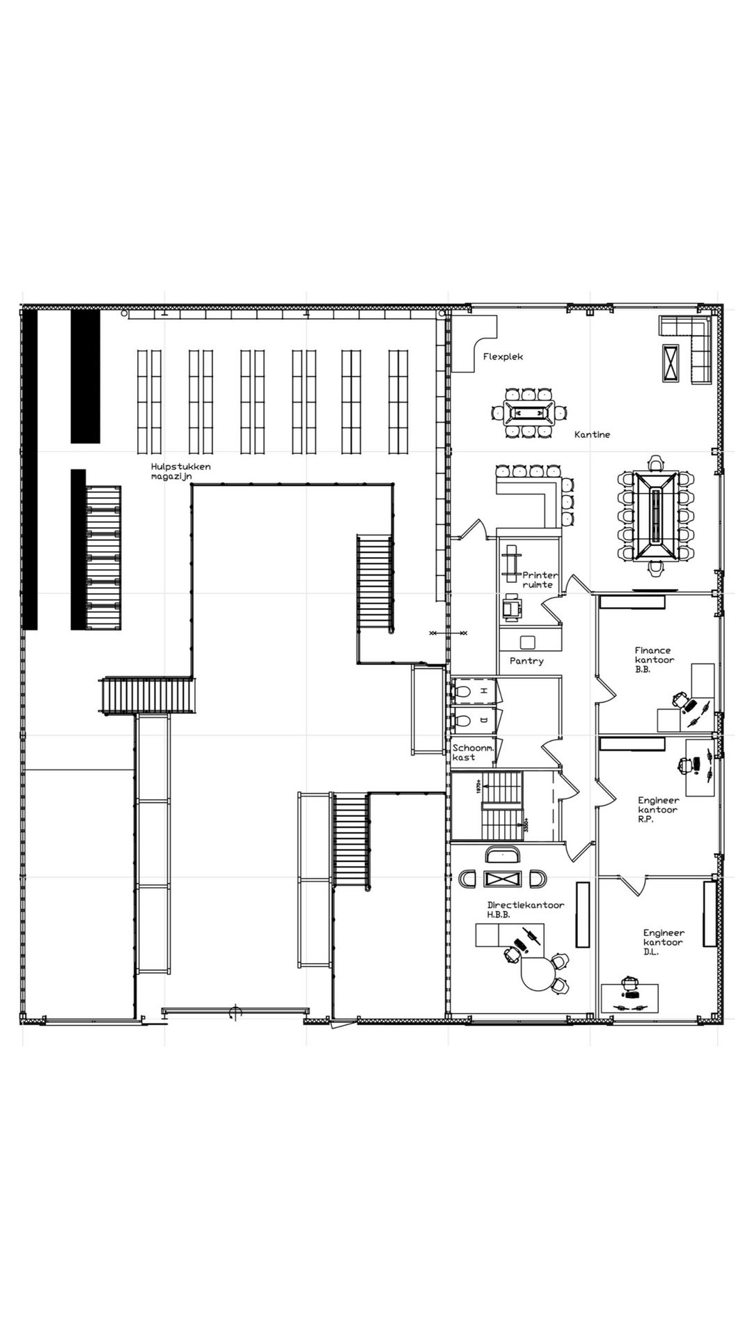
De beschikbare ruimte bestaat uit een combinatie van kantoor- en bedrijfsruimte. De kantoorruimte heeft een oppervlakte van circa 140 m² op de begane grond en circa 235 m² op de eerste verdieping. De bedrijfsruimte omvat circa 470 m², waarvan 95 m2 als berging/ archief. Het totale complex bestaat uit vier bedrijfsunits. Dankzij de flexibele opzet kunnen de oppervlakten desgewenst worden aangepast aan uw specifieke bedrijfsbehoefte.
Het pand is gebouwd met hoogwaardige, duurzame materialen, wat resulteert in een verzorgde en tijdloze uitstraling.
Aan de voor- en linkerzijde van het gebouw zijn circa 9 parkeerplaatsen beschikbaar.
De multifunctionele indeling maakt dit object bijzonder geschikt voor zowel startende als gevestigde ondernemers die behoefte hebben aan flexibiliteit in een aangename werkomgeving.
Kantoorruimte
De kantoorruimte beschikt over een eigen entree en is verdeeld in meerdere kantoorvertrekken. Daarnaast is de ruimte voorzien van een pantry, meerdere toiletten, airconditioning en een verlichtingssysteem met systeemplafonds.
Bedrijfsruimte
De bedrijfsruimte is uitgerust met een elektrische overheaddeur, verlichtingsinstallaties, een betonvloer, een vrije hoogte van minimaal 6,00 meter, een gasheater en krachtstroomaansluitingen. De entresolvloeren maken geen onderdeel uit van deze aanbieding.
Locatie
Het object bevindt zich aan de rand van industrieterrein Zevenhont in Genemuiden, met een snelle ontsluiting richting Hasselt en Zwolle. Genemuiden ligt op ongeveer 15 minuten rijden van Zwolle (A28) en Kampen (N760). In 2018 werd Genemuiden door de provincie Overijssel uitgeroepen tot TopWerklocatie.
De beschikbare ruimte bestaat uit een combinatie van kantoor- en bedrijfsruimte. De kantoorruimte heeft een oppervlakte van circa 140 m² op de begane grond en circa 235 m² op de eerste verdieping. De bedrijfsruimte omvat circa 470 m², waarvan 95 m2 als berging/ archief. Het totale complex bestaat uit vier bedrijfsunits. Dankzij de flexibele opzet kunnen de oppervlakten desgewenst worden aangepast aan uw specifieke bedrijfsbehoefte.
Het pand is gebouwd met hoogwaardige, duurzame materialen, wat resulteert in een verzorgde en tijdloze uitstraling.
Aan de voor- en linkerzijde van het gebouw zijn circa 9 parkeerplaatsen beschikbaar.
De multifunctionele indeling maakt dit object bijzonder geschikt voor zowel startende als gevestigde ondernemers die behoefte hebben aan flexibiliteit in een aangename werkomgeving.
Kantoorruimte
De kantoorruimte beschikt over een eigen entree en is verdeeld in meerdere kantoorvertrekken. Daarnaast is de ruimte voorzien van een pantry, meerdere toiletten, airconditioning en een verlichtingssysteem met systeemplafonds.
Bedrijfsruimte
De bedrijfsruimte is uitgerust met een elektrische overheaddeur, verlichtingsinstallaties, een betonvloer, een vrije hoogte van minimaal 6,00 meter, een gasheater en krachtstroomaansluitingen. De entresolvloeren maken geen onderdeel uit van deze aanbieding.
Locatie
Het object bevindt zich aan de rand van industrieterrein Zevenhont in Genemuiden, met een snelle ontsluiting richting Hasselt en Zwolle. Genemuiden ligt op ongeveer 15 minuten rijden van Zwolle (A28) en Kampen (N760). In 2018 werd Genemuiden door de provincie Overijssel uitgeroepen tot TopWerklocatie.
Kenmerken
Overdracht
- Huurprijs
- € 57.500 per jaar
- Aangeboden sinds
-
- Status
- Beschikbaar
- Aanvaarding
- In overleg
Bouw
- Hoofdfunctie
- Bedrijfshal
- Soort bouw
- Bestaande bouw
- Bouwjaar
- 2003
Oppervlakten
- Oppervlakte
- 850 m² (in units vanaf 95 m²)
- Bedrijfshal oppervlak
- 470 m²
- Terrein oppervlak
- 125 m²
- Kantoor oppervlak
- 380 m²
- Vrije hoogte
- 6 m
- Vrije overspanning
- 15 m
- Perceel
- 4.615 m²
Indeling
- Aantal bouwlagen
- 2 bouwlagen
- Voorzieningen
- Overheaddeuren, krachtstroom, betonvloer, heater, inbouwarmaturen en te openen ramen
Energie
- Energielabel
- Niet beschikbaar
Omgeving
- Ligging
- Bedrijventerrein
- Bereikbaarheid
- Bushalte op 500 m tot 1000 m, NS Intercitystation op 5000 m of meer en snelwegafrit op 5000 m of meer
Parkeergelegenheid
- Parkeerplaatsen
- 9 niet-overdekte parkeerplaatsen
Foto's