Bolstoen 13-P 1046 AS Amsterdam
- Nieuw
€ 370.000 v.o.n.
Omschrijving
Op het goed bereikbare bedrijventerrein van Sloterdijk wordt deze hagelnieuwe, MULTIFUNCTIONELE en afgebouwde TURN-KEY bedrijfs-/kantoor-/showroomruimte met fraaie, openslaande harmonicadeuren ter grootte van ca. 128 m² TE KOOP aangeboden.
Algemeen:
De unit maakt onderdeel van een modern, kleinschalig complex ter grootte van 42 bedrijfsunits en is onder architectuur met veel glas en houten gevelbekleding recent opgeleverd.
Door de keuze van veel lichtdoorlatende materialen is zowel de begane grond als de eerste verdieping voorzien van veel daglicht. Hierdoor is de ruimte voor veel verschillende doeleinden te gebruiken en direct te betrekken!
Direct voor het object bevinden zich 2 parkeerplaatsen.
Oppervlakte:
De energiezuinige unit van ca. 128 m² (BVO) bestaat uit een bedrijfsruimte op de begane grond van ca. 64 m² (BVO) en een bedrijfs-/kantoorruimte op de eerste verdieping van ca. 64 m² (BVO).
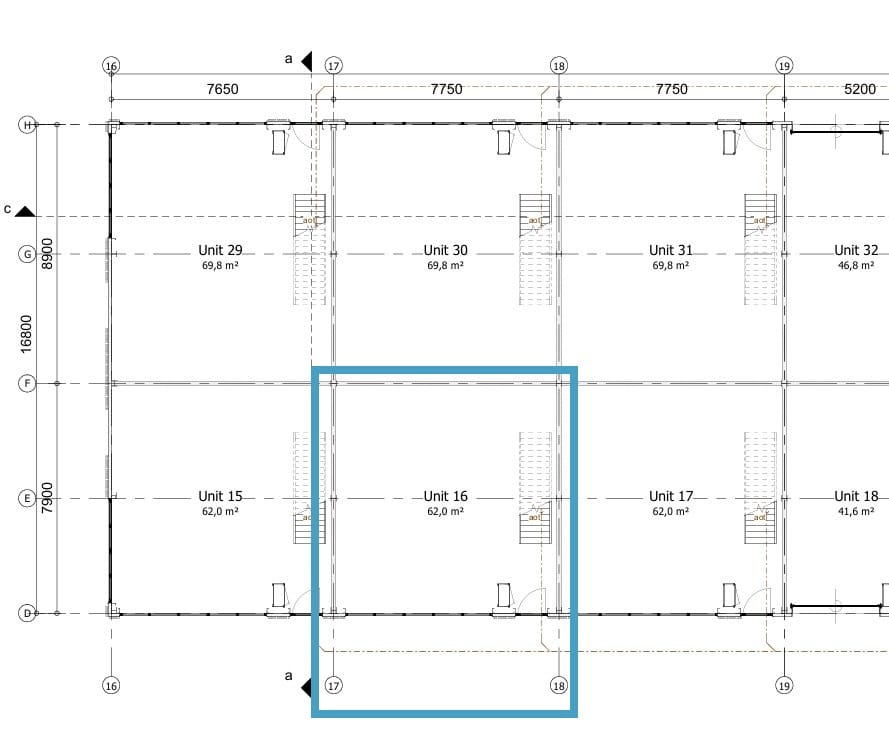
Afmetingen conform plattegrond: diepte van ca. 7,90 meter - breedte ca. 7,75 meter.
Voorzieningen/ installaties:
Het turn-key object is onder meer voorzien van:
- fraaie glazen pui met volledig te openen harmonicadeuren (geschikt om een auto naar binnen te rijden);
- aparte toegangsdeur;
- mogelijkheid tot naamsaanduiding voorzijde;
- meterkast met elektra-, water- en glasvezelaansluiting;
- vaste trap in afgesloten trappenhuis;
- raamkozijnen aluminium, voorzien van te openen raam met HR++ isolatieglas;
- begane grondvloer beton monoliet (glad) vloerbelasting ca. 1.000kg/m²;
- verdiepingsvloer bestaat uit kanaalplaatvoer ca. 400 kg/m².
- systeemplafond met LED-verlichting;
- gestucte wanden;
- toilet op de begane grond;
- badkamer voorzien van douche, wastafelmeubel en toilet op de verdieping.
Bestemming:
Conform het vigerende bestemmingsplan “Sloterdijk III” d.d. 3 juli 2013 kent het object de enkelbestemming ‘Bedrijf - 3’ en zijn onder meer bedrijven die vallen in categorieën 2 tot en met 4 toegestaan, met daarbij behorende en ondergeschikte voorzieningen zoals kantoor- en andere nevenruimten en bergingen.
Voor de volledige tekst, exacte en actuele voorwaarden, alsmede overige invullingen en het nagaan of het object voor koper geschikt is qua bestemming verwijzen wij u naar het vigerende bestemmingsplan en de gemeente Amsterdam, afdeling Ruimtelijke Ordening.
Bereikbaarheid:
De bereikbaarheid van het object is uitstekend; door de 2e Coentunnel, de Westrandweg en de nabijheid van treinstation Sloterdijk.
Komt u met de auto?
Het bedrijventerrein heeft een 2 directe afslagen naar de A5 (afslag 2 en afslag 3) waardoor u binnen een paar minuten op de A9 en A10 bent. Via de S102 en N200 is het centrum van Amsterdam in twintig minuten bereikbaar en ook Schiphol is goed te bereiken.
Komt u met het OV?
Diverse bussen stoppen direct om de hoek (halte Bolstoen) en rijden u in ca. 8 minuten naar station Amsterdam Sloterdijk.
Parkeergelegenheid:
Het object beschikt over 2 ruime parkeerplaatsen, gelegen direct voor de unit.
Bouwjaar:
2024.
Energielabel gebouw:
Niet van toepassing.
Kadastrale gegevens:
Gemeente Sloten, Noord-Holland, sectie A, nummer 2123 A16.
Bankgarantie/waarborgsom:
Waarborgsom/bankgarantie: 10% van de koopsom, door koper te voldoen uiterlijk 2 weken na ondertekenen koopakte.
BTW:
Wel van toepassing. Fiscaal gezien heeft er nog geen eerste ingebruikneming plaats gevonden, waardoor een levering belast met BTW en vrijgesteld van overdrachtsbelasting mogelijk is. Dit is een mooie kans voor een BTW-plichtige ondernemer, die de betaalde BTW kan verrekenen.
Oplevering:
Per direct.
Zakelijke lasten 2026:
Onroerend zaakbelasting eigenaar: volgt
Onroerend zaakbelasting gebruiker: volgt
Rioolrecht: € 192,04
Waterschap: volgt
Erfpachtcanon: € 1.517,85 per jaar
VvE:
Koper wordt lid van de Vereniging van Eigenaren, de jaarlijkse bijdrage wordt nog vastgesteld.
Bijzonderheden:
- Definitieve gunning eigenaar voorbehouden.
- Het bedrijfspand is een appartementsrecht en derhalve onderdeel van een VVE (Vereniging van Eigenaars) "Appartementengebouw LAYERS, Bolstoen 11A t/m 11H,11K t/m 11N,11P en 11R, 13A t/m 13H,13K t/m 13N,13P en 13R en 15A t/m 15H,15K t/m 15N,15P en 15R te Amsterdam.
- Het koopcontract wordt gemaakt door de notaris, gevestigd in Amsterdam, Amstelveen, Diemen, Uithoorn, Badhoevedorp, Mijdrecht, Abcoude of Aalsmeer. Het koopcontract dat gebruikt wordt is het model Ring Amsterdam. De keuze van het notariskantoor is aan de koper, tenzij anders aangegeven in deze brochure.
- Koper dient binnen twee werkdagen na het bereiken van de mondelinge overeenstemming inzake de koopsom en de voorwaarden een notaris aan te wijzen. Indien koper binnen deze periode geen notaris heeft aangewezen heeft verkoper het recht deze aan te wijzen.
- Deze informatie is door ons met de nodige zorgvuldigheid samengesteld. Onzerzijds wordt echter geen enkele aansprakelijkheid aanvaard voor enige onvolledigheid, onjuistheid of anderszins, dan wel de gevolgen daarvan.
- Alle vermelde omschrijvingen, afmetingen, beschrijvingen van de toestand, vergunningen die eventueel voor gebruik of uitvoering benodigd zijn, en de overige informatie en specificaties zijn te goeder trouw vermeld. Een (aanstaande) koper kan en mag echter niet op de juistheid en volledigheid van die informatie vertrouwen en dient door eigen onderzoek zichzelf ervan te vergewissen dat die vermelde informatie juist en volledig is.
- De oppervlakte is met grootst mogelijke zorgvuldigheid gemeten, maar biedt geen garantie en er kunnen geen rechten aan worden ontleend.
Clausules:
Bij verkoop kunnen extra bepalingen in de koopakte worden opgenomen.
Voor meer informatie kunt u contact opnemen met Blauwman Bedrijfsmakelaars, tel.: 020-215 8800.
Algemeen:
De unit maakt onderdeel van een modern, kleinschalig complex ter grootte van 42 bedrijfsunits en is onder architectuur met veel glas en houten gevelbekleding recent opgeleverd.
Door de keuze van veel lichtdoorlatende materialen is zowel de begane grond als de eerste verdieping voorzien van veel daglicht. Hierdoor is de ruimte voor veel verschillende doeleinden te gebruiken en direct te betrekken!
Direct voor het object bevinden zich 2 parkeerplaatsen.
Oppervlakte:
De energiezuinige unit van ca. 128 m² (BVO) bestaat uit een bedrijfsruimte op de begane grond van ca. 64 m² (BVO) en een bedrijfs-/kantoorruimte op de eerste verdieping van ca. 64 m² (BVO).
Afmetingen conform plattegrond: diepte van ca. 7,90 meter - breedte ca. 7,75 meter.
Voorzieningen/ installaties:
Het turn-key object is onder meer voorzien van:
- fraaie glazen pui met volledig te openen harmonicadeuren (geschikt om een auto naar binnen te rijden);
- aparte toegangsdeur;
- mogelijkheid tot naamsaanduiding voorzijde;
- meterkast met elektra-, water- en glasvezelaansluiting;
- vaste trap in afgesloten trappenhuis;
- raamkozijnen aluminium, voorzien van te openen raam met HR++ isolatieglas;
- begane grondvloer beton monoliet (glad) vloerbelasting ca. 1.000kg/m²;
- verdiepingsvloer bestaat uit kanaalplaatvoer ca. 400 kg/m².
- systeemplafond met LED-verlichting;
- gestucte wanden;
- toilet op de begane grond;
- badkamer voorzien van douche, wastafelmeubel en toilet op de verdieping.
Bestemming:
Conform het vigerende bestemmingsplan “Sloterdijk III” d.d. 3 juli 2013 kent het object de enkelbestemming ‘Bedrijf - 3’ en zijn onder meer bedrijven die vallen in categorieën 2 tot en met 4 toegestaan, met daarbij behorende en ondergeschikte voorzieningen zoals kantoor- en andere nevenruimten en bergingen.
Voor de volledige tekst, exacte en actuele voorwaarden, alsmede overige invullingen en het nagaan of het object voor koper geschikt is qua bestemming verwijzen wij u naar het vigerende bestemmingsplan en de gemeente Amsterdam, afdeling Ruimtelijke Ordening.
Bereikbaarheid:
De bereikbaarheid van het object is uitstekend; door de 2e Coentunnel, de Westrandweg en de nabijheid van treinstation Sloterdijk.
Komt u met de auto?
Het bedrijventerrein heeft een 2 directe afslagen naar de A5 (afslag 2 en afslag 3) waardoor u binnen een paar minuten op de A9 en A10 bent. Via de S102 en N200 is het centrum van Amsterdam in twintig minuten bereikbaar en ook Schiphol is goed te bereiken.
Komt u met het OV?
Diverse bussen stoppen direct om de hoek (halte Bolstoen) en rijden u in ca. 8 minuten naar station Amsterdam Sloterdijk.
Parkeergelegenheid:
Het object beschikt over 2 ruime parkeerplaatsen, gelegen direct voor de unit.
Bouwjaar:
2024.
Energielabel gebouw:
Niet van toepassing.
Kadastrale gegevens:
Gemeente Sloten, Noord-Holland, sectie A, nummer 2123 A16.
Bankgarantie/waarborgsom:
Waarborgsom/bankgarantie: 10% van de koopsom, door koper te voldoen uiterlijk 2 weken na ondertekenen koopakte.
BTW:
Wel van toepassing. Fiscaal gezien heeft er nog geen eerste ingebruikneming plaats gevonden, waardoor een levering belast met BTW en vrijgesteld van overdrachtsbelasting mogelijk is. Dit is een mooie kans voor een BTW-plichtige ondernemer, die de betaalde BTW kan verrekenen.
Oplevering:
Per direct.
Zakelijke lasten 2026:
Onroerend zaakbelasting eigenaar: volgt
Onroerend zaakbelasting gebruiker: volgt
Rioolrecht: € 192,04
Waterschap: volgt
Erfpachtcanon: € 1.517,85 per jaar
VvE:
Koper wordt lid van de Vereniging van Eigenaren, de jaarlijkse bijdrage wordt nog vastgesteld.
Bijzonderheden:
- Definitieve gunning eigenaar voorbehouden.
- Het bedrijfspand is een appartementsrecht en derhalve onderdeel van een VVE (Vereniging van Eigenaars) "Appartementengebouw LAYERS, Bolstoen 11A t/m 11H,11K t/m 11N,11P en 11R, 13A t/m 13H,13K t/m 13N,13P en 13R en 15A t/m 15H,15K t/m 15N,15P en 15R te Amsterdam.
- Het koopcontract wordt gemaakt door de notaris, gevestigd in Amsterdam, Amstelveen, Diemen, Uithoorn, Badhoevedorp, Mijdrecht, Abcoude of Aalsmeer. Het koopcontract dat gebruikt wordt is het model Ring Amsterdam. De keuze van het notariskantoor is aan de koper, tenzij anders aangegeven in deze brochure.
- Koper dient binnen twee werkdagen na het bereiken van de mondelinge overeenstemming inzake de koopsom en de voorwaarden een notaris aan te wijzen. Indien koper binnen deze periode geen notaris heeft aangewezen heeft verkoper het recht deze aan te wijzen.
- Deze informatie is door ons met de nodige zorgvuldigheid samengesteld. Onzerzijds wordt echter geen enkele aansprakelijkheid aanvaard voor enige onvolledigheid, onjuistheid of anderszins, dan wel de gevolgen daarvan.
- Alle vermelde omschrijvingen, afmetingen, beschrijvingen van de toestand, vergunningen die eventueel voor gebruik of uitvoering benodigd zijn, en de overige informatie en specificaties zijn te goeder trouw vermeld. Een (aanstaande) koper kan en mag echter niet op de juistheid en volledigheid van die informatie vertrouwen en dient door eigen onderzoek zichzelf ervan te vergewissen dat die vermelde informatie juist en volledig is.
- De oppervlakte is met grootst mogelijke zorgvuldigheid gemeten, maar biedt geen garantie en er kunnen geen rechten aan worden ontleend.
Clausules:
Bij verkoop kunnen extra bepalingen in de koopakte worden opgenomen.
Voor meer informatie kunt u contact opnemen met Blauwman Bedrijfsmakelaars, tel.: 020-215 8800.
Kenmerken
Overdracht
- Vraagprijs
- € 370.000 vrij op naam
- Aangeboden sinds
-
- Status
- Beschikbaar
- Aanvaarding
- Per direct beschikbaar
Bouw
- Hoofdfunctie
- Bedrijfshal
- Soort bouw
- Bestaande bouw
- Bouwjaar
- 2024
Oppervlakten
- Oppervlakte
- 128 m²
- Bedrijfshal oppervlak
- 128 m²
- Draagvermogen
- 1.000 kg/m²
Indeling
- Voorzieningen
- Betonvloer, toilet en pantry
Energie
- Energielabel
- Niet verplicht
Omgeving
- Ligging
- Bedrijventerrein
- Bereikbaarheid
- Bushalte op minder dan 500 m en snelwegafrit op 1000 m tot 1500 m
Parkeergelegenheid
- Parkeerplaatsen
- 2 niet-overdekte parkeerplaatsen
Foto's