Versterkerstraat 4 1322 AP Almere
€ 80 /m²/jaar
Omschrijving
Op bedrijventerrein Gooise Kant Almere langs de A6 (zichtlocatie) gelegen bedrijfsgebouw met fraaie uitstraling. Het gebouw staat op een beeldbepalende plek.
Door de verbreding van de A6 staat het gebouw op een prominente zichtlocatie nabij de afrit 3a Almere Stad.
Bereikbaarheid
De bereikbaarheid met eigen vervoer is uitstekend via de verbrede A6 (afrit 3a) welke aansluit op de A1 richting Amsterdam-Amersfoort-Utrecht. Via de A27 is er een snelle verbinding met Amersfoort-Utrecht. Per openbaar vervoer, over de vrije busbanen in de gemeente Almere, is het Centraal Station in circa 15 minuten bereikbaar.
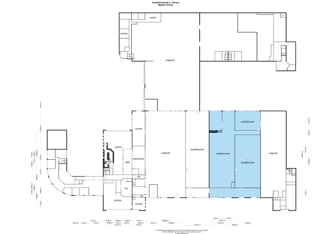
Object
De te huren warehouse (rechts) bevindt zich op de begane grond en heeft een totale oppervlakte van circa 1.403 m² bedrijfsruimte. De bedrijfsruimte is voorzien van 3 loading docks en 1 elektrische overheaddeur, wat de bereikbaarheid en het laden en lossen aanzienlijk vergemakkelijkt.
Opleveringsniveau:
- 3 loading docks;
- 1 elektrische overheaddeur;
- onderheide betonnen vloer;
- vrije hoogte van ca. 7 meter;
Parkeren
Voldoende parkeergelegenheid op eigen terrein.
Beschikbaar
In overleg
Servicekosten
In overleg.
Huurprijs
€ 80,00 per m² per jaar exclusief BTW.
Servicekosten
Als voorschot op basis van nacalculatie, bij vooruitbetaling per maand te voldoen. Huurder is direct contractant van de openbare nutsbedrijven. Het serviceprogramma is nader overeen te komen.
BTW
Huurder en verhuurder verklaren uitdrukkelijk dat bij het vaststellen van de huurprijs uitgangspunt is geweest dat huurder blijvend voldoet aan de criteria welke gesteld zijn of worden voor een belaste verhuur ex. Artikel 11, lid 1 letter b, sub 5, Wet op de omzetbelasting 1968. Indien de belaste verhuur beëindigd wordt dan wel een verzoek tot belaste verhuur niet wordt ingewilligd omdat de huurder niet meer c.q. niet aan de gestelde eisen voldoet, wordt de overeengekomen kale huurprijs, exclusief BTW, zodanig verhoogd dat de verhuurder volledig gecompenseerd wordt voor de BTW op de toerekenbare investeringen en kosten welk hij aan de fiscus moet terugbetalen c.q. niet (meer) in aftrek kan brengen.
Huurtermijn
5 jaar gevolgd door 5 jaren. Na het verlopen van voornoemde perioden zal de huurovereenkomst worden voortgezet met aansluitende perioden van telkens 5 jaar.
Huurbetaling
Huur, eventuele servicekosten en BTW per maand vooruit.
Huurcontract
De huurovereenkomst wordt opgesteld volgens het eigen model van de verhuurder.
Huurprijsindexering
Jaarlijks, op basis van de wijziging van het maandprijsindexcijfer volgens de Consumentenprijsindex (CPI) reeks "Alle huishoudens” (2025=100), gepubliceerd door het Centraal Bureau voor de Statistiek (CBS), voor het eerst 1 jaar na huuringangsdatum en vervolgens jaarlijks op deze datum.
Zekerheidstelling
De waarborgsom dient gelijk te zijn aan 3 maanden huur te vermeerderen met de eventuele servicekosten en de over deze bedragen wettelijk verschuldigde BTW.
Voorbehoud
Voorbehoud van goedkeuring verhuurder. De vermelde informatie is van algemene aard. Aan de inhoud van deze informatie kunnen geen rechten worden ontleend.
Informatie
Van der Linden Bedrijfsmakelaars B.V.
Randstad 2301 / Postbus 10172
Almere
tel: 036-5330077
Door de verbreding van de A6 staat het gebouw op een prominente zichtlocatie nabij de afrit 3a Almere Stad.
Bereikbaarheid
De bereikbaarheid met eigen vervoer is uitstekend via de verbrede A6 (afrit 3a) welke aansluit op de A1 richting Amsterdam-Amersfoort-Utrecht. Via de A27 is er een snelle verbinding met Amersfoort-Utrecht. Per openbaar vervoer, over de vrije busbanen in de gemeente Almere, is het Centraal Station in circa 15 minuten bereikbaar.
Object
De te huren warehouse (rechts) bevindt zich op de begane grond en heeft een totale oppervlakte van circa 1.403 m² bedrijfsruimte. De bedrijfsruimte is voorzien van 3 loading docks en 1 elektrische overheaddeur, wat de bereikbaarheid en het laden en lossen aanzienlijk vergemakkelijkt.
Opleveringsniveau:
- 3 loading docks;
- 1 elektrische overheaddeur;
- onderheide betonnen vloer;
- vrije hoogte van ca. 7 meter;
Parkeren
Voldoende parkeergelegenheid op eigen terrein.
Beschikbaar
In overleg
Servicekosten
In overleg.
Huurprijs
€ 80,00 per m² per jaar exclusief BTW.
Servicekosten
Als voorschot op basis van nacalculatie, bij vooruitbetaling per maand te voldoen. Huurder is direct contractant van de openbare nutsbedrijven. Het serviceprogramma is nader overeen te komen.
BTW
Huurder en verhuurder verklaren uitdrukkelijk dat bij het vaststellen van de huurprijs uitgangspunt is geweest dat huurder blijvend voldoet aan de criteria welke gesteld zijn of worden voor een belaste verhuur ex. Artikel 11, lid 1 letter b, sub 5, Wet op de omzetbelasting 1968. Indien de belaste verhuur beëindigd wordt dan wel een verzoek tot belaste verhuur niet wordt ingewilligd omdat de huurder niet meer c.q. niet aan de gestelde eisen voldoet, wordt de overeengekomen kale huurprijs, exclusief BTW, zodanig verhoogd dat de verhuurder volledig gecompenseerd wordt voor de BTW op de toerekenbare investeringen en kosten welk hij aan de fiscus moet terugbetalen c.q. niet (meer) in aftrek kan brengen.
Huurtermijn
5 jaar gevolgd door 5 jaren. Na het verlopen van voornoemde perioden zal de huurovereenkomst worden voortgezet met aansluitende perioden van telkens 5 jaar.
Huurbetaling
Huur, eventuele servicekosten en BTW per maand vooruit.
Huurcontract
De huurovereenkomst wordt opgesteld volgens het eigen model van de verhuurder.
Huurprijsindexering
Jaarlijks, op basis van de wijziging van het maandprijsindexcijfer volgens de Consumentenprijsindex (CPI) reeks "Alle huishoudens” (2025=100), gepubliceerd door het Centraal Bureau voor de Statistiek (CBS), voor het eerst 1 jaar na huuringangsdatum en vervolgens jaarlijks op deze datum.
Zekerheidstelling
De waarborgsom dient gelijk te zijn aan 3 maanden huur te vermeerderen met de eventuele servicekosten en de over deze bedragen wettelijk verschuldigde BTW.
Voorbehoud
Voorbehoud van goedkeuring verhuurder. De vermelde informatie is van algemene aard. Aan de inhoud van deze informatie kunnen geen rechten worden ontleend.
Informatie
Van der Linden Bedrijfsmakelaars B.V.
Randstad 2301 / Postbus 10172
Almere
tel: 036-5330077
Kenmerken
Overdracht
- Huurprijs
- € 80 per vierkante meter per jaar
- Aangeboden sinds
-
- Status
- Beschikbaar
- Aanvaarding
- In overleg
Bouw
- Hoofdfunctie
- Bedrijfshal
- Soort bouw
- Bestaande bouw
- Bouwjaar
- 1997
Oppervlakten
- Oppervlakte
- 1.403 m²
- Bedrijfshal oppervlak
- 1.403 m²
- Vrije hoogte
- 7 m
- Perceel
- 19.362 m²
Indeling
- Voorzieningen
- Mechanische ventilatie, loading docks, overheaddeuren en betonvloer
Energie
- Energielabel
- Niet beschikbaar
Omgeving
- Ligging
- Bedrijventerrein
Foto's