Omschrijving
Monumentale kantoorvilla "Villa Sparrenheuvel" in Zeist – volledig gerenoveerd en verduurzaamd
Aan de rand van de dorpskern van Zeist, op het adres Sparrenheuvel 2, staat de karakteristieke kantoorvilla "Villa Sparrenheuvel". Deze monumentale, zelfstandige villa uit 1818 ondergaat momenteel een volledige renovatie. Daarbij wordt met veel zorg gewerkt aan zowel de buiten- als de binnenzijde van het gebouw, waarbij het historische karakter behouden blijft. Tegelijkertijd wordt er geïnvesteerd in verduurzaming, zodat het pand voldoet aan de eisen van deze tijd. Deze werkzaamheden worden deze zomer voltooid.
De villa maakt onderdeel uit van het Sparrenheuvel complex, dat in totaal circa 10.000 m² aan kantoorruimte omvat en wordt verhuurd aan een gevarieerde mix van huurders.
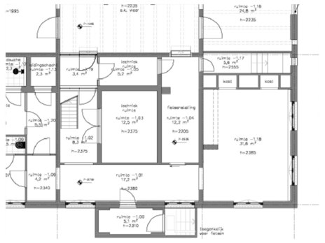
“Villa Sparrenheuvel” beschikt over een verhuurbaar vloeroppervlak van circa 653 m². De bel-etage en eerste verdieping, met een gezamenlijke oppervlakte van circa 450 m², zijn volledig ingericht als kantoorruimte. Daarnaast beschikt het souterrain over circa 200 m² verhuurbare ruimte, die geschikt is als ondersteunende kantoorruimte of als opslag-/archiefruimte.
Op het eigen terrein van de villa zijn in beginsel 12 parkeerplaatsen beschikbaar, exclusief voor de huurder van het pand. Eventuele uitbreiding van dit aantal is bespreekbaar, met additionele parkeervoorzieningen op 30 m afstand van de villa.
BEREIKBAARHEID
Per auto
'Villa Sparrenheuvel' is direct gelegen aan de Sparrenheuvel 2 in Zeist, aan de rand van de dorpskern en direct aan de Driebergseweg, één van de belangrijkste verkeersaders van de stad.
De villa is uitstekend bereikbaar vanaf de rijkswegen A12 en de A28.
Per OV
Ook met het openbaar vervoer is de villa goed bereikbaar dankzij een directe busverbinding met het NS-station Driebergen-Zeist. De bushalte is op minder dan 150 m gelegen.
METRAGE
Totaal circa 653 m2 v.v.o. kantoorruimte, verdeeld over het souterrain, bel-etage en 1e verdieping.
PARKEERGELEGENHEID
Op het eigen terrein van de villa zijn 12 parkeerplaatsen beschikbaar, exclusief voor de huurder van het pand. In overleg zijn op slechts 30 m afstand extra parkeerplaatsen beschikbaar.
OPLEVERINGSNIVEAU
“Villa Sparrenheuvel” wordt opgeleverd in een casco gerenoveerde staat en biedt een hoogwaardige basisafwerking.
In overleg met de huurder worden twee pantry’s gerealiseerd, en zowel de bestaande als de nieuwe toiletruimten zijn inbegrepen. De kantoorruimten beschikken over strak gesausde wanden en plafonds, en zijn voorzien van kantoorverlichting met een lichtsterkte van 500 lux. Voor een comfortabel binnenklimaat is een moderne klimaatinstallatie aanwezig, bestaande uit mechanische ventilatie en een warmtepomp. Daarnaast is de villa uitgerust met hoogwaardige Fineo-beglazing, wat bijdraagt aan zowel comfort als duurzaamheid en waarmee de monumentale uitstraling in stand blijft.
HUURPRIJS
€ 110.000,00 per jaar exclusief btw.
AANVAARDING
In overleg.
HUURTERMIJN
Vanaf 5 jaar met aansluitende perioden van telkens 5 jaar.
ZEKERHEIDSTELLING
Bankgarantie ter grootte van drie maanden huurpenningen en servicekosten, te vermeerderen met omzetbelasting.
HUURBETALING
De huur en de servicekosten te vermeerderen met btw worden per kwartaal vooruit betaald.
BTW-HEFFING
Uitgangspunt is BTW-belaste verhuur. Derhalve dient bovengenoemd bedrag te worden vermeerderd met het van toepassing zijnde BTW-percentage. Indien huurder niet aan het 90% criterium voldoet, is er van rechtswege sprake van omzetbelasting vrijgestelde verhuur. Alsdan wordt de overeengekomen kale huurprijs, exclusief omzetbelasting, verhoogd zodat het voor verhuurder ontstane nadeel wordt gecompenseerd.
HUURPRIJSHERZIENING
Jaarlijks, voor het eerst 1 (één) jaar na huuringangsdatum, op basis van de wijziging van het maandprijsindexcijfer volgens het consumentenprijsindexcijfer (CPI), reeks voor alle huishoudens (2015 = 100), gepubliceerd door het Centraal Bureau voor de Statistiek (CBS).
SERVICEKOSTEN
Nader te bepalen voorschotbedrag, te vermeerderen met omzetbelasting, als voorschot op basis van nacalculatie, bij vooruitbetaling per kwartaal te voldoen, voor de kosten van de leveringen en diensten.
Huurder is zelf verantwoordelijk voor de aansluiting van de nutsvoorzieningen en de levering van zaken en diensten van het gehele gebouw, waaronder in ieder geval de zaken opgenomen in de Algemene Bepalingen behorende bij de model ROZ huurovereenkomst.
HUUROVEREENKOMST
De op te stellen huurovereenkomst is conform de overeenkomst die door de Raad voor Onroerende Zaken in februari 2015 is vastgesteld en zoals gehanteerd wordt door de Nederlandse Vereniging van Makelaars NVM met de bijbehorende Algemene Bepalingen.
Aan de rand van de dorpskern van Zeist, op het adres Sparrenheuvel 2, staat de karakteristieke kantoorvilla "Villa Sparrenheuvel". Deze monumentale, zelfstandige villa uit 1818 ondergaat momenteel een volledige renovatie. Daarbij wordt met veel zorg gewerkt aan zowel de buiten- als de binnenzijde van het gebouw, waarbij het historische karakter behouden blijft. Tegelijkertijd wordt er geïnvesteerd in verduurzaming, zodat het pand voldoet aan de eisen van deze tijd. Deze werkzaamheden worden deze zomer voltooid.
De villa maakt onderdeel uit van het Sparrenheuvel complex, dat in totaal circa 10.000 m² aan kantoorruimte omvat en wordt verhuurd aan een gevarieerde mix van huurders.
“Villa Sparrenheuvel” beschikt over een verhuurbaar vloeroppervlak van circa 653 m². De bel-etage en eerste verdieping, met een gezamenlijke oppervlakte van circa 450 m², zijn volledig ingericht als kantoorruimte. Daarnaast beschikt het souterrain over circa 200 m² verhuurbare ruimte, die geschikt is als ondersteunende kantoorruimte of als opslag-/archiefruimte.
Op het eigen terrein van de villa zijn in beginsel 12 parkeerplaatsen beschikbaar, exclusief voor de huurder van het pand. Eventuele uitbreiding van dit aantal is bespreekbaar, met additionele parkeervoorzieningen op 30 m afstand van de villa.
BEREIKBAARHEID
Per auto
'Villa Sparrenheuvel' is direct gelegen aan de Sparrenheuvel 2 in Zeist, aan de rand van de dorpskern en direct aan de Driebergseweg, één van de belangrijkste verkeersaders van de stad.
De villa is uitstekend bereikbaar vanaf de rijkswegen A12 en de A28.
Per OV
Ook met het openbaar vervoer is de villa goed bereikbaar dankzij een directe busverbinding met het NS-station Driebergen-Zeist. De bushalte is op minder dan 150 m gelegen.
METRAGE
Totaal circa 653 m2 v.v.o. kantoorruimte, verdeeld over het souterrain, bel-etage en 1e verdieping.
PARKEERGELEGENHEID
Op het eigen terrein van de villa zijn 12 parkeerplaatsen beschikbaar, exclusief voor de huurder van het pand. In overleg zijn op slechts 30 m afstand extra parkeerplaatsen beschikbaar.
OPLEVERINGSNIVEAU
“Villa Sparrenheuvel” wordt opgeleverd in een casco gerenoveerde staat en biedt een hoogwaardige basisafwerking.
In overleg met de huurder worden twee pantry’s gerealiseerd, en zowel de bestaande als de nieuwe toiletruimten zijn inbegrepen. De kantoorruimten beschikken over strak gesausde wanden en plafonds, en zijn voorzien van kantoorverlichting met een lichtsterkte van 500 lux. Voor een comfortabel binnenklimaat is een moderne klimaatinstallatie aanwezig, bestaande uit mechanische ventilatie en een warmtepomp. Daarnaast is de villa uitgerust met hoogwaardige Fineo-beglazing, wat bijdraagt aan zowel comfort als duurzaamheid en waarmee de monumentale uitstraling in stand blijft.
HUURPRIJS
€ 110.000,00 per jaar exclusief btw.
AANVAARDING
In overleg.
HUURTERMIJN
Vanaf 5 jaar met aansluitende perioden van telkens 5 jaar.
ZEKERHEIDSTELLING
Bankgarantie ter grootte van drie maanden huurpenningen en servicekosten, te vermeerderen met omzetbelasting.
HUURBETALING
De huur en de servicekosten te vermeerderen met btw worden per kwartaal vooruit betaald.
BTW-HEFFING
Uitgangspunt is BTW-belaste verhuur. Derhalve dient bovengenoemd bedrag te worden vermeerderd met het van toepassing zijnde BTW-percentage. Indien huurder niet aan het 90% criterium voldoet, is er van rechtswege sprake van omzetbelasting vrijgestelde verhuur. Alsdan wordt de overeengekomen kale huurprijs, exclusief omzetbelasting, verhoogd zodat het voor verhuurder ontstane nadeel wordt gecompenseerd.
HUURPRIJSHERZIENING
Jaarlijks, voor het eerst 1 (één) jaar na huuringangsdatum, op basis van de wijziging van het maandprijsindexcijfer volgens het consumentenprijsindexcijfer (CPI), reeks voor alle huishoudens (2015 = 100), gepubliceerd door het Centraal Bureau voor de Statistiek (CBS).
SERVICEKOSTEN
Nader te bepalen voorschotbedrag, te vermeerderen met omzetbelasting, als voorschot op basis van nacalculatie, bij vooruitbetaling per kwartaal te voldoen, voor de kosten van de leveringen en diensten.
Huurder is zelf verantwoordelijk voor de aansluiting van de nutsvoorzieningen en de levering van zaken en diensten van het gehele gebouw, waaronder in ieder geval de zaken opgenomen in de Algemene Bepalingen behorende bij de model ROZ huurovereenkomst.
HUUROVEREENKOMST
De op te stellen huurovereenkomst is conform de overeenkomst die door de Raad voor Onroerende Zaken in februari 2015 is vastgesteld en zoals gehanteerd wordt door de Nederlandse Vereniging van Makelaars NVM met de bijbehorende Algemene Bepalingen.
Kaart
Kaart laden...
Kadastrale grens
Bebouwing
Reistijd
Krijg inzicht in de bereikbaarheid van dit object vanuit bijvoorbeeld een openbaar vervoer station of vanuit een adres.