Omschrijving
ALGEMEEN
Zelfstandig kantoorgebouw perfect gelegen aan het water en op loopafstand van het treinstation Amersfoort Schothorst.
Het vrijstaande kantoorgebouw is gelegen op het bedrijventerrein “De Hoef”, langs de spoorlijn welke Amersfoort verbindt met het noorden van het land. Het is omstreeks 1996 gerealiseerd.
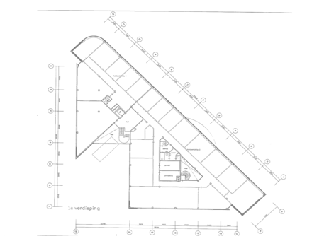
Het gebouw bestaat uit een begane grond en eerste verdieping en is totaal groot circa 1.846 m2. De lange zijde van het gebouw is gesitueerd langs een waterpartij.
De moderne en professionele uitstraling van het gebouw in een groene waterrijke omgeving biedt mogelijkheden voor een mix van zakelijke organisaties of stichtingen en verenigingen. Flexibele indelingsmogelijkheden, zowel open ruimten als traditionele kantoorkamers. Het betreft een erg licht gebouw op mooie plek. Een huurder kan hier echt zijn eigen identiteit kwijt en een zogenaamd ‘clubhuis’ voor zijn organisatie creëren.
Het gebied “De Hoef” is door de gemeente en Provincie aangemerkt als strategisch gebied in Amersfoort-Noord. De gemeente heeft de ambitie om delen van het gebied te transformeren. Diverse kantoorgebouwen zijn inmiddels omgebouwd tot appartement wooneenheden. Er ontstaat daardoor een duurzaam klimaat van wonen, werken en onderwijs. Door de nieuwe ontwikkelingen verwachten wij ook meerdere voorzieningen in het gebied.
BEREIKBAARHEID
Eigen vervoer:
Het kantoorgebouw is met het eigen vervoer goed te bereiken. Het is gelegen op het bedrijventerrein “De Hoef”, in de oksel van het verkeersknooppunt Hoevelaken. Via de verbindingswegen Rondweg-Oost en Outputweg bent u snel op de snelwegen A1, richting Amsterdam of Hengelo, en de A28, richting Utrecht of Zwolle.
Openbaar vervoer:
Ook met het openbaar vervoer is de locatie goed bereikbaar. Het NS-station Schothorst is op circa 600 m loopafstand gelegen zodat er sprake is van een goede ontsluiting met het openbaar vervoer. Bij het station stoppen diverse bussen die een regelmatige dienstregeling onderhouden naar alle delen van de stad Amersfoort.
VLOEROPPERVLAK
Het totaal verhuurbaar vloeroppervlak van het gebouw bedraagt circa 1.845,70 m2 v.v.o., verdeeld als volgt:
- begane grond: circa 961,91 m2 v.v.o.
- 1e verdieping: circa 883,79 m2 v.v.o.
Genoemde metrages gemeten conform NEN 2580.
In overleg is eventueel deelverhuur bespreekbaar. Het gebouw bestaat uit een grote en kleine vleugel waardoor kantoorruimte op maat aangeboden kan worden.
PARKEERGELEGENHEID
Op het eigen parkeerterrein zijn in totaal 34 parkeerplaatsen beschikbaar. Het terrein is omheind. De parkeernorm is 1:54.
OPLEVERINGSNIVEAU
De kantoorruimte wordt opgeleverd in gerenoveerde casco staat met de volgende voorzieningen:
• lift;
• royale entree met schuifdeuren met een tochtsluis;
• bedrijfskantine;
• nieuwe plafondplaten met LED-verlichting;
• te openen ramen;
• alle bouwkundige wanden en het trappenhuis worden wit gesausd;
• de ruimten zijn voorzien van airconditioning;
• huidige kozijnen met deels te openen ramen;
• vernieuwde toiletgroepen inclusief mindervalide toilet;
• douchevoorziening;
• pantry met vaatwasser en koelkast;
• huidige kabelgoten ten behoeve van data en elektra;
• zonwerende coating op de ramen;
• brandblusapparatuur;
• mogelijkheid tot gebruik van het huidige bedrijfsrestaurant;
• dubbele openslaande deuren op de begane grond voor eventuele opslag.
De aansluiting en het verbruik van data- en telecommunicatievoorzieningen zijn niet in de huurprijs begrepen en dienen door de huurder zelf te worden verzorgd en betaald.
ENEGERGIELABEL
Het kantoorgebouw is voorzien van Energielabel A+.
GLASVEZEL
Het kantoorgebouw beschikt over glasvezelinternet. Huurder is zelf verantwoordelijk voor de aanvraag van een glasvezelverbinding bij de provider.
AANVAARDING
In overleg, vanaf 1 maart 2025.
VOORWAARDEN EN CONDITIES
HUURPRIJS
Kantoorruimte:
€ 125,00 per m² per jaar.
Parkeerplaatsen:
€ 600,00 per parkeerplaats per jaar.
Genoemde bedragen te vermeerderen met omzetbelasting.
BTW-HEFFING
Uitgangspunt is btw-belaste verhuur. Derhalve dienen genoemde bedragen te worden vermeerderd met het van toepassing zijnde btw-percentage. Indien een huurder niet aan het 90% criterium voldoet, wordt de overeengekomen kale huurprijs exclusief omzetbelasting verhoogd zodat het voor verhuurder ontstane nadeel wordt gecompenseerd.
HUURTERMIJN
5 (vijf) jaar met een aansluitende verlengingsperiode van 5 (vijf) jaar.
Kortere huurtermijnen zijn bespreekbaar.
HUURBETALING
De huur en het voorschot servicekosten, te vermeerderen met omzetbelasting, per kwartaal vooruit.
HUURPRIJSHERZIENING
Jaarlijks, voor het eerst 1 (één) jaar na huuringangsdatum, op basis van de wijziging van het maandprijsindexcijfer volgens het consumentenprijsindexcijfer (CPI), reeks voor alle huishoudens (2015 = 100), gepubliceerd door het Centraal Bureau voor de Statistiek (CBS).
SERVICEKOSTEN
€ 50,00 per m² per jaar, te vermeerderen met omzetbelasting, als voorschot op basis van nacalculatie, bij vooruitbetaling per kwartaal te voldoen, voor de kosten van de navolgende leveringen en diensten: Let op: alleen bij multi tenant, niet bij single tenant
• gasverbruik inclusief vastrecht, huur meter, opname en transport;
• waterverbruik inclusief vastrecht en opname;
• elektriciteitsverbruik inclusief vastrecht, huur meter, opname en transport;
• kleine reparaties, onderhoud en periodieke controle van o.a.:
- centrale verwarming- en heet water installatie;
- alarminstallatie;
- brandmeldinstallatie;
- onderhoud van toegangsdeuren;
- luchtbehandeling en mechanische ventilatie;
- airco-installatie;
- noodverlichtingsinstallatie;
- brandblusmiddelen;
• glasbewassing buitenzijde;
• dak – en gevelreiniging/onderhoud;
• tuinonderhoud en vervangen van beplanting;
• afvalinzameling;
• schoonmaak algemene ruimten;
• onderhoud bestrating/parkeerterrein;
• assurantiepremie buitenbeglazing;
• 5% administratiekosten over bovenstaande leveringen en diensten.
ZEKERHEIDSTELLING
Een bankgarantie, model ROZ, of waarborgsom ter grootte van drie maanden huurpenningen en servicekosten, te vermeerderen met omzetbelasting.
HUUROVEREENKOMST
De op te stellen huurovereenkomst is conform de overeenkomst die door de Raad voor Onroerende Zaken in februari 2015 is vastgesteld en zoals gehanteerd wordt door de Nederlandse Vereniging van Makelaars NVM met de bijbehorende Algemene Bepalingen.
Zelfstandig kantoorgebouw perfect gelegen aan het water en op loopafstand van het treinstation Amersfoort Schothorst.
Het vrijstaande kantoorgebouw is gelegen op het bedrijventerrein “De Hoef”, langs de spoorlijn welke Amersfoort verbindt met het noorden van het land. Het is omstreeks 1996 gerealiseerd.
Het gebouw bestaat uit een begane grond en eerste verdieping en is totaal groot circa 1.846 m2. De lange zijde van het gebouw is gesitueerd langs een waterpartij.
De moderne en professionele uitstraling van het gebouw in een groene waterrijke omgeving biedt mogelijkheden voor een mix van zakelijke organisaties of stichtingen en verenigingen. Flexibele indelingsmogelijkheden, zowel open ruimten als traditionele kantoorkamers. Het betreft een erg licht gebouw op mooie plek. Een huurder kan hier echt zijn eigen identiteit kwijt en een zogenaamd ‘clubhuis’ voor zijn organisatie creëren.
Het gebied “De Hoef” is door de gemeente en Provincie aangemerkt als strategisch gebied in Amersfoort-Noord. De gemeente heeft de ambitie om delen van het gebied te transformeren. Diverse kantoorgebouwen zijn inmiddels omgebouwd tot appartement wooneenheden. Er ontstaat daardoor een duurzaam klimaat van wonen, werken en onderwijs. Door de nieuwe ontwikkelingen verwachten wij ook meerdere voorzieningen in het gebied.
BEREIKBAARHEID
Eigen vervoer:
Het kantoorgebouw is met het eigen vervoer goed te bereiken. Het is gelegen op het bedrijventerrein “De Hoef”, in de oksel van het verkeersknooppunt Hoevelaken. Via de verbindingswegen Rondweg-Oost en Outputweg bent u snel op de snelwegen A1, richting Amsterdam of Hengelo, en de A28, richting Utrecht of Zwolle.
Openbaar vervoer:
Ook met het openbaar vervoer is de locatie goed bereikbaar. Het NS-station Schothorst is op circa 600 m loopafstand gelegen zodat er sprake is van een goede ontsluiting met het openbaar vervoer. Bij het station stoppen diverse bussen die een regelmatige dienstregeling onderhouden naar alle delen van de stad Amersfoort.
VLOEROPPERVLAK
Het totaal verhuurbaar vloeroppervlak van het gebouw bedraagt circa 1.845,70 m2 v.v.o., verdeeld als volgt:
- begane grond: circa 961,91 m2 v.v.o.
- 1e verdieping: circa 883,79 m2 v.v.o.
Genoemde metrages gemeten conform NEN 2580.
In overleg is eventueel deelverhuur bespreekbaar. Het gebouw bestaat uit een grote en kleine vleugel waardoor kantoorruimte op maat aangeboden kan worden.
PARKEERGELEGENHEID
Op het eigen parkeerterrein zijn in totaal 34 parkeerplaatsen beschikbaar. Het terrein is omheind. De parkeernorm is 1:54.
OPLEVERINGSNIVEAU
De kantoorruimte wordt opgeleverd in gerenoveerde casco staat met de volgende voorzieningen:
• lift;
• royale entree met schuifdeuren met een tochtsluis;
• bedrijfskantine;
• nieuwe plafondplaten met LED-verlichting;
• te openen ramen;
• alle bouwkundige wanden en het trappenhuis worden wit gesausd;
• de ruimten zijn voorzien van airconditioning;
• huidige kozijnen met deels te openen ramen;
• vernieuwde toiletgroepen inclusief mindervalide toilet;
• douchevoorziening;
• pantry met vaatwasser en koelkast;
• huidige kabelgoten ten behoeve van data en elektra;
• zonwerende coating op de ramen;
• brandblusapparatuur;
• mogelijkheid tot gebruik van het huidige bedrijfsrestaurant;
• dubbele openslaande deuren op de begane grond voor eventuele opslag.
De aansluiting en het verbruik van data- en telecommunicatievoorzieningen zijn niet in de huurprijs begrepen en dienen door de huurder zelf te worden verzorgd en betaald.
ENEGERGIELABEL
Het kantoorgebouw is voorzien van Energielabel A+.
GLASVEZEL
Het kantoorgebouw beschikt over glasvezelinternet. Huurder is zelf verantwoordelijk voor de aanvraag van een glasvezelverbinding bij de provider.
AANVAARDING
In overleg, vanaf 1 maart 2025.
VOORWAARDEN EN CONDITIES
HUURPRIJS
Kantoorruimte:
€ 125,00 per m² per jaar.
Parkeerplaatsen:
€ 600,00 per parkeerplaats per jaar.
Genoemde bedragen te vermeerderen met omzetbelasting.
BTW-HEFFING
Uitgangspunt is btw-belaste verhuur. Derhalve dienen genoemde bedragen te worden vermeerderd met het van toepassing zijnde btw-percentage. Indien een huurder niet aan het 90% criterium voldoet, wordt de overeengekomen kale huurprijs exclusief omzetbelasting verhoogd zodat het voor verhuurder ontstane nadeel wordt gecompenseerd.
HUURTERMIJN
5 (vijf) jaar met een aansluitende verlengingsperiode van 5 (vijf) jaar.
Kortere huurtermijnen zijn bespreekbaar.
HUURBETALING
De huur en het voorschot servicekosten, te vermeerderen met omzetbelasting, per kwartaal vooruit.
HUURPRIJSHERZIENING
Jaarlijks, voor het eerst 1 (één) jaar na huuringangsdatum, op basis van de wijziging van het maandprijsindexcijfer volgens het consumentenprijsindexcijfer (CPI), reeks voor alle huishoudens (2015 = 100), gepubliceerd door het Centraal Bureau voor de Statistiek (CBS).
SERVICEKOSTEN
€ 50,00 per m² per jaar, te vermeerderen met omzetbelasting, als voorschot op basis van nacalculatie, bij vooruitbetaling per kwartaal te voldoen, voor de kosten van de navolgende leveringen en diensten: Let op: alleen bij multi tenant, niet bij single tenant
• gasverbruik inclusief vastrecht, huur meter, opname en transport;
• waterverbruik inclusief vastrecht en opname;
• elektriciteitsverbruik inclusief vastrecht, huur meter, opname en transport;
• kleine reparaties, onderhoud en periodieke controle van o.a.:
- centrale verwarming- en heet water installatie;
- alarminstallatie;
- brandmeldinstallatie;
- onderhoud van toegangsdeuren;
- luchtbehandeling en mechanische ventilatie;
- airco-installatie;
- noodverlichtingsinstallatie;
- brandblusmiddelen;
• glasbewassing buitenzijde;
• dak – en gevelreiniging/onderhoud;
• tuinonderhoud en vervangen van beplanting;
• afvalinzameling;
• schoonmaak algemene ruimten;
• onderhoud bestrating/parkeerterrein;
• assurantiepremie buitenbeglazing;
• 5% administratiekosten over bovenstaande leveringen en diensten.
ZEKERHEIDSTELLING
Een bankgarantie, model ROZ, of waarborgsom ter grootte van drie maanden huurpenningen en servicekosten, te vermeerderen met omzetbelasting.
HUUROVEREENKOMST
De op te stellen huurovereenkomst is conform de overeenkomst die door de Raad voor Onroerende Zaken in februari 2015 is vastgesteld en zoals gehanteerd wordt door de Nederlandse Vereniging van Makelaars NVM met de bijbehorende Algemene Bepalingen.
Kaart
Kaart laden...
Kadastrale grens
Bebouwing
Reistijd
Krijg inzicht in de bereikbaarheid van dit object vanuit bijvoorbeeld een openbaar vervoer station of vanuit een adres.