Helderseweg 50 1817 BA Alkmaar
Rental price on request
Description
TE HUUR
Vrijstaande woonboerderij geschikt als woon-/zorgobject
Object
Het object wordt volledig verbouwd en ingericht als moderne woonzorglocatie. De verbouwing moet nog plaatsvinden en zal naar verwachting na de zomer worden afgerond waarna het object gereed is voor ingebruikname. Daarnaast biedt het perceel uitbreidingsmogelijkheden, indien gewenst kan het aantal eenheden in de toekomst worden vergroot door het plaatsen van tiny houses in de grote tuin.
Op basis van de huidige plannen zal het pand worden ingedeeld met 2 woonkamers, 2 keukens, 22 kamers, 6 badkamers en 6 toiletten. De indeling is flexibel: in overleg met de toekomstige huurder kan de plattegrond worden aangepast om optimaal aan te sluiten bij specifieke wensen en zorgconcepten. De huurprijs is dan ook indicatief en afhankelijk van de uiteindelijke verbouwing.
Indeling
Begane grond
- 2 entrees
- 7 kamers (ca. 16–18 m²)
- 2 woonkamers
- 2 keukens
- 2 badkamers
- 1 separaat toilet
- Centrale gang
- Berging
- Technische ruimte
- Opslagruimte
- Trapopgang naar verdiepingen
Eerste verdieping
- 12 kamers (ca. 10–20 m²)
- Centrale overloop
- 3 badkamers
- 2 trapopgangen
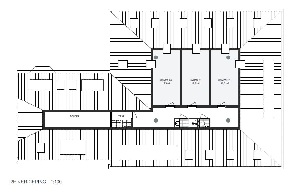
Tweede verdieping
- 3 kamers (ca. 17 m²)
- Sanitaire voorzieningen
- Zolderruimte (opslag / nevenfunctie)
Totaal
- 22 kamers
- 6 badkamers
- 2 woonkamers
- 2 keukens
Parkeren
Op eigen terrein is ruim voldoende parkeergelegenheid aanwezig.
Locatie en omgeving
De Helderseweg is een belangrijke uitvalsweg van Alkmaar en bevindt zich langs het Noordhollands Kanaal, op korte afstand van het stadscentrum. Voorzieningen zoals winkels, horeca en zorgfaciliteiten bevinden zich in de directe omgeving. De bereikbaarheid is uitstekend, zowel met de auto via de ringweg als met het openbaar vervoer.
Vrijstaande woonboerderij geschikt als woon-/zorgobject
Object
Het object wordt volledig verbouwd en ingericht als moderne woonzorglocatie. De verbouwing moet nog plaatsvinden en zal naar verwachting na de zomer worden afgerond waarna het object gereed is voor ingebruikname. Daarnaast biedt het perceel uitbreidingsmogelijkheden, indien gewenst kan het aantal eenheden in de toekomst worden vergroot door het plaatsen van tiny houses in de grote tuin.
Op basis van de huidige plannen zal het pand worden ingedeeld met 2 woonkamers, 2 keukens, 22 kamers, 6 badkamers en 6 toiletten. De indeling is flexibel: in overleg met de toekomstige huurder kan de plattegrond worden aangepast om optimaal aan te sluiten bij specifieke wensen en zorgconcepten. De huurprijs is dan ook indicatief en afhankelijk van de uiteindelijke verbouwing.
Indeling
Begane grond
- 2 entrees
- 7 kamers (ca. 16–18 m²)
- 2 woonkamers
- 2 keukens
- 2 badkamers
- 1 separaat toilet
- Centrale gang
- Berging
- Technische ruimte
- Opslagruimte
- Trapopgang naar verdiepingen
Eerste verdieping
- 12 kamers (ca. 10–20 m²)
- Centrale overloop
- 3 badkamers
- 2 trapopgangen
Tweede verdieping
- 3 kamers (ca. 17 m²)
- Sanitaire voorzieningen
- Zolderruimte (opslag / nevenfunctie)
Totaal
- 22 kamers
- 6 badkamers
- 2 woonkamers
- 2 keukens
Parkeren
Op eigen terrein is ruim voldoende parkeergelegenheid aanwezig.
Locatie en omgeving
De Helderseweg is een belangrijke uitvalsweg van Alkmaar en bevindt zich langs het Noordhollands Kanaal, op korte afstand van het stadscentrum. Voorzieningen zoals winkels, horeca en zorgfaciliteiten bevinden zich in de directe omgeving. De bereikbaarheid is uitstekend, zowel met de auto via de ringweg als met het openbaar vervoer.
Features
Transfer of ownership
- Rental price
- Rental price on request
- Listed since
-
- Status
- Available
- Acceptance
- Available in consultation
Construction
- Main use
- Health care institution
- Building type
- Resale property
- Year of construction
- 1927
Surface areas
- Area
- 703 m²
- Plot size
- 1,380 m²
Energy
- Energy label
- G
Surroundings
- Location
- Business park and on navigable waterway
- Accessibility
- Bus stop in 500 m to 1000 m, Dutch Railways Intercity station in 1000 m to 1500 m and motorway exit in 5000 m or more
NVM real estate agent
Photos