Klaasstraat 9 5911 JM Venlo
€ 2,450 p/mo.
Description
Locatie
De winkelruimte is gelegen in de Klaasstraat, een karaktervolle en sfeervolle winkelstraat in het hart van de binnenstad van Venlo. De straat vormt een levendige verbinding tussen de Vleesstraat en de Parade en maakt deel uit van het kernwinkelgebied van Venlo. De Klaasstraat biedt een aantrekkelijk aanbod van lokale speciaalzaken en boetieks die samen een unieke winkelbeleving vormen. Denk aan schoenen en mode bij Cuplé en Carrièra Damesmode, cadeau? en interieurwinkels zoals Heerlijck Thuis en Kado in Huis, culinaire speciaalzaken zoals Vijg & Olijf en Rousseau Chocolade, optiek bij XIE Eyewear, (tweedehands) boetieks zoals Well Trade Venlo, plus andere ondernemingen en service gerichte voorzieningen die bijdragen aan een divers en levendig straatbeeld.
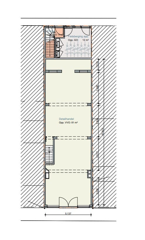
Object
De aangeboden winkelruimte beschikt over een oppervlakte van 81 m² op de begane grond, met daarnaast circa 25 m² opslagruimte in de kelder. De winkelruimte is uitgerust met een moderne en aantrekkelijke pui, wat zorgt voor een hoge attentiewaarde en zichtbaarheid in deze drukbezochte straat. Dit maakt de locatie bijzonder geschikt voor een breed scala aan detailhandel, dienstverlening of conceptstores.
Parkeren
In de directe omgeving zijn voldoende (betaalde) parkeerplaatsen beschikbaar, waardoor klanten de winkelruimte eenvoudig kunnen bereiken.
Aanvaarding
De winkelruimte is in overleg beschikbaar.
De winkelruimte is gelegen in de Klaasstraat, een karaktervolle en sfeervolle winkelstraat in het hart van de binnenstad van Venlo. De straat vormt een levendige verbinding tussen de Vleesstraat en de Parade en maakt deel uit van het kernwinkelgebied van Venlo. De Klaasstraat biedt een aantrekkelijk aanbod van lokale speciaalzaken en boetieks die samen een unieke winkelbeleving vormen. Denk aan schoenen en mode bij Cuplé en Carrièra Damesmode, cadeau? en interieurwinkels zoals Heerlijck Thuis en Kado in Huis, culinaire speciaalzaken zoals Vijg & Olijf en Rousseau Chocolade, optiek bij XIE Eyewear, (tweedehands) boetieks zoals Well Trade Venlo, plus andere ondernemingen en service gerichte voorzieningen die bijdragen aan een divers en levendig straatbeeld.
Object
De aangeboden winkelruimte beschikt over een oppervlakte van 81 m² op de begane grond, met daarnaast circa 25 m² opslagruimte in de kelder. De winkelruimte is uitgerust met een moderne en aantrekkelijke pui, wat zorgt voor een hoge attentiewaarde en zichtbaarheid in deze drukbezochte straat. Dit maakt de locatie bijzonder geschikt voor een breed scala aan detailhandel, dienstverlening of conceptstores.
Parkeren
In de directe omgeving zijn voldoende (betaalde) parkeerplaatsen beschikbaar, waardoor klanten de winkelruimte eenvoudig kunnen bereiken.
Aanvaarding
De winkelruimte is in overleg beschikbaar.
Features
Transfer of ownership
- Rental price
- € 2,450 per month
- Listed since
-
- Status
- Available
- Acceptance
- Available on 5/1/2026
Construction
- Main use
- Retail outlet with showroom
- Building type
- Resale property
- Construction period
- 1945-1959
Surface areas
- Area
- 81 m²
- Sales floor area
- 81 m²
- Front width
- 5 m
Layout
- Number of floors
- 1 floor
Energy
- Energy label
- Not available
Surroundings
- Location
- Town center
- Accessibility
- Bus stop in less than 500 m, Dutch Railways Intercity station in less than 500 m and motorway exit in 2000 m to 3000 m
- Shopkeepers' association contribution
- No
- Socio-economic classification
- A1
NVM real estate agent
Photos