Lichtenauerlaan 80 3062 ME Rotterdam
€ 185 /m²/year
Description
De Lichtenauerlaan 80 is gebouwd in 1999 en betreft tot voorheen het hoofdkantoor van projectontwikkelaar Blauwhoed en is inmiddels als Multi-Tenant kantoorgebouw ingericht. Het object is gelegen op het Brainpark in Rotterdam, een kantorenpark gelegen tussen de Erasmus Universiteit en de A16. Dit maakt de locatie een prachtige zichtlocatie.
Brainpark II maakt deel uit van de Oostflank van Rotterdam. Door deze ligging is het gebied goed bereikbaar met de auto. Brainpark II kenmerkt zich doordat het gebied in een parkachtige setting is gebouwd. Hierdoor wordt veel groen afgewisseld met twaalf onder architectuur gebouwde kantoorgebouwen.
Op het Brainpark II bevinden zich meerdere kleinschalige kantoorgebouwen. Lichtenauerlaan 80 is een van deze kantoorgebouwen en beschikt totaal over een oppervlakte van ca. 3.340 m² v.v.o. verdeeld over 6 verdiepingen.
BEREIKBAARHEID
Brainpark II is direct gelegen aan het bus-/metrostation Kralingse Zoom met directe verbindingen tussen Rotterdam Alexander, het centrum van Rotterdam en de omliggende gemeenten. Daarnaast ligt het gebouw direct aan de A16. Hierdoor is het een uitermate goed zichtlocatie en door de ligging ten opzichte van de uitvalswegen zeer goed bereikbaar.
AUTO
Het gebouw is uitstekend bereikbaar met de auto. Vanaf de rijksweg A16 bent u via de afrit Rotterdam Kralingen of Centrum binnen enkele minuten op kantoor.
OPENBAAR VERVOER
Zoals eerder vermeld is op een afstand van 10 minuten lopen het bus-/metrostation Rotterdam Kralingse Zoom gelegen, die een directe verbinding heeft met het centrum, met Station Blaak, Beurs en Centraal Station op enkele reisminuten afstand. Tevens zijn de omliggende gemeenten goed bereikbaar met de metro.
HUURINFORMATIE
OPPERVLAKTE
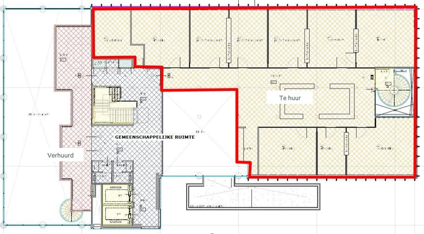
Een totaal van ca. 478 m² v.v.o. kantoorruimte is voor verhuur beschikbaar, verdeeld als volgt:
begane grond: 73,8 m² v.v.o. kantoorruimte met 2 parkeerplaatsen;
1e verdieping: 404,2 m² v.v.o. kantoorruimte met 8 parkeerplaatsen.
OPLEVERINGSNIVEAU
De algemene ruimte op de begane grond wordt eind 2025 gerenoveerd opgeleverd conform de impressies (zie einde fotoserie).
De kantoorruimte wordt Turn-Key, in huidige staat, inclusief inbouwpakket opgeleverd met onder andere de volgende elementen:
- Ruime algemene entree met ingerichte wachtruimte;
- hoge bouwkundige plafonds voorzien van "klimaateilanden" en hangende LED verlichtingsarmaturen;
- tapijttegels;
- scheidingswanden, gedeeltelijk voorzien van vaste kastenwanden;
- wandkabelgoten ten behoeve van data, elektra en telefonie;
- mechanisch ventilatiesysteem voorzien van topkoeling;
- pantry.
- brandmeld- /ontruimingsinstallatie;
HUURPRIJS
€ 185,- per m² v.v.o. per jaar, te vermeerderen met BTW en servicekosten.
PARKEREN
€ 1.100,- per plaats per jaar, exclusief BTW.
SERVICEKOSTEN
€ 80,- per m² v.v.o. per jaar, te vermeerderen met BTW.
BTW
Over de huurprijs zal BTW in rekening worden gebracht. Indien BTW niet in rekening kan worden gebracht, geldt een ander te bepalen opslag op bovengenoemde huurprijzen.
BETALING
Per kwartaal vooruit.
INDEXERING
Jaarlijks, op basis van het Consumenten Prijsindexcijfer (CPI) reeks Alle Huishoudens (2015=100), voor het eerst 1 jaar na de huuringangsdatum.
HUURPERIODE
5 jaar
BESCHIKBAAR
Per direct.
HUUROVEREENKOMST
Standaard ROZ huurovereenkomst, model februari 2015.
BANKGARANTIE
Een bankgarantie ter grootte van 3 maanden huur vermeerderd met servicekosten en BTW dient gesteld en afgegeven te worden door een erkende Nederlandse bankinstelling.
ENERGIELABEL
Energielabel A
Brainpark II maakt deel uit van de Oostflank van Rotterdam. Door deze ligging is het gebied goed bereikbaar met de auto. Brainpark II kenmerkt zich doordat het gebied in een parkachtige setting is gebouwd. Hierdoor wordt veel groen afgewisseld met twaalf onder architectuur gebouwde kantoorgebouwen.
Op het Brainpark II bevinden zich meerdere kleinschalige kantoorgebouwen. Lichtenauerlaan 80 is een van deze kantoorgebouwen en beschikt totaal over een oppervlakte van ca. 3.340 m² v.v.o. verdeeld over 6 verdiepingen.
BEREIKBAARHEID
Brainpark II is direct gelegen aan het bus-/metrostation Kralingse Zoom met directe verbindingen tussen Rotterdam Alexander, het centrum van Rotterdam en de omliggende gemeenten. Daarnaast ligt het gebouw direct aan de A16. Hierdoor is het een uitermate goed zichtlocatie en door de ligging ten opzichte van de uitvalswegen zeer goed bereikbaar.
AUTO
Het gebouw is uitstekend bereikbaar met de auto. Vanaf de rijksweg A16 bent u via de afrit Rotterdam Kralingen of Centrum binnen enkele minuten op kantoor.
OPENBAAR VERVOER
Zoals eerder vermeld is op een afstand van 10 minuten lopen het bus-/metrostation Rotterdam Kralingse Zoom gelegen, die een directe verbinding heeft met het centrum, met Station Blaak, Beurs en Centraal Station op enkele reisminuten afstand. Tevens zijn de omliggende gemeenten goed bereikbaar met de metro.
HUURINFORMATIE
OPPERVLAKTE
Een totaal van ca. 478 m² v.v.o. kantoorruimte is voor verhuur beschikbaar, verdeeld als volgt:
begane grond: 73,8 m² v.v.o. kantoorruimte met 2 parkeerplaatsen;
1e verdieping: 404,2 m² v.v.o. kantoorruimte met 8 parkeerplaatsen.
OPLEVERINGSNIVEAU
De algemene ruimte op de begane grond wordt eind 2025 gerenoveerd opgeleverd conform de impressies (zie einde fotoserie).
De kantoorruimte wordt Turn-Key, in huidige staat, inclusief inbouwpakket opgeleverd met onder andere de volgende elementen:
- Ruime algemene entree met ingerichte wachtruimte;
- hoge bouwkundige plafonds voorzien van "klimaateilanden" en hangende LED verlichtingsarmaturen;
- tapijttegels;
- scheidingswanden, gedeeltelijk voorzien van vaste kastenwanden;
- wandkabelgoten ten behoeve van data, elektra en telefonie;
- mechanisch ventilatiesysteem voorzien van topkoeling;
- pantry.
- brandmeld- /ontruimingsinstallatie;
HUURPRIJS
€ 185,- per m² v.v.o. per jaar, te vermeerderen met BTW en servicekosten.
PARKEREN
€ 1.100,- per plaats per jaar, exclusief BTW.
SERVICEKOSTEN
€ 80,- per m² v.v.o. per jaar, te vermeerderen met BTW.
BTW
Over de huurprijs zal BTW in rekening worden gebracht. Indien BTW niet in rekening kan worden gebracht, geldt een ander te bepalen opslag op bovengenoemde huurprijzen.
BETALING
Per kwartaal vooruit.
INDEXERING
Jaarlijks, op basis van het Consumenten Prijsindexcijfer (CPI) reeks Alle Huishoudens (2015=100), voor het eerst 1 jaar na de huuringangsdatum.
HUURPERIODE
5 jaar
BESCHIKBAAR
Per direct.
HUUROVEREENKOMST
Standaard ROZ huurovereenkomst, model februari 2015.
BANKGARANTIE
Een bankgarantie ter grootte van 3 maanden huur vermeerderd met servicekosten en BTW dient gesteld en afgegeven te worden door een erkende Nederlandse bankinstelling.
ENERGIELABEL
Energielabel A
Features
Transfer of ownership
- Rental price
- € 185 per square meter per year
- Service charges
- € 80 per square meter per year (21% VAT applies)
- Listed since
-
- Status
- Available
- Acceptance
- Available immediately
Construction
- Main use
- Office
- Building type
- Resale property
- Year of construction
- 1999
Surface areas
- Area
- 478 m²
Layout
- Number of floors
- 6 floors
- Facilities
- Peak cooling, built-in fittings, elevators, cable ducts, modular ceiling, toilet, pantry, heating and room layout
Energy
- Energy label
- A
Photos