Papaverstraat 44 7572 AR Oldenzaal
€ 20,700 /yr
€ 350,000 k.k.
Description
Gelegen aan de rand van het centrum van Oldenzaal, tegenover de velden van Quick '20 en slechts 5 autominuten verwijderd van de snelweg A1, bieden wij u dit representatieve kantoorpand van ca. 130 m2 aan voor de VERKOOP/VERHUUR. Naast kantoorruimte is dit object uitermate geschikt voor o.a. cursusruimte, vergaderruimte of presentatieruimte.
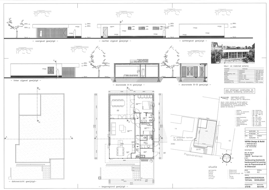
Daarnaast bestaat er - afhankelijk van de geldende bestemmingsplanregels en benodigde vergunningen - mogelijk de optie om het bestaande kantoorpand te verbouwen tot een woning. Ter illustratie van de mogelijkheden is een impressie-bouwtekening toegevoegd, waarin een mogelijke indeling bij transformatie naar woonruimte is weergegeven.
Oppervlakte en indeling:
De totale verkoop-/verhuurbare oppervlakte van het onderhavige object bedraagt ca. 130 m2* en is als volgt onderverdeeld;
Entree, hal met meterkast en 2 toiletruimtes, nette inbouwkeuken met diverse apparatuur, een royale kantoorruimte met brede etalage aan de voorzijde. Het pand beschikt aan de achterzijde over een tweede riante kantoor-,/spreek-,/vergader-,/cursusruimte v.v. veel privacy. Daarnaast beschikt deze tweede ruimte over een eigen, separate, toiletruimte en een achtergelegen berging alwaar zich de C.V.-opstelling bevindt. De beide kantoorruimtes zijn afsluitbaar en voorzien van vaste (schuif)kasten. Door de grote raampartijen aan de voorzijde en de riante lichtkoepels aan de achterzijde is het pand voorzien van veel daglicht.
* De oppervlakten zijn gemeten door verkopend/verhurend makelaar uit een kopie bouwtekening. De opgegeven metrage is derhalve indicatief; er kunnen geen rechten aan worden ontleend noch kan er sprake zijn van enige verrekening achteraf.
Voorzieningen:
Het object zal worden opgeleverd met o.a. de volgende voorzieningen:
- Systeemplafond v.v. verlichtingsarmaturen;
- Vloerbedekking;
- CV ketel;
- 13 zonnepanelen;
- Airconditioning;
- Keuken;
- Toiletruimte (3 stuks);
- Kabelgoten;
- Jaloezieën (ter overname van de huidige huurder).
Locatie:
Het object is gelegen op een goede locatie in een woonwijk aan de rand van het centrum van Oldenzaal. In de omgeving bevinden zich voornamelijk woningen alsmede de speelvelden van Quick '20 en Sportcentrum Vondersweijde.
Bereikbaarheid/parkeergelegenheid:
Het object is uitstekend bereikbaar; zowel te voet, per fiets als per auto. Rondom het object zijn voldoende parkeerplaatsen beschikbaar voor eigen gebruik en/of voor gebruik door klanten (vrij parkeren). De belangrijke ontsluitingswegen naar omliggende plaatsen en de Rijksweg A1 zijn in een paar autominuten bereikbaar.
Bestemmingsplan:
Op de locatie geldt het bestemmingsplan "Herziening Glinde Hooiland 2014" met als enkelbestemming "Kantoor" (zie brochure). Voor nadere informatie kunt u zich melden bij de publieksbalie van de gemeente Oldenzaal.
Vraagprijs:
€ 350.000,- k.k.
Huurprijs:
€ 1.725,- per maand te vermeerderen met BTW en excl. G/W/E.
Huurtermijn:
In overleg te bepalen, doch bij voorkeur een langere huurperiode.
Zekerheidsstelling koop:
Bankgarantie of waarborgsom ter grootte van 10% van de koopsom, af te geven aan of te storten bij de notaris.
Zekerheidsstelling huur:
Doorlopende bankgarantie of waarborgsom ter grootte van 3 maanden huur.
Aanvaarding:
In overleg.
Indexering:
Jaarlijks, voor het eerst één jaar na huuringangsdatum, op basis van de wijziging van het maandprijsindexcijfer volgens de consumentenprijsindex (CPI), reeks CPI - Alle huishoudens (2015=100), gepubliceerd door het Centraal Bureau voor de Statistiek (CBS). De huurprijs zal nimmer minder bedragen dan de huurprijs van het voorafgaande jaar.
Wij denken graag met u mee. Maak een afspraak om ter plaatse te gaan kijken en om de verdere mogelijkheden te bespreken!
Disclaimer
De informatie is door ons met de nodige zorgvuldigheid samengesteld, echter aan de inhoud hiervan kunnen geen rechten worden ontleend. Alle opgegeven maten en oppervlakten zijn indicatief, kunnen afwijken van de werkelijke situatie en zijn uitsluitend bedoeld om een indruk te geven van de indeling. Onzerzijds wordt geen enkele aansprakelijkheid aanvaard voor enige onvolledigheid, onjuistheid of anderszins, dan wel de gevolgen daarvan.
Daarnaast bestaat er - afhankelijk van de geldende bestemmingsplanregels en benodigde vergunningen - mogelijk de optie om het bestaande kantoorpand te verbouwen tot een woning. Ter illustratie van de mogelijkheden is een impressie-bouwtekening toegevoegd, waarin een mogelijke indeling bij transformatie naar woonruimte is weergegeven.
Oppervlakte en indeling:
De totale verkoop-/verhuurbare oppervlakte van het onderhavige object bedraagt ca. 130 m2* en is als volgt onderverdeeld;
Entree, hal met meterkast en 2 toiletruimtes, nette inbouwkeuken met diverse apparatuur, een royale kantoorruimte met brede etalage aan de voorzijde. Het pand beschikt aan de achterzijde over een tweede riante kantoor-,/spreek-,/vergader-,/cursusruimte v.v. veel privacy. Daarnaast beschikt deze tweede ruimte over een eigen, separate, toiletruimte en een achtergelegen berging alwaar zich de C.V.-opstelling bevindt. De beide kantoorruimtes zijn afsluitbaar en voorzien van vaste (schuif)kasten. Door de grote raampartijen aan de voorzijde en de riante lichtkoepels aan de achterzijde is het pand voorzien van veel daglicht.
* De oppervlakten zijn gemeten door verkopend/verhurend makelaar uit een kopie bouwtekening. De opgegeven metrage is derhalve indicatief; er kunnen geen rechten aan worden ontleend noch kan er sprake zijn van enige verrekening achteraf.
Voorzieningen:
Het object zal worden opgeleverd met o.a. de volgende voorzieningen:
- Systeemplafond v.v. verlichtingsarmaturen;
- Vloerbedekking;
- CV ketel;
- 13 zonnepanelen;
- Airconditioning;
- Keuken;
- Toiletruimte (3 stuks);
- Kabelgoten;
- Jaloezieën (ter overname van de huidige huurder).
Locatie:
Het object is gelegen op een goede locatie in een woonwijk aan de rand van het centrum van Oldenzaal. In de omgeving bevinden zich voornamelijk woningen alsmede de speelvelden van Quick '20 en Sportcentrum Vondersweijde.
Bereikbaarheid/parkeergelegenheid:
Het object is uitstekend bereikbaar; zowel te voet, per fiets als per auto. Rondom het object zijn voldoende parkeerplaatsen beschikbaar voor eigen gebruik en/of voor gebruik door klanten (vrij parkeren). De belangrijke ontsluitingswegen naar omliggende plaatsen en de Rijksweg A1 zijn in een paar autominuten bereikbaar.
Bestemmingsplan:
Op de locatie geldt het bestemmingsplan "Herziening Glinde Hooiland 2014" met als enkelbestemming "Kantoor" (zie brochure). Voor nadere informatie kunt u zich melden bij de publieksbalie van de gemeente Oldenzaal.
Vraagprijs:
€ 350.000,- k.k.
Huurprijs:
€ 1.725,- per maand te vermeerderen met BTW en excl. G/W/E.
Huurtermijn:
In overleg te bepalen, doch bij voorkeur een langere huurperiode.
Zekerheidsstelling koop:
Bankgarantie of waarborgsom ter grootte van 10% van de koopsom, af te geven aan of te storten bij de notaris.
Zekerheidsstelling huur:
Doorlopende bankgarantie of waarborgsom ter grootte van 3 maanden huur.
Aanvaarding:
In overleg.
Indexering:
Jaarlijks, voor het eerst één jaar na huuringangsdatum, op basis van de wijziging van het maandprijsindexcijfer volgens de consumentenprijsindex (CPI), reeks CPI - Alle huishoudens (2015=100), gepubliceerd door het Centraal Bureau voor de Statistiek (CBS). De huurprijs zal nimmer minder bedragen dan de huurprijs van het voorafgaande jaar.
Wij denken graag met u mee. Maak een afspraak om ter plaatse te gaan kijken en om de verdere mogelijkheden te bespreken!
Disclaimer
De informatie is door ons met de nodige zorgvuldigheid samengesteld, echter aan de inhoud hiervan kunnen geen rechten worden ontleend. Alle opgegeven maten en oppervlakten zijn indicatief, kunnen afwijken van de werkelijke situatie en zijn uitsluitend bedoeld om een indruk te geven van de indeling. Onzerzijds wordt geen enkele aansprakelijkheid aanvaard voor enige onvolledigheid, onjuistheid of anderszins, dan wel de gevolgen daarvan.
Features
Transfer of ownership
- Asking price
- € 350,000 kosten koper
- Rental price
- € 20,700 per year
- Service charges
- No service charges known
- Listed since
-
- Status
- Available
- Acceptance
- Available in consultation
Construction
- Main use
- Office
- Building type
- Resale property
- Year of construction
- 1989
Surface areas
- Area
- 130 m²
- Plot size
- 215 m²
Layout
- Number of floors
- 1 floor
- Facilities
- Air conditioning, built-in fittings, windows can be opened, cable ducts, modular ceiling, toilet, pantry and heating
Energy
- Energy label
- C 1.30
Surroundings
- Location
- In residential district
- Accessibility
- Bus stop in less than 500 m, Dutch Railways Intercity station in 1500 m to 2000 m and motorway exit in 1000 m to 1500 m
NVM real estate agent
Photos
Floorplan
Begane Grond