Snoekweg 22 4941 SC Raamsdonksveer
€ 849,000 k.k.
Description
Snoekweg 18-26, Raamsdonksveer
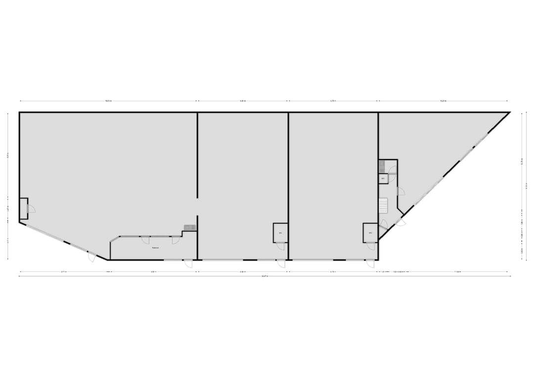
Bedrijfscomplex in deels verhuurde staat met een oppervlakte van 835 m² verdeeld over verschillende bedrijfsruimten voorzien van sanitair en overige aanhorigheden gelegen op 1.660 m² grond.
Situering
Het bedrijfspand is gelegen aan Snoekweg 18-26 te Raamsdonksveer op het bedrijventerrein “Dombosch“. Het bedrijventerrein is een dynamische en vitale locatie
die een belangrijke rol speelt in de economische infrastructuur van de regio. Een diversiteit aan bedrijven is gevestigd op het terrein, variërend van kleine en middelgrote ondernemingen tot grotere industriële spelers.
Het bedrijventerrein is strategisch gelegen nabij de A27 en de A59, wat zorgt voor goede bereikbaarheid per weg. Het centrum van zowel Geertruidenberg als
Raamsdonksveer is op korte afstand gelegen.
Opleveringsniveau
Snoekweg 18
Begane grond:
- Oppervlakte ca. 98 m²
- Glad afgewerkte betonvloer
- Handmatige overheaddeur
- Pantry
- Toilet
- Verhuurd
Eerste verdieping:
- Oppervlakte ca. 62 m²
- Kantoorfunctie
- Verhuurd
Snoekweg 20:
- Oppervlakte ca. 165 m²
- Glad afgewerkte betonvloer
- Handmatige overheaddeur
- Toilet
- Verhuurd
Snoekweg 22:
- Oppervlakte ca. 165 m²
- Glad afgewerkte betonvloer
- Handmatige overheaddeur
- Toilet
Snoekweg 24-26:
- Oppervlakte ca. 309 m²
- Glad afgewerkte betonvloer
- Handmatige overheaddeur
- Krachtstroomaansluitingen
- Kantoorruimte
- Gasheater
- Pantry
Buitenterrein:
- Oppervlakte ca. 909 m²
- Verhard middels klinkers
- Afgesloten middels ijzeren hekwerk
Opleveringsniveau algemeen
Bedrijfshal:
- Gemetselde plint
- Opgetrokken in staalconstructie met panelen
- Bitumineus gedekt
- Vlak afgewerkte betonvloer
Algemeen:
- Bouwjaar 1996
- Stroomvoorziening 3 x 25 ampère (per huisnummer)
- Afgesloten verhard buitenterrein
Bestemmingsplan
Het object valt binnen het bestemmingsplan van de Gemeente Geertruidenberg “Dombosch” met de bestemming “Bedrijventerrein’ en de functieaanduiding
“bedrijf tot en met categorie 4.2“.
Vraagprijs: € 849.000,- k.k.
Oplevering: In overleg.
Deze informatieverstrekking geschiedt geheel vrijblijvend en onder voorbehoud van tussentijdse verhuur c.q. wijzigingen.
Voor nadere informatie en/ of een afspraak voor een bezichtiging kunt u te allen tijde contact opnemen.
Bedrijfscomplex in deels verhuurde staat met een oppervlakte van 835 m² verdeeld over verschillende bedrijfsruimten voorzien van sanitair en overige aanhorigheden gelegen op 1.660 m² grond.
Situering
Het bedrijfspand is gelegen aan Snoekweg 18-26 te Raamsdonksveer op het bedrijventerrein “Dombosch“. Het bedrijventerrein is een dynamische en vitale locatie
die een belangrijke rol speelt in de economische infrastructuur van de regio. Een diversiteit aan bedrijven is gevestigd op het terrein, variërend van kleine en middelgrote ondernemingen tot grotere industriële spelers.
Het bedrijventerrein is strategisch gelegen nabij de A27 en de A59, wat zorgt voor goede bereikbaarheid per weg. Het centrum van zowel Geertruidenberg als
Raamsdonksveer is op korte afstand gelegen.
Opleveringsniveau
Snoekweg 18
Begane grond:
- Oppervlakte ca. 98 m²
- Glad afgewerkte betonvloer
- Handmatige overheaddeur
- Pantry
- Toilet
- Verhuurd
Eerste verdieping:
- Oppervlakte ca. 62 m²
- Kantoorfunctie
- Verhuurd
Snoekweg 20:
- Oppervlakte ca. 165 m²
- Glad afgewerkte betonvloer
- Handmatige overheaddeur
- Toilet
- Verhuurd
Snoekweg 22:
- Oppervlakte ca. 165 m²
- Glad afgewerkte betonvloer
- Handmatige overheaddeur
- Toilet
Snoekweg 24-26:
- Oppervlakte ca. 309 m²
- Glad afgewerkte betonvloer
- Handmatige overheaddeur
- Krachtstroomaansluitingen
- Kantoorruimte
- Gasheater
- Pantry
Buitenterrein:
- Oppervlakte ca. 909 m²
- Verhard middels klinkers
- Afgesloten middels ijzeren hekwerk
Opleveringsniveau algemeen
Bedrijfshal:
- Gemetselde plint
- Opgetrokken in staalconstructie met panelen
- Bitumineus gedekt
- Vlak afgewerkte betonvloer
Algemeen:
- Bouwjaar 1996
- Stroomvoorziening 3 x 25 ampère (per huisnummer)
- Afgesloten verhard buitenterrein
Bestemmingsplan
Het object valt binnen het bestemmingsplan van de Gemeente Geertruidenberg “Dombosch” met de bestemming “Bedrijventerrein’ en de functieaanduiding
“bedrijf tot en met categorie 4.2“.
Vraagprijs: € 849.000,- k.k.
Oplevering: In overleg.
Deze informatieverstrekking geschiedt geheel vrijblijvend en onder voorbehoud van tussentijdse verhuur c.q. wijzigingen.
Voor nadere informatie en/ of een afspraak voor een bezichtiging kunt u te allen tijde contact opnemen.
Features
Transfer of ownership
- Asking price
- € 849,000 kosten koper
- Listed since
-
- Status
- Available
- Acceptance
- Available in consultation
Construction
- Main use
- Industrial unit
- Building type
- Resale property
- Year of construction
- 1996
Surface areas
- Area
- 835 m² (units from 737 m²)
- Industrial unit area
- 737 m²
- Area of site
- 909 m²
- Office area
- 98 m²
- Clearance
- 5 m
- Clear span
- 19 m
- Plot size
- 1,660 m²
Layout
- Number of floors
- 1 floor
- Facilities
- Overhead doors, three-phase electric power, concrete floor, heater, toilet and pantry
Energy
- Energy label
- Not available
Surroundings
- Location
- Business park
- Accessibility
- Bus stop in 500 m to 1000 m, bus junction in 500 m to 1000 m, subway station in 5000 m or more, subway junction in 5000 m or more, Dutch Railways Intercity station in 5000 m or more, motorway exit in 500 m to 1000 m, Tram stop in 5000 m or more and tram junction in 5000 m or more
- Local facilities
- Bank in 5000 m or more, recreation in 4000 m to 5000 m, restaurant in 2000 m to 3000 m and retail outlet in 2000 m to 3000 m
Real estate agent
Photos