Jan Flamelingstrjitte 14-J 9036 VM Menaam
€ 495 p/mo.
Description
Deze nieuwgebouwde, representatieve unit ligt aan de rand van een kleinschalig, goed bereikbaar bedrijventerrein in Menaam en heeft een totaal vloeroppervlakte van 52 + 27 m². De unit ligt gunstig op de hoek aan de straat-/zichtzijde, en heeft daglicht beneden en boven. De definitieve oplevering is naar verwachting uiterlijk maart 2026. Er komt een verdiepingsvloer in, een toilet en een keukentje, waardoor de unit niet alleen als opslagruimte kan dienen, maar waar straks ook prima een kantoorruimte boven gerealiseerd kan worden, om vanuit hier te werken. Het geheel wordt uitgevoerd in hoogwaardige materialen en heeft een moderne uitstraling. De toegang is middels een overheaddeur en een aparte loopdeur. De unit wordt voorzien van eigen nutsvoorzieningen.
Specificaties
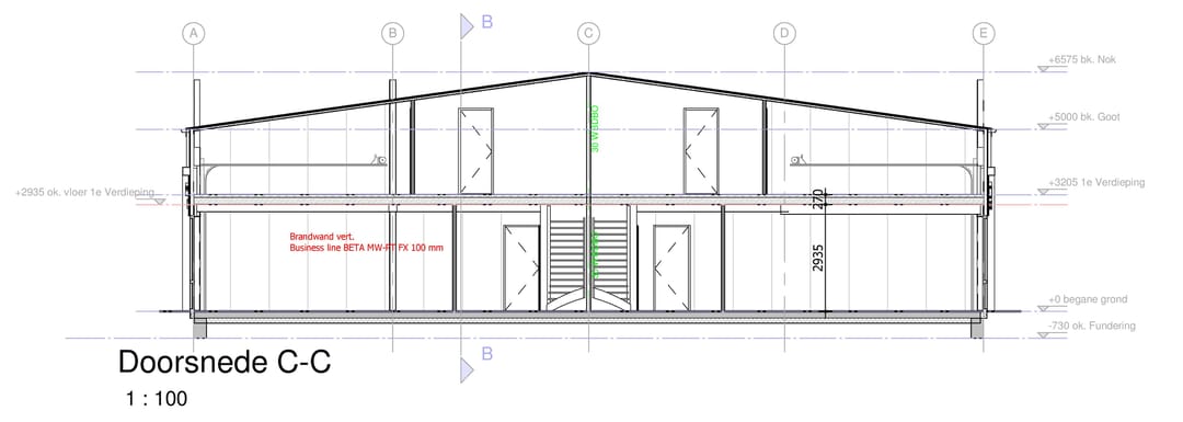
- Oppervlakte begane grond: ca. 52 m²;
- Oppervlakte entresolvloer: ca. 27 m²;
- Vrije hoogte: ca. 5,5 m¹ (onder 3 m¹ en boven 2,5 m¹);
- Constructie: geïsoleerde gevlinderde betonvloer (200 mm dik, tot 1000 kg/m² belastbaar);
- Isolatie: hoogwaardige dak- en wandbeplating (PIR gevuld);
- Voorzieningen: eigen stroomaansluiting (3 x 25A) en wateraansluiting.
Verhuurcondities
- Huurprijs: € 495,- per maand, excl. BTW, excl. nutsvoorzieningen;
- Huurtermijn: minimaal 12 maanden;
- Waarborgsom ter hoogte van 2 maanden huur;
- Huurovereenkomst overeenkomstig ROZ model.
Beschikbaarheid: medio eerste kwartaal 2026 (nog in afwachting van de oplevering van de nutsvoorzieningen).
Bestemming
Bestemmingsplan Menaam - bedrijventerrein Noord fase 2 (cat. 1 en 2).
Ligging
De bedrijfsunit is gelegen op een kleinschalig en goed bereikbaar bedrijventerrein aan de rand van Menaam, op korte afstand van Leeuwarden en met goede verbindingen richting de A31 en N383.
Menaam is een middelgroot dorp, goed bereikbaar vanaf de A31 (Leeuwarden - Afsluitdijk), levendig, met een actieve dorpsbewoners en een dito verenigingsleven, een supermarkt, diverse bedrijven en winkels, lagere scholen en kinderopvang. Het bedrijventerrein ligt aan de rand van het dorp, is prima te bereiken, is representatief en biedt ruimte aan de verschillende bedrijven.
Deze informatie is door ons met de nodige zorgvuldigheid samengesteld, en is geheel vrijblijvend. Onzerzijds wordt echter geen enkele aansprakelijkheid aanvaard voor enige onvolledigheid, onjuistheid of anderszins, dan wel de gevolgen daarvan. Alle opgegeven maten, oppervlakten en energielabel zijn indicatief. Kandidaat huurder heeft zijn eigen onderzoekplicht naar alle zaken die voor hem of haar van belang zijn. Indien u specifieke wensen heeft omtrent het object, adviseren wij u deze tijdig kenbaar te maken (aan uw aankopend makelaar/adviseur) en hiernaar zelfstandig onderzoek te (laten) doen.
Bel, app of mail ons voor een bezichtiging van de Jan Flamelingstrjitte 14 J in Menaam, of vraag deze aan via Fundainbusiness.nl!
Specificaties
- Oppervlakte begane grond: ca. 52 m²;
- Oppervlakte entresolvloer: ca. 27 m²;
- Vrije hoogte: ca. 5,5 m¹ (onder 3 m¹ en boven 2,5 m¹);
- Constructie: geïsoleerde gevlinderde betonvloer (200 mm dik, tot 1000 kg/m² belastbaar);
- Isolatie: hoogwaardige dak- en wandbeplating (PIR gevuld);
- Voorzieningen: eigen stroomaansluiting (3 x 25A) en wateraansluiting.
Verhuurcondities
- Huurprijs: € 495,- per maand, excl. BTW, excl. nutsvoorzieningen;
- Huurtermijn: minimaal 12 maanden;
- Waarborgsom ter hoogte van 2 maanden huur;
- Huurovereenkomst overeenkomstig ROZ model.
Beschikbaarheid: medio eerste kwartaal 2026 (nog in afwachting van de oplevering van de nutsvoorzieningen).
Bestemming
Bestemmingsplan Menaam - bedrijventerrein Noord fase 2 (cat. 1 en 2).
Ligging
De bedrijfsunit is gelegen op een kleinschalig en goed bereikbaar bedrijventerrein aan de rand van Menaam, op korte afstand van Leeuwarden en met goede verbindingen richting de A31 en N383.
Menaam is een middelgroot dorp, goed bereikbaar vanaf de A31 (Leeuwarden - Afsluitdijk), levendig, met een actieve dorpsbewoners en een dito verenigingsleven, een supermarkt, diverse bedrijven en winkels, lagere scholen en kinderopvang. Het bedrijventerrein ligt aan de rand van het dorp, is prima te bereiken, is representatief en biedt ruimte aan de verschillende bedrijven.
Deze informatie is door ons met de nodige zorgvuldigheid samengesteld, en is geheel vrijblijvend. Onzerzijds wordt echter geen enkele aansprakelijkheid aanvaard voor enige onvolledigheid, onjuistheid of anderszins, dan wel de gevolgen daarvan. Alle opgegeven maten, oppervlakten en energielabel zijn indicatief. Kandidaat huurder heeft zijn eigen onderzoekplicht naar alle zaken die voor hem of haar van belang zijn. Indien u specifieke wensen heeft omtrent het object, adviseren wij u deze tijdig kenbaar te maken (aan uw aankopend makelaar/adviseur) en hiernaar zelfstandig onderzoek te (laten) doen.
Bel, app of mail ons voor een bezichtiging van de Jan Flamelingstrjitte 14 J in Menaam, of vraag deze aan via Fundainbusiness.nl!
Features
Transfer of ownership
- Rental price
- € 495 per month
- Listed since
-
- Status
- Available
- Acceptance
- Available in consultation
Construction
- Main use
- Industrial unit
- Building type
- Resale property
- Year of construction
- Currently under construction
Surface areas
- Area
- 79 m²
- Industrial unit area
- 79 m²
- Clearance
- 35 m
- Maximum load
- 1,000 kg/m²
Layout
- Facilities
- Overhead doors, concrete floor, toilet and pantry
Energy
- Energy label
- Not required
Surroundings
- Location
- Business park and peripheral retail location
- Accessibility
- Bus stop in 1000 m to 1500 m, Dutch Railways Intercity station in 5000 m or more and motorway exit in 2000 m to 3000 m
VastgoedPRO real estate agent
Photos