Tunnelweg 95 6468 EJ Kerkrade
€ 37 /m²/year
Description
TE HUUR : DIVERSE BEDRIJFSHALLEN
TUNNELWEG 95 – 6468 EJ KERKRADE
BINNEN BEDRIJVENTERREIN DENTGENBACH WORDEN DIVERSE QUA OMVANG VARIËRENDE BEDRIJFSUNITS / - HALLEN (GESPLITST) TE HUUR AANGEBODEN. DE OBJECTEN MAKEN DEEL UIT VAN EEN GROTERE ‘PLANT’ EN ZIJN VOORZIEN VAN EEN VERZORGD AFWERKNIVEAU. DE PANDEN ZIJN VERDER UITSTEKEND BEREIKBAAR, AANTREKKELIJK GEPRIJSD, PER DIRECT BESCHIKBAAR EN OMVATTEN ÉÉN DOCK VOOR EXCLUSIEF GEBRUIK.
ALGEMEEN
Binnen bedrijventerrein Dentgenbach in Kerkrade wordt per direct functioneel afgewerkte bedrijfsruimte te huur aangeboden (vanaf ca. 630 m² tot max. ca. 11.600 m²). Bijzonder is dat de beschikbare ruimtes alleen toegankelijk zijn middels een gezamenlijke inrit / toegangsweg, die door een slagboom is afgesloten, hetgeen de veiligheid ten goede komt. Beide bouwdelen zijn gesitueerd achter het hoofdgebouw van The Lycra Company (zie overzichtsfoto). Gelet op de situering (nabij de Ringweg Parkstad), bereikbaarheid, vigerende bestemming, indeling en aanwezige voorzieningen, zijn de ruimtes vooral geschikt ten behoeve van eenvoudige productiewerkzaamheden of de opslag van goederen (mits deze geen gevaar opleveren voor de directe omgeving).
LIGGING – OMGEVING – BEREIKBAARHEID
Bedrijventerrein Dentgenbach is gelegen aan de westzijde van de gemeente Kerkrade. Deze gemeente grenst letterlijk aan Duitsland (omgeving Aken) en maakt tevens deel uit de regio Parkstad (circa 250.000 inwoners), waarvan buurgemeente Heerlen het centrum vormt. Door de centrale situering in Zuid - Limburg is de locatie ook uiterst geschikt voor ondernemingen die actief zijn binnen geheel West - Europa. Antwerpen is immers nabij gelegen, evenals het Duitse Ruhrgebied, waarbij steden zoals Keulen en Düsseldorf op minder dan 100 KM afstand gesitueerd zijn.
De directe omgeving van beide panden komt goed verzorgd over en voorziet in allerhande ondernemingen variërend van groothandel tot productie, waaronder The LYCRA Company, Goedhart Kerkrade en NG - Parfumes. Qua bebouwing is hierbij sprake van objecten die zijn gerealiseerd vanaf de jaren zeventig van de vorige eeuw, tot panden die vrij recentelijk zijn opgeleverd of nog ontwikkeld / gebouwd worden.
De locatie is per (vracht)wagen zeer goed bereikbaar middels doorgaande wegen, die rechtstreeks in contact staan met de Buitenring Parkstad (< 2 minuten rijden). Deze dubbelbaans snelweg staat in directe verbinding met snelwegen in de richting van Heerlen, Maastricht, Aken / Keulen (D), Antwerpen / Brussel (B) en Eindhoven. Verder stoppen busverbindingen in de nabije omgeving.
INDELING EN VOORZIENINGEN
Plant II betreft een warehouse waarbinnen ca. 11.600 m² beschikbaar is (meerdere aaneengesloten bouwdelen). Het huren van een kleiner metrage (gemakshalve van ca. 5.000 m²) is bespreekbaar. Dit gebouw kent een functioneel afwerk- en voorzieningenniveau en is vooral bruikbaar t.b.v. opslag middels pallets of verpakte bulkgoederen in big bags.
Noemenswaardig is de aanwezigheid van de volgende elementen :
• 1 dock voor exclusief gebruik (in samenspraak kan gezamenlijk gebruik van een tweede dock worden ingericht)
• inpandige hoogte varieert van circa 4,0 m tot 5,4 m
• sprinklerinstallatie is aanwezig
• krachtstroom
• royale vrije overspanning
• functionele kantoorruimtes
Zie overzichtsfoto :
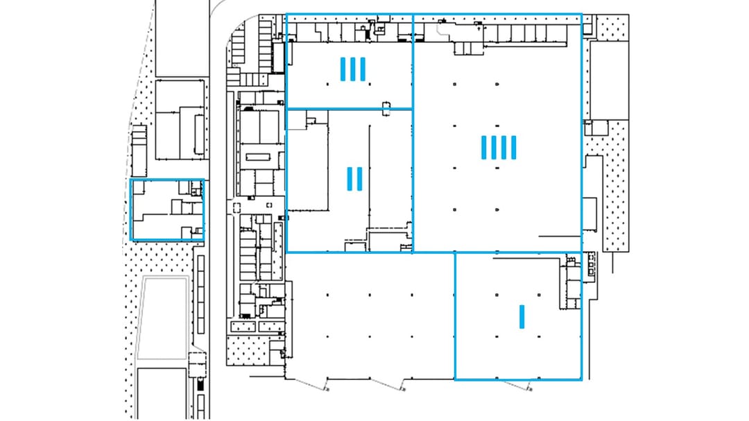
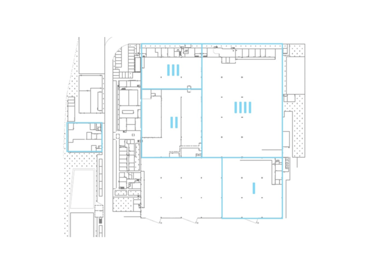
Warehouse I ca. 3.050 m² (voorzien van dockshelter)
Warehouse II ca. 2.300 m²
Warehouse III ca. 1.250 m²
Warehouse IIII ca. 5.000 m²
Plant III omvat circa 630 m² VVO verdeeld over twee kleinschalige aaneengesloten bedrijfsruimtes, respectievelijk ter grootte van ca. 280 m² VVO en 350 m² VVO, gekoppeld aan een inpandige hoogte van ca. 4,70 m. Ook deze ruimtes kennen een verzorgd, doch relatief eenvoudig afwerkniveau met dito uitstraling. Naast bedrijfsruimte omvat deze plant eenvoudige werk- en spreekkamers, alsmede een toiletfaciliteit en overheadpoort. Tevens is sprake van een bovenloopkraan, alarminstallatie, airconditioning en eigen elektra- en wateraansluitingen (gas is afgekoppeld).
PARKEERTERREIN EN TOEGANG
De aanwezige parkeerfaciliteit aan de voorzijde van het complex voorziet in enkele tientallen parkeerplaatsen voor personenwagens. Het betreft een gezamenlijke faciliteit voor gebruikers en bezoekers van het complex.
Toegang tot het terrein is mogelijk middels het passeren van een slagboominstallatie. Dit element komt de veiligheid ten goede, maar hierdoor zijn er qua gebruik ook restricties gekoppeld aan de verhuur door de eigenaar van het complex (zie onderstaand bij ‘bijzonderheden’).
Voor een verdere impressie van de ruimtes en het buitenterrein wordt eveneens verwezen naar de overzichtstekeningen die als bijlage zijn toegevoegd.
PRIJSSTELLING
Vraaghuurprijzen per m² VVO en op jaarbasis (ex. BTW en services), doch inclusief het gebruik van het (gezamenlijke) parkeerterrein ten behoeve van personenauto’s.
Plant II
- ruimte voorzien van docks € 32,= / m²
- overige bedrijfsruimtes € 25,= / m²
- kantoren en aangrenzende ruimtes n.o.t.k.
Plant III
- gemiddeld bezien voor ieder metrage € 37,= / m².
HUURUITGANGSPUNTEN
huurbetaling
per maand vooraf te voldoen.
indexering
jaarlijks voor het eerst 1 jaar na huuringang op reguliere wijze (CBS – CPI).
BTW
is wel van toepassing aangaande de verhuur.
services
€ 250,= / maand exclusief BTW ten behoeve van het leveren van :
onderhoud bestrating / hekwerk / poorten / slagbomen / parkeerterrein
(fair use), ongediertebestrijding / legionellacontrole / groenvoorziening /
bestrating / inbraakalarm / ontruimingsinstallatie / OZB & Waterschap, PLUS
Plant II
energie en installaties € 10,= / m² VVO / jaar exclusief BTW, ten behoeve van
de levering van basis-verwarming / -verlichting / inbraakpreventie – alarm /
sprinkler / waterleiding / riolering. Overige energie op basis van gemeten
verbruik.
Plant III
installaties € 3,= / m² VVO / jaar exclusief BTW, ten behoeve van de levering van
inbraakpreventie - alarm / waterleiding / riolering. Energie op basis van gemeten verbruik.
opleverniveau
in de basis ‘as is’ / huidige staat, doch zaken zijn bespreekbaar.
huurtermijn
tenminste 1 jaar vormt de basis, doch een kortere periode (vanaf 6 maanden) is bespreekbaar.
opzegtermijn
tenminste 6 maanden voor enig expiratiemoment, doch bij een korte
contractduur tenminste 2 maanden (NB : er kan wederzijds opgezegd
worden, mocht de situatie hiertoe aanleiding geven!).
zekerheidsstelling
3 maanden betalingsverplichting (huur + services + 21% opslag =>
bankgarantie of waarborgsom).
contract
het meest recente ROZ-contract model kantoor- / bedrijfsruimte inclusief
algemene bepalingen EN enkele aanvullende bepalingen om de wederzijdse
aansprakelijkheid te verminderen c.q. illegale praktijken te voorkomen
(meer info op aanvraag).
OVERIGE ELEMENTEN
gebruik
conform het gestelde in het Omgevingsplan luidt de bestemming ‘Bedrijventerrein – 2’. De voor 'Bedrijventerrein - 2' aangewezen gronden zijn bestemd voor bedrijven tot en met categorie 3.2 zoals opgenomen in de "Staat van bedrijfsactiviteiten - Bedrijventerrein" evenwel uitsluitend voor zover de bedrijven niet zijn aan te merken als risicovolle inrichting. Kijk voor meer info ook op
- het terrein is niet zondermeer 24/7 toegankelijk. Gebruik van de hallen voor bezoekers en vrachtverkeer is in de basis mogelijk van ma-vr tussen 07.00 en 18.00 uur, behoudens op officiële feestdagen en zogenaamde brugdagen (meer info op aanvraag).
De medewerkers van enig huurder kunnen in de basis tussen 06.30 – 19.00 uur of tussen 22.30 – 23.30 uur het gehuurde bezoeken.
NB : In samenspraak met verhuurder kunnen aanvullende afspraken worden gemaakt!
- er is sprake van een centraal beveiligingssysteem, waarover partijen qua gebruik aanvullende afspraken dienen te maken;
- qua elektravermogen is circa 300 tot 400 KW beschikbaar voor de aangeboden units (NB : het gecontracteerd vermogen voor de gehele plant bedraagt circa 1.5 Megawatt).
beschikbaarheid
per direct.
EPA
verhuurder zal aan huurder conform de wettelijke voorschriften een
zogenaamd ‘Energie Prestatieadvieslabel’ beschikbaar stellen
(mits van toepassing).
voorbehoud
er is qua verhuur te allen tijde sprake van een voorbehoud van
goedkeuring door de eigenaar c.q. het ‘Regional Operations Management’
van verhuurder.
TUNNELWEG 95 – 6468 EJ KERKRADE
BINNEN BEDRIJVENTERREIN DENTGENBACH WORDEN DIVERSE QUA OMVANG VARIËRENDE BEDRIJFSUNITS / - HALLEN (GESPLITST) TE HUUR AANGEBODEN. DE OBJECTEN MAKEN DEEL UIT VAN EEN GROTERE ‘PLANT’ EN ZIJN VOORZIEN VAN EEN VERZORGD AFWERKNIVEAU. DE PANDEN ZIJN VERDER UITSTEKEND BEREIKBAAR, AANTREKKELIJK GEPRIJSD, PER DIRECT BESCHIKBAAR EN OMVATTEN ÉÉN DOCK VOOR EXCLUSIEF GEBRUIK.
ALGEMEEN
Binnen bedrijventerrein Dentgenbach in Kerkrade wordt per direct functioneel afgewerkte bedrijfsruimte te huur aangeboden (vanaf ca. 630 m² tot max. ca. 11.600 m²). Bijzonder is dat de beschikbare ruimtes alleen toegankelijk zijn middels een gezamenlijke inrit / toegangsweg, die door een slagboom is afgesloten, hetgeen de veiligheid ten goede komt. Beide bouwdelen zijn gesitueerd achter het hoofdgebouw van The Lycra Company (zie overzichtsfoto). Gelet op de situering (nabij de Ringweg Parkstad), bereikbaarheid, vigerende bestemming, indeling en aanwezige voorzieningen, zijn de ruimtes vooral geschikt ten behoeve van eenvoudige productiewerkzaamheden of de opslag van goederen (mits deze geen gevaar opleveren voor de directe omgeving).
LIGGING – OMGEVING – BEREIKBAARHEID
Bedrijventerrein Dentgenbach is gelegen aan de westzijde van de gemeente Kerkrade. Deze gemeente grenst letterlijk aan Duitsland (omgeving Aken) en maakt tevens deel uit de regio Parkstad (circa 250.000 inwoners), waarvan buurgemeente Heerlen het centrum vormt. Door de centrale situering in Zuid - Limburg is de locatie ook uiterst geschikt voor ondernemingen die actief zijn binnen geheel West - Europa. Antwerpen is immers nabij gelegen, evenals het Duitse Ruhrgebied, waarbij steden zoals Keulen en Düsseldorf op minder dan 100 KM afstand gesitueerd zijn.
De directe omgeving van beide panden komt goed verzorgd over en voorziet in allerhande ondernemingen variërend van groothandel tot productie, waaronder The LYCRA Company, Goedhart Kerkrade en NG - Parfumes. Qua bebouwing is hierbij sprake van objecten die zijn gerealiseerd vanaf de jaren zeventig van de vorige eeuw, tot panden die vrij recentelijk zijn opgeleverd of nog ontwikkeld / gebouwd worden.
De locatie is per (vracht)wagen zeer goed bereikbaar middels doorgaande wegen, die rechtstreeks in contact staan met de Buitenring Parkstad (< 2 minuten rijden). Deze dubbelbaans snelweg staat in directe verbinding met snelwegen in de richting van Heerlen, Maastricht, Aken / Keulen (D), Antwerpen / Brussel (B) en Eindhoven. Verder stoppen busverbindingen in de nabije omgeving.
INDELING EN VOORZIENINGEN
Plant II betreft een warehouse waarbinnen ca. 11.600 m² beschikbaar is (meerdere aaneengesloten bouwdelen). Het huren van een kleiner metrage (gemakshalve van ca. 5.000 m²) is bespreekbaar. Dit gebouw kent een functioneel afwerk- en voorzieningenniveau en is vooral bruikbaar t.b.v. opslag middels pallets of verpakte bulkgoederen in big bags.
Noemenswaardig is de aanwezigheid van de volgende elementen :
• 1 dock voor exclusief gebruik (in samenspraak kan gezamenlijk gebruik van een tweede dock worden ingericht)
• inpandige hoogte varieert van circa 4,0 m tot 5,4 m
• sprinklerinstallatie is aanwezig
• krachtstroom
• royale vrije overspanning
• functionele kantoorruimtes
Zie overzichtsfoto :
Warehouse I ca. 3.050 m² (voorzien van dockshelter)
Warehouse II ca. 2.300 m²
Warehouse III ca. 1.250 m²
Warehouse IIII ca. 5.000 m²
Plant III omvat circa 630 m² VVO verdeeld over twee kleinschalige aaneengesloten bedrijfsruimtes, respectievelijk ter grootte van ca. 280 m² VVO en 350 m² VVO, gekoppeld aan een inpandige hoogte van ca. 4,70 m. Ook deze ruimtes kennen een verzorgd, doch relatief eenvoudig afwerkniveau met dito uitstraling. Naast bedrijfsruimte omvat deze plant eenvoudige werk- en spreekkamers, alsmede een toiletfaciliteit en overheadpoort. Tevens is sprake van een bovenloopkraan, alarminstallatie, airconditioning en eigen elektra- en wateraansluitingen (gas is afgekoppeld).
PARKEERTERREIN EN TOEGANG
De aanwezige parkeerfaciliteit aan de voorzijde van het complex voorziet in enkele tientallen parkeerplaatsen voor personenwagens. Het betreft een gezamenlijke faciliteit voor gebruikers en bezoekers van het complex.
Toegang tot het terrein is mogelijk middels het passeren van een slagboominstallatie. Dit element komt de veiligheid ten goede, maar hierdoor zijn er qua gebruik ook restricties gekoppeld aan de verhuur door de eigenaar van het complex (zie onderstaand bij ‘bijzonderheden’).
Voor een verdere impressie van de ruimtes en het buitenterrein wordt eveneens verwezen naar de overzichtstekeningen die als bijlage zijn toegevoegd.
PRIJSSTELLING
Vraaghuurprijzen per m² VVO en op jaarbasis (ex. BTW en services), doch inclusief het gebruik van het (gezamenlijke) parkeerterrein ten behoeve van personenauto’s.
Plant II
- ruimte voorzien van docks € 32,= / m²
- overige bedrijfsruimtes € 25,= / m²
- kantoren en aangrenzende ruimtes n.o.t.k.
Plant III
- gemiddeld bezien voor ieder metrage € 37,= / m².
HUURUITGANGSPUNTEN
huurbetaling
per maand vooraf te voldoen.
indexering
jaarlijks voor het eerst 1 jaar na huuringang op reguliere wijze (CBS – CPI).
BTW
is wel van toepassing aangaande de verhuur.
services
€ 250,= / maand exclusief BTW ten behoeve van het leveren van :
onderhoud bestrating / hekwerk / poorten / slagbomen / parkeerterrein
(fair use), ongediertebestrijding / legionellacontrole / groenvoorziening /
bestrating / inbraakalarm / ontruimingsinstallatie / OZB & Waterschap, PLUS
Plant II
energie en installaties € 10,= / m² VVO / jaar exclusief BTW, ten behoeve van
de levering van basis-verwarming / -verlichting / inbraakpreventie – alarm /
sprinkler / waterleiding / riolering. Overige energie op basis van gemeten
verbruik.
Plant III
installaties € 3,= / m² VVO / jaar exclusief BTW, ten behoeve van de levering van
inbraakpreventie - alarm / waterleiding / riolering. Energie op basis van gemeten verbruik.
opleverniveau
in de basis ‘as is’ / huidige staat, doch zaken zijn bespreekbaar.
huurtermijn
tenminste 1 jaar vormt de basis, doch een kortere periode (vanaf 6 maanden) is bespreekbaar.
opzegtermijn
tenminste 6 maanden voor enig expiratiemoment, doch bij een korte
contractduur tenminste 2 maanden (NB : er kan wederzijds opgezegd
worden, mocht de situatie hiertoe aanleiding geven!).
zekerheidsstelling
3 maanden betalingsverplichting (huur + services + 21% opslag =>
bankgarantie of waarborgsom).
contract
het meest recente ROZ-contract model kantoor- / bedrijfsruimte inclusief
algemene bepalingen EN enkele aanvullende bepalingen om de wederzijdse
aansprakelijkheid te verminderen c.q. illegale praktijken te voorkomen
(meer info op aanvraag).
OVERIGE ELEMENTEN
gebruik
conform het gestelde in het Omgevingsplan luidt de bestemming ‘Bedrijventerrein – 2’. De voor 'Bedrijventerrein - 2' aangewezen gronden zijn bestemd voor bedrijven tot en met categorie 3.2 zoals opgenomen in de "Staat van bedrijfsactiviteiten - Bedrijventerrein" evenwel uitsluitend voor zover de bedrijven niet zijn aan te merken als risicovolle inrichting. Kijk voor meer info ook op
- het terrein is niet zondermeer 24/7 toegankelijk. Gebruik van de hallen voor bezoekers en vrachtverkeer is in de basis mogelijk van ma-vr tussen 07.00 en 18.00 uur, behoudens op officiële feestdagen en zogenaamde brugdagen (meer info op aanvraag).
De medewerkers van enig huurder kunnen in de basis tussen 06.30 – 19.00 uur of tussen 22.30 – 23.30 uur het gehuurde bezoeken.
NB : In samenspraak met verhuurder kunnen aanvullende afspraken worden gemaakt!
- er is sprake van een centraal beveiligingssysteem, waarover partijen qua gebruik aanvullende afspraken dienen te maken;
- qua elektravermogen is circa 300 tot 400 KW beschikbaar voor de aangeboden units (NB : het gecontracteerd vermogen voor de gehele plant bedraagt circa 1.5 Megawatt).
beschikbaarheid
per direct.
EPA
verhuurder zal aan huurder conform de wettelijke voorschriften een
zogenaamd ‘Energie Prestatieadvieslabel’ beschikbaar stellen
(mits van toepassing).
voorbehoud
er is qua verhuur te allen tijde sprake van een voorbehoud van
goedkeuring door de eigenaar c.q. het ‘Regional Operations Management’
van verhuurder.
Features
Transfer of ownership
- Rental price
- € 37 per square meter per year
- Service charges
- € 10 per square meter per year (21% VAT applies)
- Listed since
-
- Status
- Available
- Acceptance
- Available immediately
Construction
- Main use
- Industrial unit
- Building type
- Resale property
- Year of construction
- 1982
Surface areas
- Area
- 12,230 m² (units from 630 m²)
- Industrial unit area
- 12,230 m²
- Clearance
- 5.4 m
Layout
- Facilities
- Rooflights, loading bays, three-phase electric power, sprinkler, heater, toilet and pantry
Energy
- Energy label
- Not available
Surroundings
- Location
- Business park
- Accessibility
- Bus stop in 1000 m to 1500 m, Dutch Railways Intercity station in 3000 m to 4000 m and motorway exit in 1000 m to 1500 m
Parking
- Parking spaces
- 30 uncovered parking spaces
NVM real estate agent
Photos
Floorplan
First floor