Description
Te huur solitair logistiek bedrijfscomplex gelegen aan de Hermelijnweg 7 te Etten-Leur.
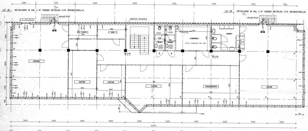
Het complex omvat in totaal circa 8.931 m², bestaande uit circa 8.245 m² bedrijfsruimte en circa 686 m² kantoorruimte. Aan de voorzijde bevinden zich 24 parkeerplaatsen. Het object is gelegen op een ruim en verhard perceel van circa 15.480 m².
Het object is gelegen op bedrijvenpark Vosdonk, op korte afstand van de op- en afrit van de rijksweg A58 (Bergen op Zoom – Breda), met een directe verbinding naar de rijkswegen A17 (Moerdijk – Roosendaal) en A16 (Rotterdam – Antwerpen).
De bedrijfsruimte voorziet in gebruiksmogelijkheden van lichte bedrijvigheid tot en met zwaardere bedrijfsactiviteiten (categorie 4.1.). De bedrijfsruimte is uitermate geschikt voor opslag en overflow van goederen en productie- of assemblage werkzaamheden, in combinatie met kantoorruimte.
Het object is per 1 augustus 2026 beschikbaar. Benieuwd naar de mogelijkheden?
Graag plannen wij met u een afspraak in op locatie voor een nadere kennismaking en toelichting ten aanzien van de mogelijkheden.
Locatie
Het object is gelegen op bedrijventerrein ‘Vosdonk’ ten westen van Etten-Leur. Het bedrijventerrein biedt ruimte aan een grote diversiteit aan bedrijven, variërend van productie, transport/logistiek, bouwnijverheid en zakelijke dienstverlening. Dankzij deze veelzijdigheid is het een aantrekkelijke vestigingslocatie voor zowel kleine, middelgrote als grote ondernemingen die actief zijn in uiteenlopende sectoren.
Het bedrijventerrein heeft een oppervlakte van circa 350 hectare en is de thuisbasis voor circa 350 bedrijven. Tezamen goed voor ruim 9.000 arbeidsplaatsen. Gerenommeerde ondernemingen hebben zich hier gevestigd, o.a. Lidl, Raben, Flowserve, Thetford, MJ-Tech, Saint-Gobain, Kompak en Vadelo.
Tot slot is ‘Vosdonk’ gelegen nabij meerdere woonwijken van Etten-Leur, Hoeven en Sint Willebrord, hetgeen een zeer groot arbeidspotentieel met zich meebrengt!
Bereikbaarheid
Per auto
Het object ligt op korte afstand van de op- en afrit van de rijksweg A58 (Bergen op Zoom – Breda) met een directe verbinding naar de rijkswegen A17 (Moerdijk – Roosendaal) en A16 (Rotterdam – Antwerpen).
Per OV
Aan de Nijverheidsweg, op circa 1.000 meter loopafstand, bevindt zich een bushalte ten behoeve van het streekvervoer.
Oppervlakte
De verhuurbare oppervlakte van het complex bedraagt ca. 8.931.m² en is als volgt onderverdeeld:
Bedrijfsruimte: ca. 8.245 m²
Kantoorruimte: ca. 686 m²
Voorzieningen
Bedrijfsruimte:
-vrije hoogte variërend van 5,5 m1 tot 14,5 m1 ;
-gladde betonvloer;
-lichtstraten;
-gasheaters;
-ledverlichting;
-vier loading docks;
-vier overheaddeuren op maaiveldniveau;
-sprinklerinstallatie.
De aanwezige racking wordt “om niet” aan huurder ter beschikking gesteld.
Kantoorruimte:
-nette vloerafwerking;
-systeemplafonds;
-verlichtingsarmaturen (LED)
-sanitaire voorzieningen;
-pantry;
-kabelgoten met stopcontacten en ruimte voor het aanbrengen van databekabeling.
Overige condities
Huurprijs
EUR 700.000,- per jaar, te vermeerderen met BTW.
Leveringen en diensten
Nader te bepalen.
Metrages
Genoemd metrage is vastgesteld aan de hand van NEN2580 meetrapport.
Huurprijsaanpassing
De huurprijs wordt jaarlijks aangepast op basis van de wijziging van het maandprijsindexcijfer volgens de consumenten-prijsindex (CPI) reeks CPI-Alle Huishoudens (2015 = 100), gepubliceerd door het Centraal Bureau voor de Statistiek (CBS).
Huurtermijn
5 jaar met aansluitend verlengingen voor telkens 5 jaar.
Opzegtermijn
12 maanden.
Betalingen
Huur, eventuele servicekosten en btw worden met drie maanden vooruit betaald.
Zekerheidsstelling
Bankgarantie ter grootte van drie maanden huur, eventuele servicekosten en btw.
Overige condities
Huurovereenkomst op basis van het standaardmodel van de Raad voor Onroerende Zaken (ROZ) model 2025.
Aanvaarding
1 augustus 2026.
Het complex omvat in totaal circa 8.931 m², bestaande uit circa 8.245 m² bedrijfsruimte en circa 686 m² kantoorruimte. Aan de voorzijde bevinden zich 24 parkeerplaatsen. Het object is gelegen op een ruim en verhard perceel van circa 15.480 m².
Het object is gelegen op bedrijvenpark Vosdonk, op korte afstand van de op- en afrit van de rijksweg A58 (Bergen op Zoom – Breda), met een directe verbinding naar de rijkswegen A17 (Moerdijk – Roosendaal) en A16 (Rotterdam – Antwerpen).
De bedrijfsruimte voorziet in gebruiksmogelijkheden van lichte bedrijvigheid tot en met zwaardere bedrijfsactiviteiten (categorie 4.1.). De bedrijfsruimte is uitermate geschikt voor opslag en overflow van goederen en productie- of assemblage werkzaamheden, in combinatie met kantoorruimte.
Het object is per 1 augustus 2026 beschikbaar. Benieuwd naar de mogelijkheden?
Graag plannen wij met u een afspraak in op locatie voor een nadere kennismaking en toelichting ten aanzien van de mogelijkheden.
Locatie
Het object is gelegen op bedrijventerrein ‘Vosdonk’ ten westen van Etten-Leur. Het bedrijventerrein biedt ruimte aan een grote diversiteit aan bedrijven, variërend van productie, transport/logistiek, bouwnijverheid en zakelijke dienstverlening. Dankzij deze veelzijdigheid is het een aantrekkelijke vestigingslocatie voor zowel kleine, middelgrote als grote ondernemingen die actief zijn in uiteenlopende sectoren.
Het bedrijventerrein heeft een oppervlakte van circa 350 hectare en is de thuisbasis voor circa 350 bedrijven. Tezamen goed voor ruim 9.000 arbeidsplaatsen. Gerenommeerde ondernemingen hebben zich hier gevestigd, o.a. Lidl, Raben, Flowserve, Thetford, MJ-Tech, Saint-Gobain, Kompak en Vadelo.
Tot slot is ‘Vosdonk’ gelegen nabij meerdere woonwijken van Etten-Leur, Hoeven en Sint Willebrord, hetgeen een zeer groot arbeidspotentieel met zich meebrengt!
Bereikbaarheid
Per auto
Het object ligt op korte afstand van de op- en afrit van de rijksweg A58 (Bergen op Zoom – Breda) met een directe verbinding naar de rijkswegen A17 (Moerdijk – Roosendaal) en A16 (Rotterdam – Antwerpen).
Per OV
Aan de Nijverheidsweg, op circa 1.000 meter loopafstand, bevindt zich een bushalte ten behoeve van het streekvervoer.
Oppervlakte
De verhuurbare oppervlakte van het complex bedraagt ca. 8.931.m² en is als volgt onderverdeeld:
Bedrijfsruimte: ca. 8.245 m²
Kantoorruimte: ca. 686 m²
Voorzieningen
Bedrijfsruimte:
-vrije hoogte variërend van 5,5 m1 tot 14,5 m1 ;
-gladde betonvloer;
-lichtstraten;
-gasheaters;
-ledverlichting;
-vier loading docks;
-vier overheaddeuren op maaiveldniveau;
-sprinklerinstallatie.
De aanwezige racking wordt “om niet” aan huurder ter beschikking gesteld.
Kantoorruimte:
-nette vloerafwerking;
-systeemplafonds;
-verlichtingsarmaturen (LED)
-sanitaire voorzieningen;
-pantry;
-kabelgoten met stopcontacten en ruimte voor het aanbrengen van databekabeling.
Overige condities
Huurprijs
EUR 700.000,- per jaar, te vermeerderen met BTW.
Leveringen en diensten
Nader te bepalen.
Metrages
Genoemd metrage is vastgesteld aan de hand van NEN2580 meetrapport.
Huurprijsaanpassing
De huurprijs wordt jaarlijks aangepast op basis van de wijziging van het maandprijsindexcijfer volgens de consumenten-prijsindex (CPI) reeks CPI-Alle Huishoudens (2015 = 100), gepubliceerd door het Centraal Bureau voor de Statistiek (CBS).
Huurtermijn
5 jaar met aansluitend verlengingen voor telkens 5 jaar.
Opzegtermijn
12 maanden.
Betalingen
Huur, eventuele servicekosten en btw worden met drie maanden vooruit betaald.
Zekerheidsstelling
Bankgarantie ter grootte van drie maanden huur, eventuele servicekosten en btw.
Overige condities
Huurovereenkomst op basis van het standaardmodel van de Raad voor Onroerende Zaken (ROZ) model 2025.
Aanvaarding
1 augustus 2026.
Map
Map is loading...
Cadastral boundaries
Buildings
Travel time
Gain insight into the reachability of this object, for instance from a public transport station or a home address.