Hoogstraat 27 2513 AP Den Haag
Huurprijs op aanvraag
Omschrijving
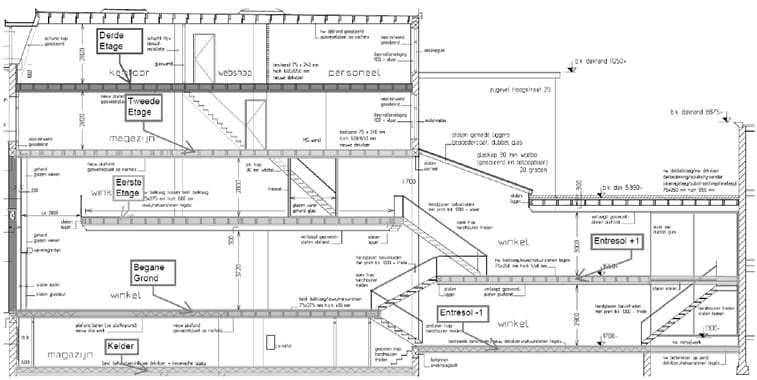
Iconische winkelruimte van ca. 693 m² BVO in de Haagse Paleispromenade
In het hart van de Haagse Paleispromenade, één van de meest prestigieuze winkelgebieden van Nederland, bevindt zich deze hoogwaardige winkelruimte van in totaal circa 693 m² BVO, verdeeld over een imposante begane grond, twee entresols, drie verdiepingen en een ruime kelder. Het pand beschikt over een moderne hoge glazen pui en een indrukwekkend interieur met veel natuurlijk licht, strakke afwerking en een architectonisch vormgegeven vide met designtrap.
De Hoogstraat maakt deel uit van het exclusieve winkelcircuit rondom het werkpaleis van de koning en bevindt zich tussen toonaangevende retailers zoals Max Mara, Oger, Summum, Essentiel Antwerp, Birkenstock, Boss, Scotch & Soda, Tommy Hilfiger, Zara Home, Massimo Dutti en Rituals. Het gebied trekt een stijlbewuste mix van locals, expats, toeristen en premium shoppers.
OBJECTINFORMATIE
Adres:
Hoogstraat 27–27A, Den Haag
Oppervlakte:
Totaal ca. 693 m² BVO, als volgt verdeeld:
- Begane grond: ca. 104 m² BVO
- Entresol -1: ca. 85 m² BVO
- Entresol +1: ca. 85 m² BVO
- 1e verdieping: ca. 92 m² BVO
- 2e verdieping: ca. 110 m² BVO
- 3e verdieping: ca. 110 m² BVO
- Kelder: ca. 104 m² BVO
Huurprijs:
Op aanvraag
Huurtermijn:
10 jaar, daarna telkens 5 jaar
Opleveringsniveau:
Huidige hoogwaardige staat; casco wordt verhuurd
Ingangsdatum:
In overleg
Betaling:
Per maand, vooruit
Indexatie:
Jaarlijks, conform CPI (alle huishoudens, 2015 = 100)
Zekerheidsstelling:
Waarborgsom ter grootte van drie maanden huur te vermeerderen met btw
Huurcontract:
Standaard ROZ-model winkelruimte (2012)
Voorbehoud:
Goedkeuring directie verhuurder
BEREIKBAARHEID
De locatie is uitstekend bereikbaar. Parkeergarages Noordeinde, Heulstraat, Parkstraat en Torenstraat liggen op loopafstand. Tram- en bushaltes bij Kneuterdijk/Spui liggen zeer nabij en zorgen voor directe verbindingen met Den Haag Centraal, dat binnen enkele minuten bereikbaar is.
In het hart van de Haagse Paleispromenade, één van de meest prestigieuze winkelgebieden van Nederland, bevindt zich deze hoogwaardige winkelruimte van in totaal circa 693 m² BVO, verdeeld over een imposante begane grond, twee entresols, drie verdiepingen en een ruime kelder. Het pand beschikt over een moderne hoge glazen pui en een indrukwekkend interieur met veel natuurlijk licht, strakke afwerking en een architectonisch vormgegeven vide met designtrap.
De Hoogstraat maakt deel uit van het exclusieve winkelcircuit rondom het werkpaleis van de koning en bevindt zich tussen toonaangevende retailers zoals Max Mara, Oger, Summum, Essentiel Antwerp, Birkenstock, Boss, Scotch & Soda, Tommy Hilfiger, Zara Home, Massimo Dutti en Rituals. Het gebied trekt een stijlbewuste mix van locals, expats, toeristen en premium shoppers.
OBJECTINFORMATIE
Adres:
Hoogstraat 27–27A, Den Haag
Oppervlakte:
Totaal ca. 693 m² BVO, als volgt verdeeld:
- Begane grond: ca. 104 m² BVO
- Entresol -1: ca. 85 m² BVO
- Entresol +1: ca. 85 m² BVO
- 1e verdieping: ca. 92 m² BVO
- 2e verdieping: ca. 110 m² BVO
- 3e verdieping: ca. 110 m² BVO
- Kelder: ca. 104 m² BVO
Huurprijs:
Op aanvraag
Huurtermijn:
10 jaar, daarna telkens 5 jaar
Opleveringsniveau:
Huidige hoogwaardige staat; casco wordt verhuurd
Ingangsdatum:
In overleg
Betaling:
Per maand, vooruit
Indexatie:
Jaarlijks, conform CPI (alle huishoudens, 2015 = 100)
Zekerheidsstelling:
Waarborgsom ter grootte van drie maanden huur te vermeerderen met btw
Huurcontract:
Standaard ROZ-model winkelruimte (2012)
Voorbehoud:
Goedkeuring directie verhuurder
BEREIKBAARHEID
De locatie is uitstekend bereikbaar. Parkeergarages Noordeinde, Heulstraat, Parkstraat en Torenstraat liggen op loopafstand. Tram- en bushaltes bij Kneuterdijk/Spui liggen zeer nabij en zorgen voor directe verbindingen met Den Haag Centraal, dat binnen enkele minuten bereikbaar is.
Kenmerken
Overdracht
- Huurprijs
- Huurprijs op aanvraag
- Aangeboden sinds
-
- Status
- Beschikbaar
- Aanvaarding
- In overleg
Bouw
- Hoofdfunctie
- Winkel
- Soort bouw
- Bestaande bouw
- Bouwjaar
- 1900
Oppervlakten
- Oppervlakte
- 690 m²
- Verkoopvloeroppervlakte
- 366 m²
- Breedte gevel
- 6,1 m
Indeling
- Aantal bouwlagen
- 5 bouwlagen
Energie
- Energielabel
- Niet beschikbaar
Omgeving
- Ligging
- Stadscentrum/dorpskern
- Bijdrage winkeliersvereniging
- Nee
- Welstandsklasse
- A1
Makelaar
Foto's