Grindweg 82-88 3055 VD Rotterdam
€ 300 /mnd
Omschrijving
Centraal gelegen in Hillegersberg, op een zichtlocatie gelegen, verschillende kantoorruimtes. Het kantoor gebouw ligt op loopafstand van het centrum van Hillegersberg en op enkele minuten van de A13 en A20. Het verzamelgebouw is voorzien van liftinstallatie, pantry en er zijn parkeerplekken op een gezamenlijk parkeerterrein.
BESTEMMING
De bestemming van het object is “kantoor”.
INDELING EN OPLEVERINGSNIVEAU
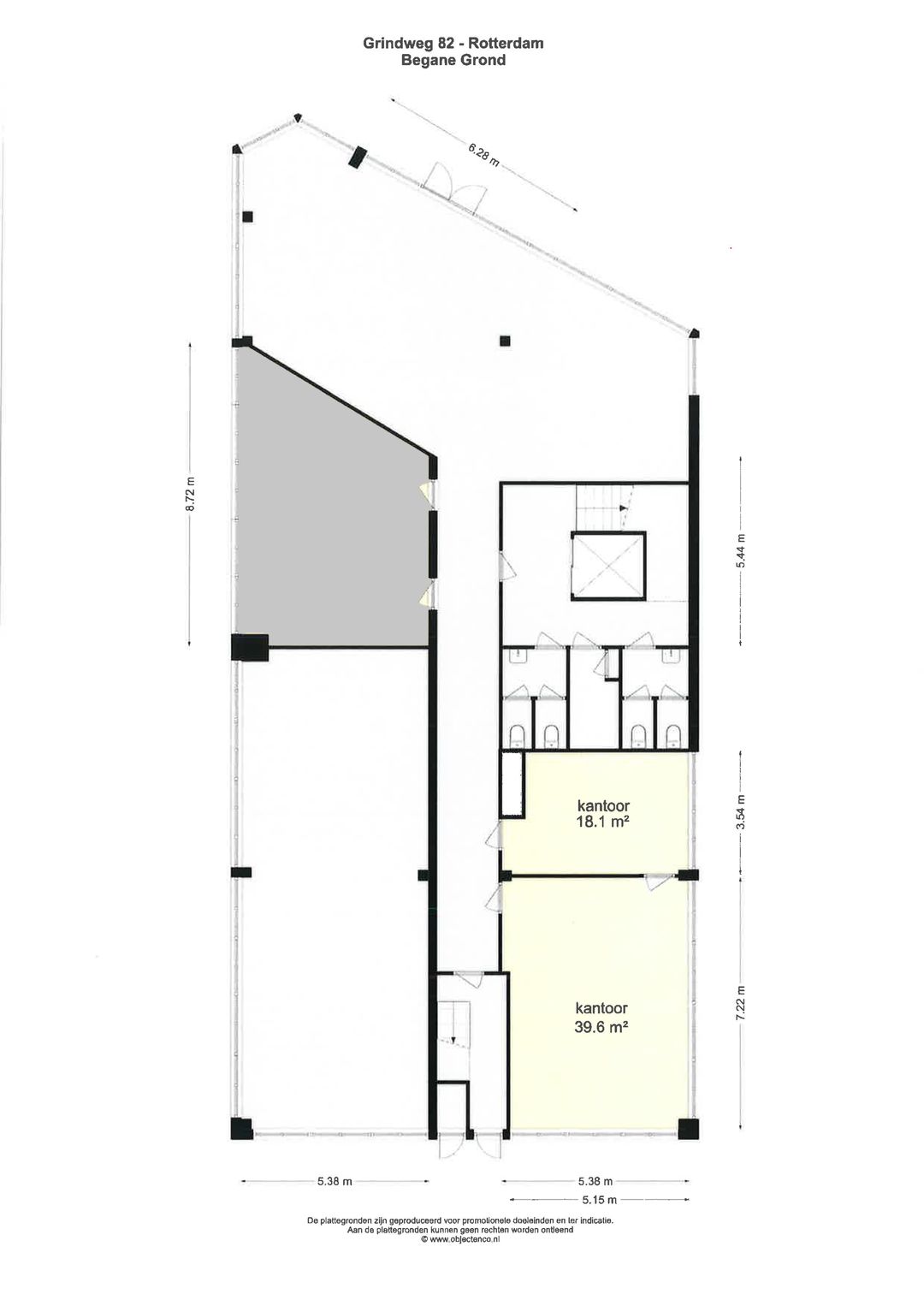
Het object beschikt over 4 bouwlagen, waarvan er 2 kantoorruimtes beschikbaar zijn op begane grond. Deze dienen samen gehuurd te worden.
Voor verhuur zijn de volgende kantoorruimtes beschikbaar;
-Twee kantoren op de begane grond van ca. 18 en ca. 40 m2. Huurprijs totaal € 950,-- per maand excl. BTW.
Het object wordt opgeleverd met o.a. de volgende voorzieningen;
-Representatieve entree,
-Te openen ramen,
-CV middels radiatoren,
-Toiletruimte,
-Pantry op begane grond en derde verdieping
PARKEREN
Voldoende parkeerplaatsen aanwezig op gezamenlijk parkeerterrein.
Huur ingangsdatum: in overleg.
Huurprijsindexatie: De huurprijs wordt jaarlijks geïndexeerd op basis van het Consumenten Prijsindexcijfer (CPI), reeks alle huishoudens (2015=100) van het CBS, voor het eerst één jaar na huuringangsdatum.
SERVICEKOSTEN
De servicekosten bedragen € 45,--(excl. BTW) als voorschot per m2 per jaar voor de kosten van:
-Voorschot gas, water en elektra
-Onderhoud liftinstallatie
-Schoonmaak algemene ruimte,
-Eventueel overige kosten benodigd voor het uitvoeren van het beheer.
WAARBORGSOM
Gelijk aan drie maanden huur + BTW.
CONTRACT
Model door de Raad voor Onroerende Zaken (ROZ) op 30-1-2015 vastgesteld en op 17-2-2015 gedeponeerd bij de griffie van de rechtbank te den Haag en aldaar ingeschreven onder nummer 15/20 tevens gepubliceerd op de website
Eventuele verhuurtransacties dienen ter goedkeuring voorgelegd te worden aan verhuurder van het gebouw. Tot deze goedkeuring verleend is, zijn alle uitgebrachte aanbiedingen geheel vrijblijvend.
BTW
Verhuurder wenst te opteren voor BTW-belaste huur en verhuur. Ingeval huurder de BTW niet kan verrekenen zal de huurprijs worden verhoogd ter compensatie van de gevolgen van het vervallen van de mogelijkheid om te opteren voor BTW-belaste huur.
Toelichtingsclausule NEN2580
De meetinstructie is gebaseerd op de NEN2580. De meetinstructie is bedoeld om een meer eenduidige manier van meten toe te passen voor het geven van een indicatie van de gebruiksoppervlakte. De meetinstructie sluit verschillen in meetuitkomsten niet volledig uit, door bijvoorbeeld interpretatieverschillen, afrondingen of beperkingen bij het uitvoeren van de meting.
Bovenstaande tekst is met de grootst mogelijke zorg samengesteld. Er kunnen geen rechten aan worden ontleend. De tekst is uitsluitend bedoeld om een goede indruk van het object te geven.
BESTEMMING
De bestemming van het object is “kantoor”.
INDELING EN OPLEVERINGSNIVEAU
Het object beschikt over 4 bouwlagen, waarvan er 2 kantoorruimtes beschikbaar zijn op begane grond. Deze dienen samen gehuurd te worden.
Voor verhuur zijn de volgende kantoorruimtes beschikbaar;
-Twee kantoren op de begane grond van ca. 18 en ca. 40 m2. Huurprijs totaal € 950,-- per maand excl. BTW.
Het object wordt opgeleverd met o.a. de volgende voorzieningen;
-Representatieve entree,
-Te openen ramen,
-CV middels radiatoren,
-Toiletruimte,
-Pantry op begane grond en derde verdieping
PARKEREN
Voldoende parkeerplaatsen aanwezig op gezamenlijk parkeerterrein.
Huur ingangsdatum: in overleg.
Huurprijsindexatie: De huurprijs wordt jaarlijks geïndexeerd op basis van het Consumenten Prijsindexcijfer (CPI), reeks alle huishoudens (2015=100) van het CBS, voor het eerst één jaar na huuringangsdatum.
SERVICEKOSTEN
De servicekosten bedragen € 45,--(excl. BTW) als voorschot per m2 per jaar voor de kosten van:
-Voorschot gas, water en elektra
-Onderhoud liftinstallatie
-Schoonmaak algemene ruimte,
-Eventueel overige kosten benodigd voor het uitvoeren van het beheer.
WAARBORGSOM
Gelijk aan drie maanden huur + BTW.
CONTRACT
Model door de Raad voor Onroerende Zaken (ROZ) op 30-1-2015 vastgesteld en op 17-2-2015 gedeponeerd bij de griffie van de rechtbank te den Haag en aldaar ingeschreven onder nummer 15/20 tevens gepubliceerd op de website
Eventuele verhuurtransacties dienen ter goedkeuring voorgelegd te worden aan verhuurder van het gebouw. Tot deze goedkeuring verleend is, zijn alle uitgebrachte aanbiedingen geheel vrijblijvend.
BTW
Verhuurder wenst te opteren voor BTW-belaste huur en verhuur. Ingeval huurder de BTW niet kan verrekenen zal de huurprijs worden verhoogd ter compensatie van de gevolgen van het vervallen van de mogelijkheid om te opteren voor BTW-belaste huur.
Toelichtingsclausule NEN2580
De meetinstructie is gebaseerd op de NEN2580. De meetinstructie is bedoeld om een meer eenduidige manier van meten toe te passen voor het geven van een indicatie van de gebruiksoppervlakte. De meetinstructie sluit verschillen in meetuitkomsten niet volledig uit, door bijvoorbeeld interpretatieverschillen, afrondingen of beperkingen bij het uitvoeren van de meting.
Bovenstaande tekst is met de grootst mogelijke zorg samengesteld. Er kunnen geen rechten aan worden ontleend. De tekst is uitsluitend bedoeld om een goede indruk van het object te geven.
Kenmerken
Overdracht
- Huurprijs
- € 300 per maand
- Servicekosten
- € 45 per vierkante meter per jaar (21% BTW van toepassing)
- Aangeboden sinds
-
- Status
- Beschikbaar
- Aanvaarding
- In overleg
Bouw
- Hoofdfunctie
- Kantoor
- Soort bouw
- Bestaande bouw
- Bouwjaar
- 1989
Oppervlakten
- Oppervlakte
- 144 m² (in units vanaf 3 m²)
Indeling
- Aantal bouwlagen
- 4 bouwlagen
- Voorzieningen
- Liften, te openen ramen, toilet, pantry en verwarming
Energie
- Energielabel
- A
Omgeving
- Ligging
- Kantorenpark
- Bereikbaarheid
- Bushalte op minder dan 500 m, NS Intercitystation op 2000 m tot 3000 m en Tramhalte op 500 m tot 1000 m
Foto's