Oostdijk 22-A 3261 KH Oud-Beijerland

  • Rented
€ 1,300 p/mo.

Description

Algemeen
Nette commerciële ruimte, gelegen op steenworp afstand van het gezellige centrum en de sfeervolle haven van Oud-Beijerland.

De Oostdijk ademt de rijke historie van Oud-Beijerland, één van de parels van de Hoeksche Waard. Karakteristieke gevels en authentieke panden geven de straat een warme, dorpse uitstraling. Tegelijkertijd vind je hier een eigentijdse mix van speciaalzaken, ambachtelijke winkels en dienstverleners die inspelen op de wensen van vandaag. Van mode en interieur tot vers specialisten en persoonlijke dienstverlening

Kadastrale aanduiding
Gemeente Oud-Beijerland, Sectie D, Nr. 6229 (gedeeltelijk).

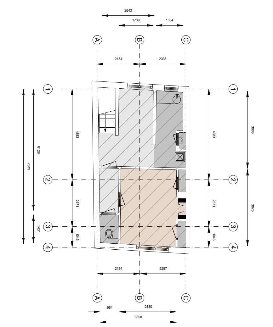
Indeling
Ca. 32 m² vvo commerciële ruimte, gelegen op de begane grond, alsmede ca. 29 m² vvo opslagruimte op de eerste verdieping.

De oppervlakten zijn gebaseerd op een meet-rapportage conform NEN2580, opgesteld door Zibber d.d. 23 februari 2026. Onder- danwel overmaat van het metrage zal nimmer (kunnen) leiden tot enige verrekening van de prijs.

Huurprijsaanpassing
Jaarlijks, voor het eerst één jaar na datum huuringang, op basis van de wijziging van het prijsindexcijfer volgens de consumentenprijsindex (CPI) reeks CPI-Alle Huishoudens (2015=100), gepubliceerd door het Centraal Bureau voor de Statistiek (CBS).

Huurtermijn
Vijf jaar met een verlengingsmogelijkheid van vijf jaar.

Omzetbelasting
Over de huurprijs zal BTW in rekening worden gebracht. Indien BTW niet in rekening kan worden gebracht, geldt een nader te bepalen opslag op bovengenoemde huurprijs.

Bijkomende kosten
Thans niet van toepassing.

Zekerheidsstelling
Een waarborgsom ter grootte van een betalingsver-plichting van drie maanden, inclusief servicekosten en BTW.

Betalingswijze
De huurpenningen, servicekosten en BTW dienen te worden voldaan bij vooruitbetaling per maand.

Datum van oplevering
Q3 2026.

Wijze van oplevering
De ruimte wordt vrij van huur en gebruik (schoon en ontruimd), opgeleverd in de huidige staat met navolgende voorzieningen:
- Airconditioning*;
- Ingerichte toiletruimte*;
- Meterkast v.v. van eigen meters*;
- Pantry v.v. spoelbak*;
- Plafondafwerking v.v. verlichtingsarmaturen*;
- Radiatoren*;
- Vloerafwerking*;
- Wandafwerking*;
- Warmtegordijn*.

Genoemde voorzieningen worden door verhuurder 'om niet' aan huurder ter beschikking gesteld.

Huurder dient deze voorzieningen gedurende de huurperiode goed te onderhouden, eventuele vervanging en/of reparatie komt voor rekening van huurder. Verhuurder heeft hierover dus geen onderhouds-, vervangings- en/of reparatieplicht.

Energielabel
Het object heeft een energielabel D en is geldig tot 30 juli 2029.

Gebruik
Onderhavige ruimte wordt gebruikt als verkoop-ruimte in de zin van artikel 7: 290 BW.

Huurovereenkomst
De huurovereenkomst zal op basis van het standaard model van de Raad van Onroerende Zaken (ROZ) met bijbehorende Algemene Bepalingen, gedeponeerd en ingeschreven bij de griffie van de rechtbank te ‘s-Gravenhage, worden opgemaakt.

Nadrukkelijk zij vermeld dat deze vrijblijvende informatieverstrekking niet als een aanbieding of offerte mag worden beschouwd.

Aan deze gegevens kunnen geen rechten worden ontleend.

Features

Transfer of ownership

Last rental price
€ 1,300 per month
Listed since
Status
Rented

Construction

Main use
Retail outlet with showroom
Building type
Resale property
Year of construction
1874

Surface areas

Area
61 m²
Sales floor area
32 m²
Front width
42 m

Layout

Number of floors
2 floors

Energy

Energy label
D 1.44

Surroundings

Location
Town center and in residential district
Shopkeepers' association contribution
No
Socio-economic classification
B1