Description
BELEGGING:
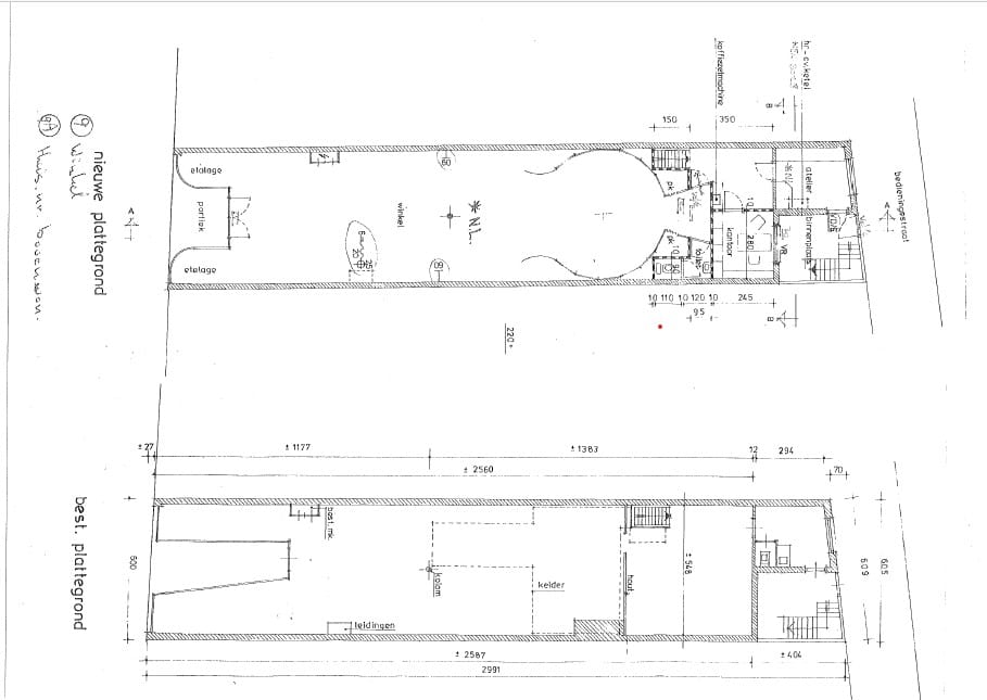
In hartje centrum van het City Fashion Center aan de Wemenstraat te Hengelo mogen wij deze representatieve winkel met bovenwoning van in totaal circa 260m² groot verkopen als belegging. De winkel is verhuurd aan McWok en het appartement komt vermoedelijk weer beschikbaar.
Indeling:
Winkel: ca. 140² groot,
Appartement (1e verdieping) circa 120m2 groot.
Kelderruimte aanwezig.
De winkel heeft een frontbreedte van ca. 5.5 meter.
Bereikbaarheid:
De winkel is gelegen nabij 1 van de drukste punten van de Hengelose binnenstad, namelijk Wemenstraat/Enschedesestraat. Parkeren is hier goed mogelijk (betaald) op openbaar terrein. Het NS/busstation is op circa 5 minuten loopafstand gelegen.
Voorzieningen:
De winkelruimte is in casco staat verhuurd en is destijds aangeboden met:
- heteluchtgordijn boven entree
- pui/entree
- meterkast
- systeemplafonds met verlichting
- pantry
- toiletunit met voorportaal
- Cv-installatie met winkelverwarming
Huidige situatie:
Contract van de winkel loopt tot 31 aug 2027 (5 + 5 jaar, 12 maanden opzegtermijn).
Contract van het appartement is afgesloten voor onbepaalde tijd met circa 1 maand opzegtermijn.
Huurinkomsten zullen wij delen op aanvraag.
Kadastrale gegevens:
Gemeente Hengelo, sectie O, nummer 1504.
Energielabel:
De onroerende zaak zal door verhuurder aan huurder worden opgeleverd onder afgifte van een geldig energielabel. Het afgegeven energielabel betreft een label G (geldig tot 08-10-2026).
Vraagprijs:
€ 500.000,-- k.k.
Aanvaarding:
In overleg.
Zekerheidsstelling:
Bankgarantie c.q. waarborgsom ter grootte van 10 % van de koopsom.
Aan deze informatie kunnen geen rechten worden ontleend en deze informatie kan niet als aanbieding
of offerte worden beschouwd. Indien u een aanbieding wenst, kan de makelaar deze, na goedkeuring
door de opdrachtgever, op basis van specifieke gegevens verzorgen.
In hartje centrum van het City Fashion Center aan de Wemenstraat te Hengelo mogen wij deze representatieve winkel met bovenwoning van in totaal circa 260m² groot verkopen als belegging. De winkel is verhuurd aan McWok en het appartement komt vermoedelijk weer beschikbaar.
Indeling:
Winkel: ca. 140² groot,
Appartement (1e verdieping) circa 120m2 groot.
Kelderruimte aanwezig.
De winkel heeft een frontbreedte van ca. 5.5 meter.
Bereikbaarheid:
De winkel is gelegen nabij 1 van de drukste punten van de Hengelose binnenstad, namelijk Wemenstraat/Enschedesestraat. Parkeren is hier goed mogelijk (betaald) op openbaar terrein. Het NS/busstation is op circa 5 minuten loopafstand gelegen.
Voorzieningen:
De winkelruimte is in casco staat verhuurd en is destijds aangeboden met:
- heteluchtgordijn boven entree
- pui/entree
- meterkast
- systeemplafonds met verlichting
- pantry
- toiletunit met voorportaal
- Cv-installatie met winkelverwarming
Huidige situatie:
Contract van de winkel loopt tot 31 aug 2027 (5 + 5 jaar, 12 maanden opzegtermijn).
Contract van het appartement is afgesloten voor onbepaalde tijd met circa 1 maand opzegtermijn.
Huurinkomsten zullen wij delen op aanvraag.
Kadastrale gegevens:
Gemeente Hengelo, sectie O, nummer 1504.
Energielabel:
De onroerende zaak zal door verhuurder aan huurder worden opgeleverd onder afgifte van een geldig energielabel. Het afgegeven energielabel betreft een label G (geldig tot 08-10-2026).
Vraagprijs:
€ 500.000,-- k.k.
Aanvaarding:
In overleg.
Zekerheidsstelling:
Bankgarantie c.q. waarborgsom ter grootte van 10 % van de koopsom.
Aan deze informatie kunnen geen rechten worden ontleend en deze informatie kan niet als aanbieding
of offerte worden beschouwd. Indien u een aanbieding wenst, kan de makelaar deze, na goedkeuring
door de opdrachtgever, op basis van specifieke gegevens verzorgen.
Map
Map is loading...
Cadastral boundaries
Buildings
Travel time
Gain insight into the reachability of this object, for instance from a public transport station or a home address.